查看完整案例

收藏

下载
“黑色”在世界各地文化中的词根词源里,都有“燃烧”一义。本案屋主喜欢厚重的调子、幽暗的灯光以及自然的肌理,我们用黑色铺开浓重的第一印象,而沉浸其间,则能看到屋主的个性气氛如何随着材质的肌理纹路漫延生长,细细燃烧。
项目地址 | 芜湖长江之歌
设计团队 | 研己设计
合作模式 | 设计+半包施工
建筑面积 | 270㎡ 4室2厅
项目类型 | 平层
1.玄关
作为个性空间的入场,除了营造归家的温馨体验,玄关也充当着全屋风格调性的序曲:黑色/碳黑、木质、金属、绿植、体块结构,精致的灯光设计……这些作为主要构成的元素,将首先在玄关一一出场。
将客卫干区打开,利用绿植造景,也与电视墙处的自然元素呼应。将地面标准尺寸的瓷砖再度加工运用于墙面,丰富层次的同时,也利用统一的材质带来整体性。
原本入户玄关的隔墙全部拆除,在影音室与玄关之间增设宠物活动区,让宠物可以第一时间捕捉到屋主回家的动态。 而更改布局后露出的梁体,我们用体块穿插的手法去解决。裸露的梁体与木饰面包裹的体块,不做过多处理,形成开合自如的气势。
2.客厅
屋主不喜欢浅色轻飘飘的感觉,偏爱厚重的质感,我们选用有丰富肌理质感的炭灰色艺术漆,通刷墙顶,氛围厚重、内敛。屋主常在家招待朋友同事,选用有围合感的长沙发,营造放松亲密的休闲氛围。
柜体与电视机均做嵌入式,与墙面齐平,保留大平层的开阔印象。而背景墙面上方分割比例的线条,黄铜,石材及绿植点缀,则带来精致自然感的魅力。
屋主偏爱幽暗的灯光,客厅采用无主灯设计,用多层次的灯光搭配,满足不同情境下的需求。在自然光中,落地灯与软装装饰散发出金属的辉光,而点亮灯光后,则折射出不同氛围。
3.餐厨
炭黑色吊顶延伸至餐厅一侧,在餐边柜上方缓缓垂落,为空间增添温柔涌动的戏剧感,烘托餐厅的独特氛围,为日常三餐或亲朋聚餐带来仪式感。
餐桌上方的灯带设计与电视背景墙处呼应,不论是亮起的灯带明晰的分割,还是自然光下由高差带来的微妙差异感,增添空间层次感的同时,也避免空间被切分得过于零碎。
用一些小元素,保持空间的节奏感。阳台吊顶稍微挑出,加深框景的感觉,一块赏石用不规则的形态,带来自然的松弛感。水吧台同样用拉丝黄铜板搭配绿植,做元素的呼应。餐桌则结合天然石材与金属,是符合空间形态和使用场景的分量感。
“对软装的挑选、购买、使用、搭配,是持续进行的‘审美积累’的过程”。我们借用橱窗的概念,在餐厅通向厨房的一面做了展示区,用于摆放画作、手办和其它摆件,展示屋主趣味所在。
4.阳台
“广庭怜雪净,深屋喜炉温”。远近、冷暖、广狭,不同甚至截然相反的感知,挑逗着神经,使感觉力丰富、敏感起来。结合地理景观优势与屋主需求,我们最终选择将阳台做成半封闭、半开放的形式。
屋主喜欢绿植,我们将阳台部分开放,做成露天小花园,随着季节荣盛枯败的植物,向十里江湾开放的景观,远近之间拉出独特的景观角。
封闭的部分抬高,做成开放的茶室,蒲团矮几,沉香小炉,是屋主放松休闲之处。
05.主卧
将主卧旁的次卧并入,改为衣帽间,一面做顶天立地的封闭柜体储物,一面用模块化开放架,开放架背景表面做仿金属的特殊肌理,顶面则用镜面不锈钢,利用反射拉高空间视觉效果。
仿旧的,带来粗粝感的金属元素恰好与过道裸露的梁体相称,过道原为两间卧室各自独立的阳台,我们将它打通,表面使用仿水泥的艺术漆,突出空间的结构。
来到睡眠区,墙面、地面延续公区的黑色/炭黑色,吊顶则换成了木饰面造型吊顶,干脆利落的体块分割与柔和的弧度处理,很有台式的感觉。
床尾做储物与梳妆台,用浓绿色装饰桌子,搭配拉丝黄铜板,让全屋的元素维持呼应。主卫为开放式,延续黑色调性,组合使用灯膜、灯带等多种灯光模式,满足卫浴化妆的光线需求。
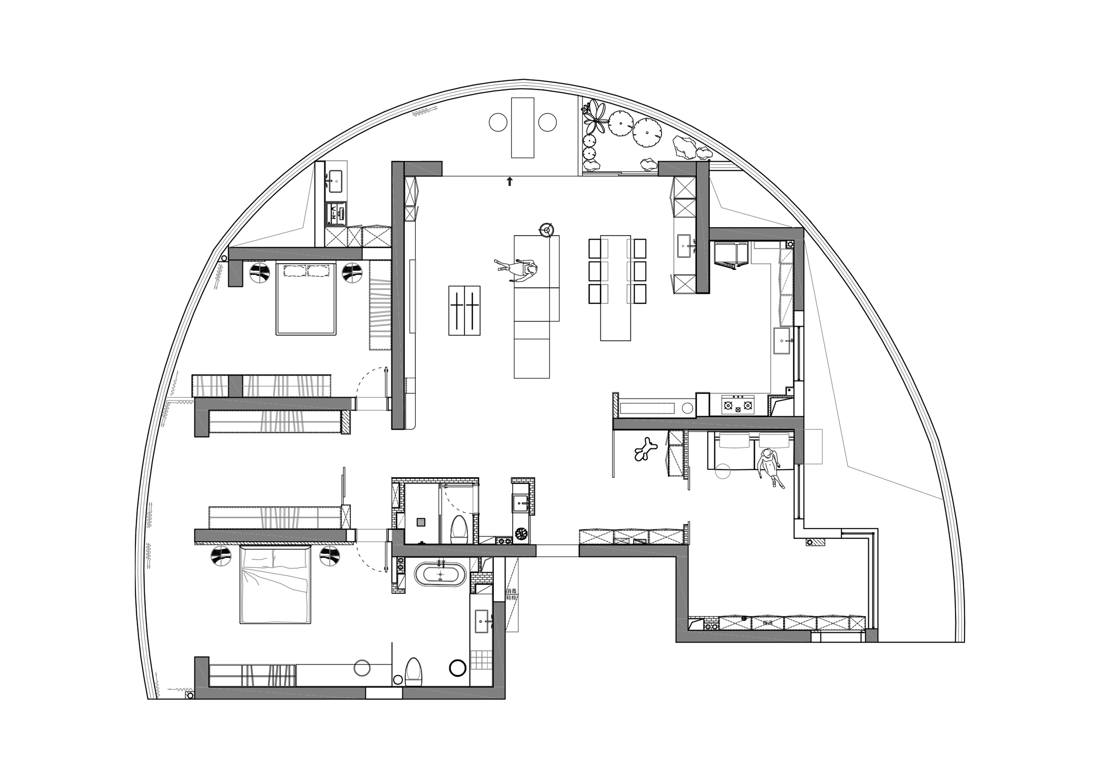
平面布局
客服
消息
收藏
下载
最近
































