查看完整案例

收藏

下载
年轻女孩一飞,在人生最辉煌的阶段不幸患癌。在老公的帮助和照顾下,他们购买了一套医院附近的老公房,坚强的与命运作斗争。而作为《梦改》十年“铁粉”,一飞一直都怀揣着一个“设计师梦”,想要通过自己的努力完成这套老式公房的翻新。本次梦改是节目史上第一次出现三位大咖设计师联合设计极小面积的住宅——史南桥、本间贵史、赖旭东,三人化身“小助理”,辅助一飞的设计思路和理念,共同助力新房的改造。
“每个人都应该是设计自己生活的设计师,也应该是创造自己人生的梦想家。”这个笑容灿烂、积极阳光的女孩,便是本期的委托人一飞。2021年,一飞与大学同学剑桥熬过了将近10年的异地恋,终于修成正果步入了婚姻殿堂。然而,命运却同刚刚新婚、开启人生新阶段的一飞开了个玩笑——一封病情确诊书,彻底改变了这个小家庭的轨迹。
3年的病痛折磨、化疗康复之下,脱发、发胖、腿脚不便等种种问题困扰着一飞;看护和工作的双重压力也让剑桥身心俱疲。然而,命运的重压并没有击垮这对小夫妻,反而让他们的感情更加坚毅和执着。考虑到化疗、养病等问题,剑桥和一飞决定倾全家之力,贷款购买一套医院附近的老公房,减少反复搬家、看病路途的时间精力成本。
十年间,这是首个出现业主本人担任设计师的委托案例,也是三位明星设计师首次合体联手,实乃《梦想改造家》史上最不同寻常、意义特殊的改造之一。
为了在工期内更高效率地完成改造,避免沟通和交接产生的时间损耗,三位设计师分工明确:史南桥负责平面规划、本间贵史负责功能保障、赖旭东负责美观设计,分别为房屋的精细度、功能性、美观度保驾护航。
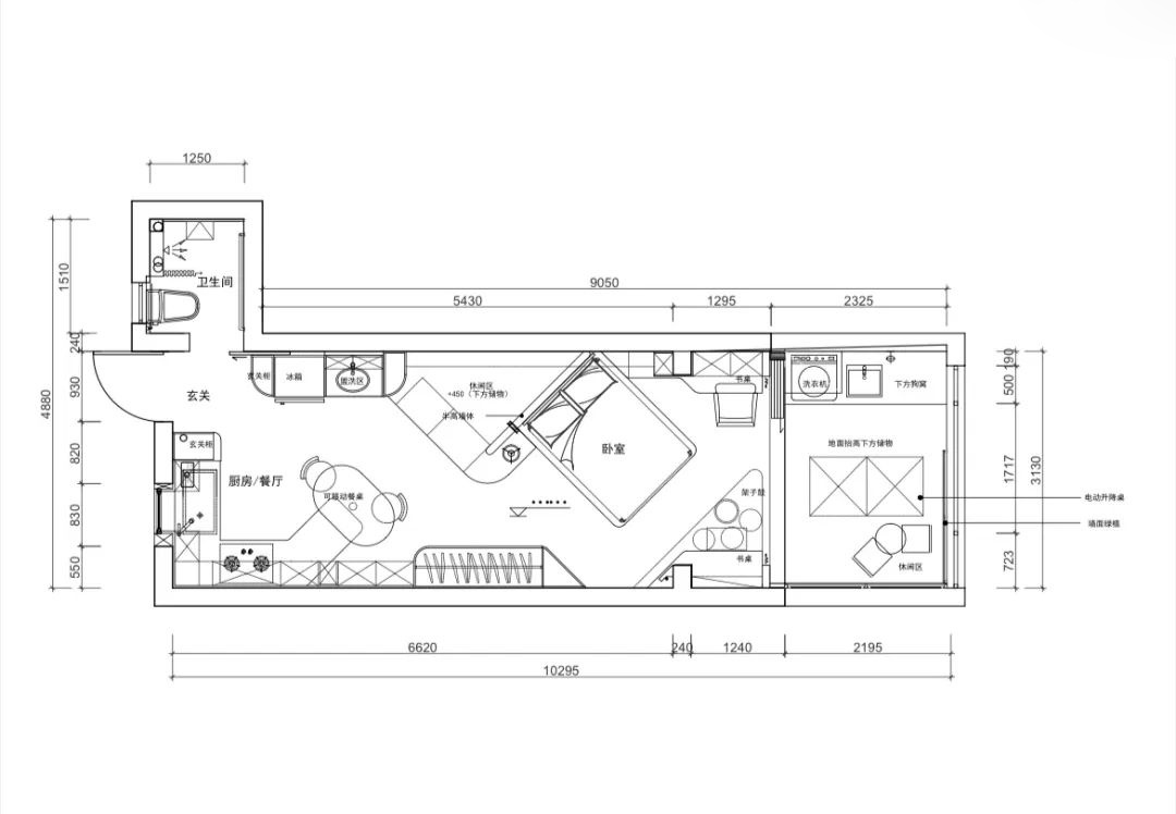
针对一飞原先规整板正的平面设计,史南桥在充分沟通下,大胆调整了动线关系:通过斜角延伸、隔而不断、层次变化等手法,将方正的户型切成4个斜角,从而达到延伸视觉感、增加空间使用率的效果。
十年间,这是首个出现业主本人担任设计师的委托案例,也是三位明星设计师首次合体联手,实乃《梦想改造家》史上最不同寻常、意义特殊的改造之一。
为了在工期内更高效率地完成改造,避免沟通和交接产生的时间损耗,三位设计师分工明确:史南桥负责平面规划、本间贵史负责功能保障、赖旭东负责美观设计,分别为房屋的精细度、功能性、美观度保驾护航。
针对一飞原先规整板正的平面设计,史南桥在充分沟通下,大胆调整了动线关系:通过斜角延伸、隔而不断、层次变化等手法,将方正的户型切成4个斜角,从而达到延伸视觉感、增加空间使用率的效果。
确认了户型情况后,“小天使”本间贵史结合委托人的身体情况,接力进行房屋功能上的设计。一方面,他计划在全屋增加扶手、圆倒角处理,减少斜角设计存在的安全隐患;另一方面,他精密测量、消除室内台阶,多方寻找合适的轮椅设备,保障一飞的无障碍通行。
与此同时,本间贵史也非常注重隔音降噪减震的处理,他认为睡眠对身体的修复非常重要,所以在床品挑选上下足功夫,从细节处改善委托人的睡眠质量。
最后,赖旭东接力完成色彩和软装设计,全屋以浅色、奶咖色系为主,打造明亮通透的居住氛围。同时,在室内装点活泼灵动的黄绿色系配饰,与花园的绿植遥相呼应,使人仿佛置身绿意盎然、宁静舒适的古典油画之中。
▲改造前平面图
▲改造后平面图
项目信息
设计名称:余生相伴的家
项目地点:上海市浦东新区永安新村
完工时间:2023年11月
项目面积:30㎡
负责设计:空间规划及庭院卫生间
设计团队:上海高迪建筑工程设计有限公司
主案设计:史南桥
设计团队:李妹、张毅、王晨威、陈哲闻、李国超、邵淑婷
负责设计:硬装设计及软装设计,摄影
设计团队:重庆年代营创室内设计有限公司
主案设计:赖旭东
设计团队:巫士全、高悦、曾惜、张雄莹
负责设计:空间功能设计
主案设计:本间贵史
客服
消息
收藏
下载
最近






















