查看完整案例

收藏

下载
在方寸之间表达家之理念
强化复式公寓的居住价值
实现设计和生活的高配感
01 写在 · 前面
本案位于寸土寸金的上海,是典型的投资型商住房,每套一层占地80平,上下两层约160平,受众群为通勤时间很长的上班族。
设计改造将原有160平空间做成4房3卫,还配备了衣帽空间,合理解决了大平面系统排水问题。甲方的预算一共是120万,合计每套全案造价25万,两个月的时间全部完工,涵盖土建、全部硬装(配备全屋的中央空调+地暖系统)、软装落地。
项目名称:海上财智商务中心
设计风格:现代轻奢
项目地点:上海
建筑面积:1140平方(160㎡/套)
室内设计:苏州有一所空间设计公司
设计小组:李琳,项晶,吴云,王歆韵,刘伶丽
文案策划:修合文化
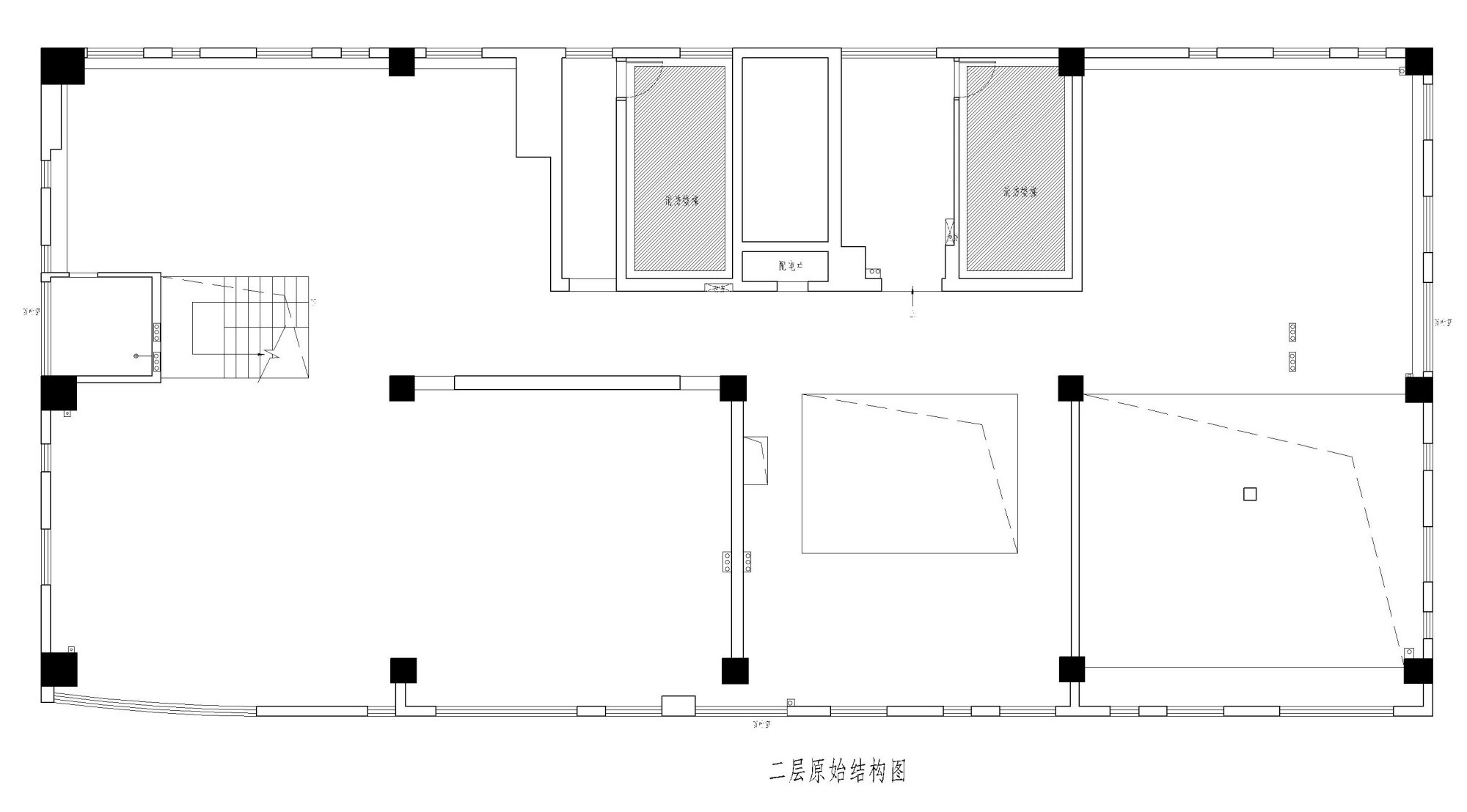
拆改 · 分析
原始图
户型分析:
①整体结构分为上下两层,每层面积均等;
②层高较低;
③A户型与B户型的排水结构位于两栋房中间,改造难度大;
④A户型排水结构在南边,难以满足四个房间都开窗的诉求;
⑤楼间距适宜,采光好;
⑥架构规整,没有异形边廓。
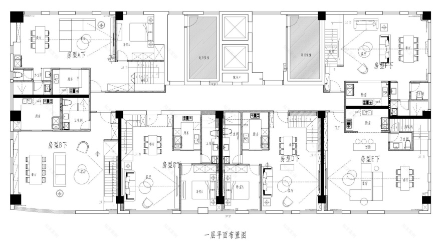
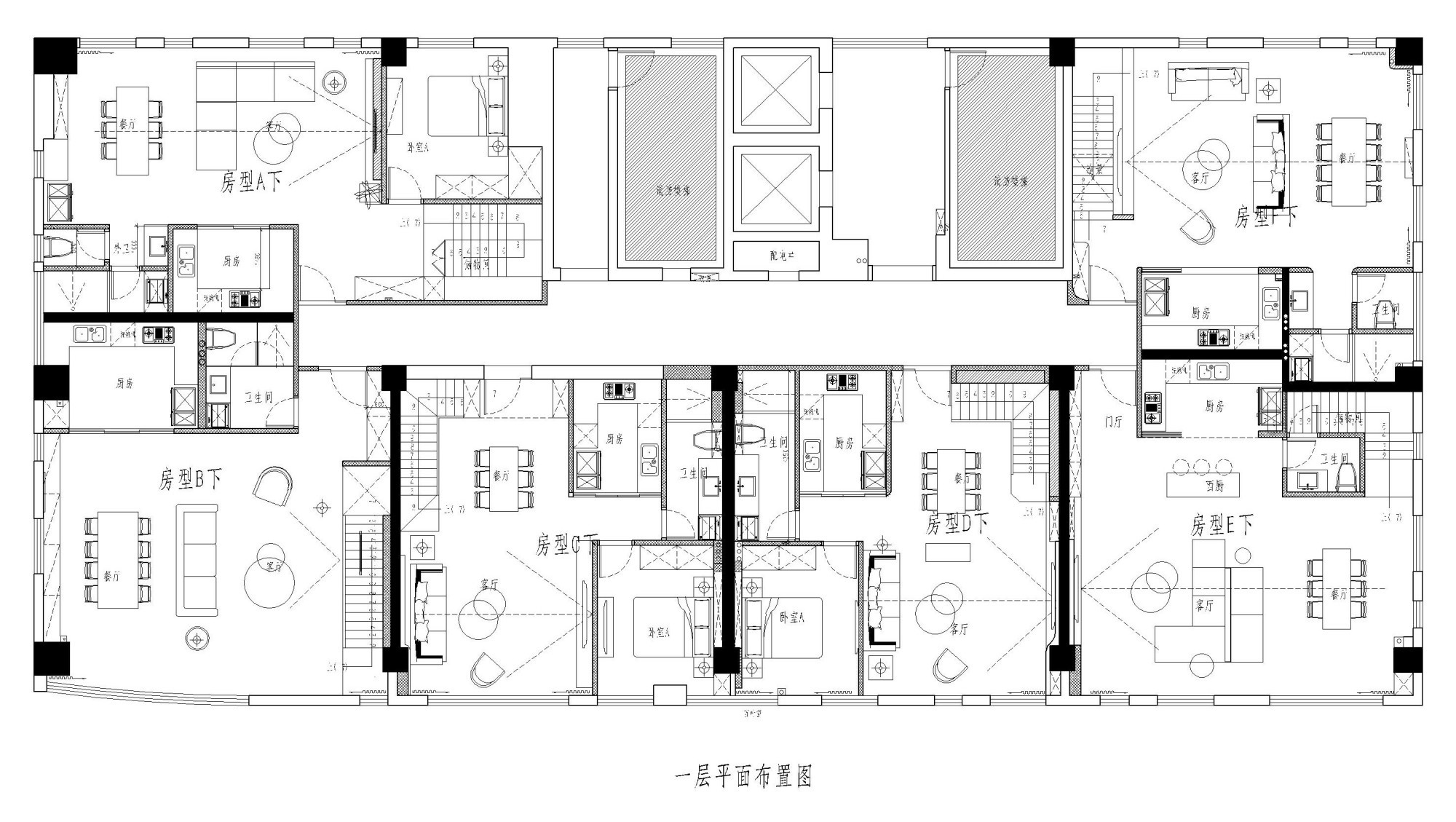
平面图
拆改亮点:
①整体划分为6套复式套房,提高利用率与舒适度;
②每套复式空间的上下两层面积均等;
③160平的空间设计为四房三卫结构;
④A户型房间朝北,解决排水结构在南的问题;
⑤考虑商业投资因素,配备衣帽间,丰富生活情境。
现场图
设计师基于对居住者生活方式和审美品味的深刻洞悉,以全新的艺术视角诠释个性,构成空间生动的视觉美学和舒适的居住体验。
03 设计 · 解析
A户型,上下两层的外围尺度相同,内部分隔结构不同,一层空间以开放式交互体验为原点,打造一个大开大合的环境,让充沛的光线温暖每一隅,谱写简洁雅致的居家篇章。选择大大的落地窗,全面挖掘俯瞰视野的优势和空间的内在潜力。
客餐厅,承载了多面化的社交角色,尽量减少区域之间明显的隔断和束缚,释放敞阔畅通的大空间感。
运用色调、体块、质感,将空间的趣味性与互联性进一步联结,营造松弛惬意的氛围。
关于理想之家的表达,被浓缩在方寸之间,强化了空间的居住价值感。
厨房,遵循美学追随功能的设计主旨,大面积描摹纯白意境,结合免拉手橱柜与无封板吊灯的设计,力求呈现极简、清爽、治愈的氛围。
纳入流畅的烹饪动线,演绎着烟火日常的浪漫与精致。
一楼卧室采用纯净底色,借助得天独厚的地理优势,通过窗为室内纳入四季不同的光影,让原本单调的色彩与结构焕发出生动感。
胡桃木色敞开格,既用独特的观感张力起到了装饰背景的作用,又满足了收纳需求,书香四溢。
由于公寓是没有阳台的,所以单独设置了洗衣房。
由于房间较多,一楼卫生间被设计成了四分离式,包含马桶区、台盆区、淋浴区及洗衣房四个区域,皆可同时独立使用。
白色的卫浴用品高洁优雅,自带温润感的木元素串联不同功能区。
二楼楼梯平台位置,原本计划打造成储物间,后考虑到居住者的实际需求,设计成高颜值的简易小书房,功能和美感一应俱全。
通透的材质和模拟自然光的顶灯,联手消弭了空间的边界感。
二楼主卧以奶油色系为基底,在靠枕和搭巾上加了一点点粉,空间瞬间少女心满满。变换视觉层次,打造隐藏式氛围光。
米色窗帘搭配飘逸白纱,微风拂过,让人恍然间觉得身处大自然中,舒适自在。
二楼次卧运用米色硬包和胡桃木色饰面为空间增色,明确“浅多深少”的配色关系,拼合出稳重优雅的空间格调。
构筑一整排的大衣柜,让功能与颜值完美融合,表达了居者的审美品位与生活仪式感。
客服
消息
收藏
下载
最近
























