查看完整案例

收藏

下载
“和谐且具有辨识度的设计,通常尊重人文与创意。”
01 设计师说
本案位于姑苏铭著,男业主是一位建筑师,女业主是一名老师,一家三口倾心更舒适和更多元功能的居家环境,追求细节以及质感在空间的体现,对前瞻性设计的接受度相对较高,更能认可和欣赏比较特别的格局形式以及深色的视觉体现。得益于业主对设计师的信任,从前期施工图、软装方案到效果图、再到选材以及施工落地,才能做到设计方案近乎百分百落地实现。
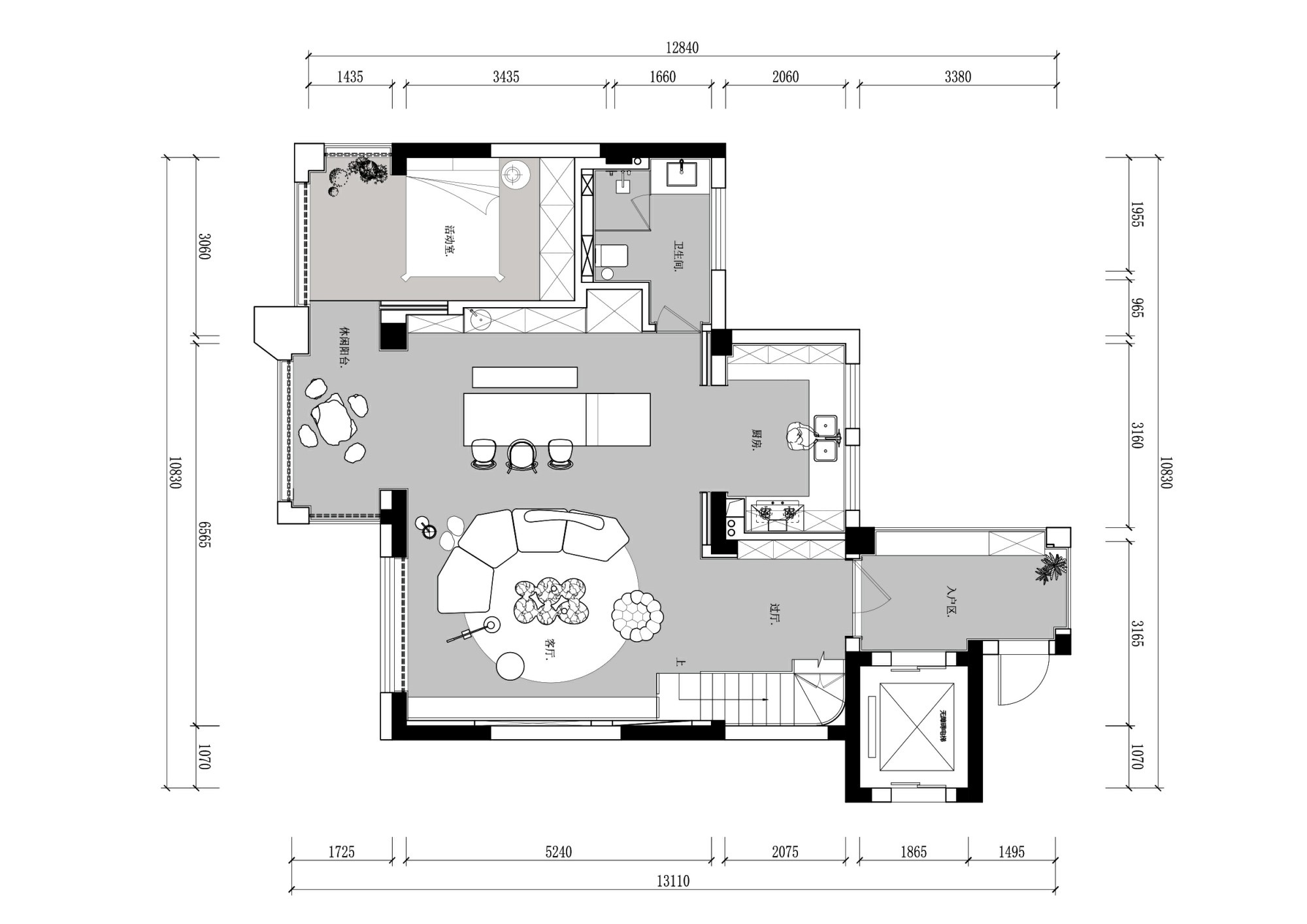
平面图
02 户型解析
整体架构分层清晰,原始开窗多而散,利用变化的造型与色彩对比的张力,阐述每个区域的功能特征与美学氛围。公区开间尺度大,结合陈设布局,重新梳理视觉层次的关系,不空不密,酝酿出自在流动的气韵。私密区由单间或套间组成,差异化打造更能体现空间优势。
03 实景照片
入户区,勾勒深色调,在充裕采光中为居住者觅得清逸的归属感。以面体穿插的形式制造悬空意趣,摆搭圆垫,呼应瓷盆的雅洁之美,让植物的生长力积极影响归家者的心绪。
▽效果图
▽实景图
过厅,跳脱留白基底的束缚,运用深色调与柔光视感讲述细腻的光影层次。萌趣摆件带着一抹温暖的红,无声回应了壁炉暖意融融的感觉,透过弧形隔断赏析,故事感迎面而来。
▽效果图
▽实景图
开放性的格局,倡导在不经意间体现空间的内在联结。楼梯端口的隔断,以镂空圆的纤薄轻盈,契合对角落地灯的饱满丰盈,彰显了空间的分散与聚合理念。电视背景墙任由纯粹底色渲染至纯至简的氛围,结合光影互动,为空间增加美感。
▽效果图
▽实景图
重色分置于边廓,让浅灰与纯白营造主语境,两面开窗恰好对应客厅和餐厅,自成章法。垂直排列的圆形透景,记录了人上下穿梭的动态画面,升华了空间与人的联结性。
暖白色系赋予体块柔和性与纯净感,促使足底的地毯成为场域的新亮点。随意叠高的书籍上放置一盆绿植,与茶几的透明波浪面轻语,角落的熊憨态可掬,这样的氛围充满了治愈力。
▽效果图
▽实景图
从场景温馨度出发,解读悠闲精雅的生活方式。利用大体块自然分区,弱化明显的边界感,让动线序列化的同时,用曲直相接的手法进一步优化。定制柜体,拓展了空间收纳的容量。
▽效果图
▽实景图
沙发延伸出的胡桃木边几,除了以醇厚的木质气息点映餐厅的咖色元素之外,还以自身的枢纽区位与圆形形态,串联入户区、楼梯端口、阳台内外的圆形创意,扩张了空间叙事的宏大性与包容性。线性灯饰置于岛台与餐桌的上方,以突变的曲线贴近,诠释浪漫。
▽效果图
▽实景图
阳台情境着重考虑精神体验,减少固定结构,以黑白灰的经典色系抚平躁动的情绪,以最优雅的方式还原生活本真。以物修身,以身修心,以茗茶的礼序彰显居住者的生活态度。
▽效果图
▽实景图
厨房,以格栅作为分界面,强调区域的独立性,延续整体的简雅格调,提供无障碍交流的居家体验。
“目断吾庐小翠微,斜阳外,白鸟傍山飞。”起居室,通过灰绿色调的搭配,散发出静谧悠然的感觉。依据隔断尺度设立书柜,传递内敛简约的空间意蕴。
确立干区和湿区的功能和位置,借由材质的透光性,保持空间的通透之美。异形波浪镜面,隔空呼应了其余场域的不规则设计,使人无论身在何处都能感知到家和谐统一的美。
▽效果图
▽实景图
主卧,仅用一把流线造型的跳色单椅,便圆融了时尚格调与惬然氛围,舒展的叶片、简雅的纹理、温馨的质感,共和出栖居品味。睡眠区利用咖色系的沉稳气质,书写空间韵律,引人渐入梦境。
主卫与主卧采用一脉相承的撞色法则,以色块区分并强调不同的功能,变换纹理、质地、大小与拼装方式,营造出浪漫梦幻的观感,令人沉浸式享受沐浴,深度放松。
▽效果图
▽实景图
▽效果图
▽实景图
串联穿搭、起卧、阅读的场景,造型简而有致的雕花护墙和格栅拼接,打造出时尚艺术、舒适大气的私属空间。通过结构重组和色调碰撞,营造人居于空间内的安全感和归属感。
通过配色、结构、质地等设计的脉络,描绘出具体的功能,浓淡相宜,远近成景。调和纵横方向的层次,烘托波点陶艺的真趣,汇入花道蕴含的哲意,为平凡的日常制造无限的惊喜。
△设计师:金丹 巩浩
项目地址:姑苏铭著
项目面积:190平
设计公司:壹石樹空间设计事务所
设计团队:金丹 巩浩
文案策划:修合文化
项目品牌:GH.DESIGN极邸卫浴、京派美墅高定橱柜、HUAWEI华为智能、艺步楼梯、Benjamin本杰明涂料、大金中央空调、德国威能地暖、众影灯光、博邦装甲门、简·收口、摩登淋浴房、爱力蒙特瓷砖、郭木材地板、马贝美缝
客服
消息
收藏
下载
最近
































































