查看完整案例

收藏

下载
静歇在窗前露台,望著眼前一片黄花树海,是风吹暖了枝枒,雨露带来了润泽,隐见设计|石见建筑 封藏了森林绿光,使窗景顺随时序更迭,翻腾起片片浪迹,特别是到了每年春天,大地瞬转为苍翠时,家门前就会摇曳一片黄花风铃木的金色花海,再趁著天光漫漫洒落,将成一地鎏光似景。
本案除了接引外景,敞亮为屋内即景之外,亦引入屋主幼时曾居于三合院,以及留学欧洲的记忆,即使不同时空,却交织相似的古朴,与现代反差美感,再摺叠入一幕幕回忆诗景,便形构为家景。
即便位居低楼层,却一拥从客厅延伸至主卧的大面宽露台,这正是屋主购入此宅关键,为了浮显一字型露台,同时拉展开阔栋距,刻意压深窗框色调,筑光串影入室,绵延为现代交融古典的一室森林别境。
原住所是浅色底调,期望一改风格,亦想要带入儿时住三合院的复古意象,并叠合屋主夫妻曾旅居欧洲求学的欧式调性,昨日虽然久远,但每回怦然忆起,其实已滋养了生活,这一次盼望细细雕琢每一隅,引入尘封于生命故事的每一篇章。
选择以古典手法,揉制现代语彙,大胆拉开色系反差,由颜色勾勒台式复古与欧风,透过同一色系,但不同浓淡色阶,形塑流畅景致,当各房门敞开时,由各视角端视的色泽,都能一展平衡感,并且利用深浅有致的线板,修润厚重柜体,转化为立面廓型。
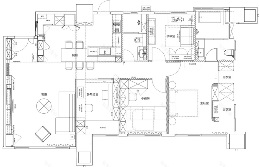
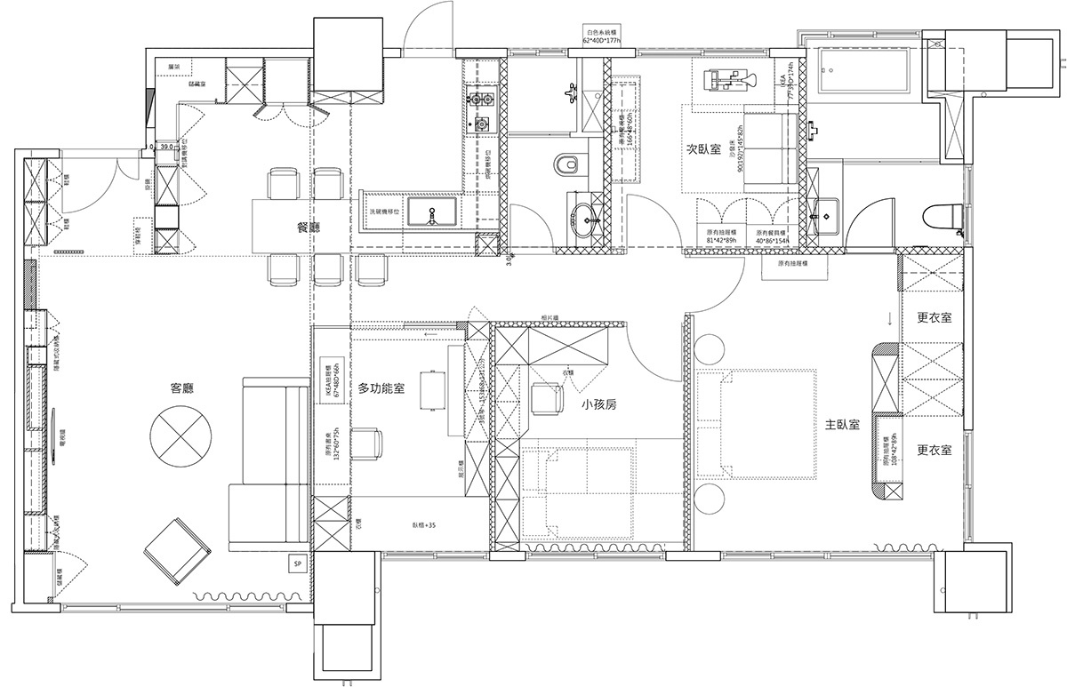
台中 / 新成屋 / 电梯大楼 / 室内 70.5 坪 / 格局 4 房 2 厅 2 卫 / 居住人数 2 大 1 小
客服
消息
收藏
下载
最近























