查看完整案例

收藏

下载
项目信息
项目地址|东湖.楚世家
项目类型|旧房改造
项目面积|360㎡
项目设计|武汉得间设计
项目摄影|梵镜空间摄影
项目户型|叠墅
项目软装|莱蔻家居
全屋定制|莱蔻家居
项目背景:本项目位于武汉高档小区,小区内风景优美,四季如春,依园傍湖居。在找到我们之前房屋已经居住有十年之久,因无法满足现在的居住需求,且一些设施也老化,因此决定将房屋重新设计,旧房改造。设计师在设计时保留原始建筑物的原有结构上,为居住者打造互通,交互,情感交流的空间,通过建筑思维塑造的室内空间,关于光影与流动的故事便在设计师打造的空间中娓娓道来。
-1F-
ANALYSIS
设计思路: 宅子是顶层花园别墅,业主找到我们设计时,希望我们可以解决当下的问题。房子只有两间房,无法满足当下三代同堂的诉求;房间光线不好,也不够通风,比较闭塞;尤其是想解决木楼梯上下时发出的巨大的声响。想要一个通透明亮,互动性强,满足三代同堂的理想之家。
▲ 原始结构图 ▲
1:整体户型空间显得比较拥挤,地板颜色深,采用大面积玻璃,但为了隐私又采用了不透气的帘子,使得整个空间光线黑暗,又不通风透气。
2:主卧虽然是套房,但主卧床比较大,剩余空间很拥挤,靠客厅是一个大面积的玻璃墙,直接面对着主卧的床,使得主卧缺少私密性,且收纳空间比较少,卫生间只有 1 个且非常小。
3:餐厅特别大,一楼只有一间卧室,无法满足三代同堂的需求。
4:楼梯比较徒峭,且地板走路噪音太大。
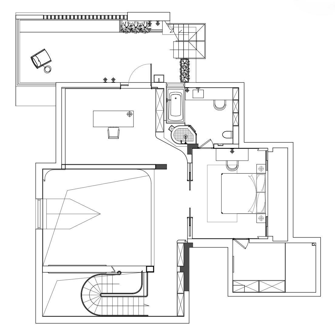
▲ 一层平面设计图 ▲
1. 将客厅电视背景墙拆掉,利用横梁设计弧形钢架旋转楼梯,解决原楼梯上下声响大的问题,楼梯右侧空余空间打造休闲区。调整客厅布局,采用围合式,去掉两个阳台移门并将其并入室内,用气窗可随时调动空间明暗亮度。
2. 主卧卫生间下沉区域填平,形成完整区域。扩大卧室面积,主卫增加三分离设计,靠墙放置浴缸,满足业主需求。原书房规划到主卧变成衣帽间,形成大套房主卧。改变主卧门,原主卧门朝向客厅且无门遮挡,缺少私密性。
3. 原主卧外空间变成老人房,将原阳台扩入室内,增加老人房面积。
4. 原餐厅较大,面积浪费,将原来一部分阳台扩到餐厅设计西厨区域,另一部分设计成洗衣房,旁边设计客卫。
步入客厅,温润质感东方典雅的气息迎面而来,像绸带般丝滑的钢结构旋转楼梯跃入眼帘。体块穿插间,线性元素以其经久不衰的魅力唤醒场域间的秩序,以结构与比例的把握,通过体块的转折、拼接与层次,打造高雅感,以点线面的组合方式为切入点,构建空间骨骼,界定空间秩序,描摹内在的节奏与艺术。
在结构中利用横梁设计一个弧形楼梯,缓解了原楼梯徒峭的缺点。在进入钢结构旋转楼梯时,设计一个入口的黑胡桃木框景,让上楼有一个仪式感。同木色面一路随着楼梯向上延伸。横梁上方的正方形窗口,用层叠的设计手法,把空间细节丰富,在不打破原有整体感的情况下带来更强的立体和层次。通过层叠的变化,分割的重组延伸到整个空间,形成秩序的装饰美感,并让上楼梯时与楼下家人形成交互,可以看到彼此。
园林中常用的框景手法放在空间里重新演绎,以框景设计将视野引入,丰富了空间的层次。不论站在哪个位置,从不同的洞口可以看到不同的景物。当光线能自由地进入每一个角落,便拥有了空间的流动性。
弧形楼梯区角休闲区,百叶窗经由光线变化堆叠出丰富的层次感,如思想着般稳重的理性之美渗透于细部,经岁月积淀的睿智优雅,均衡的节奏维度在这方场景中营造得游刃有余。
站在二楼楼梯向下看便看到区角,场景与场景既互相交互,又保持着各自的功能,各空间之间不设界限,又自成不同天地,形成空间独特的场域。
一层与二层的挑空,6 米高的客厅天窗让空间自由地沐浴在自然光景中,可独享唯美星空,同时,将室外的一切于无形中悄然引入室内,打造流动的空间体验。墨绿色地毯与羊绒羔沙发材质巧妙地与拼接的黑胡桃木饰面墙相搭配,打破了常规电视背景墙,创造了一种海派东方的闲适墅生活,展现出家宅的张力。
在自由通透的整体空间中,在二楼设计玻璃栏杆,上下空间达到一种看似区分却又互相交融的自由状态,增加了趣味与灵动,也开启了空间与情感双向的链接,家人的互动,彼此的关注,时时刻刻释放着情绪能量,彼时这栋建筑是关于幸福的。
站在楼梯入口,看向客厅,深色胡桃木的门框与客厅整面墙的胡桃木的收纳柜相统一。向上看,在二楼书房墙下设计一个镂空区域,形成交互。
实木折叠百叶门,开合随心,将渗透进来的温暖阳光,是流淌的自然诗意,墙角的绿植,有序摆放的沙发,治愈而富有力量。
在自然与温润游走的住宅,复古、现代、静谧,在现代中寻找诗意。
餐厨区
餐厅作为客厅的空间延伸,延续了主体统一的色调,黑胡桃木收纳柜,用木质结构的参与,将客厅与餐厅部分进行过渡。干净的空间肌理像生活本身一样,简雅安静,诉说着生活本有的温情与安心。时间,在生活的琐粹日常中肆意流淌,精致又感性的餐台陈设,述说着每一个仪式感的就餐时分。
主卧
卧室简洁明了,黑白色调,在材质选择上与床一体化木纹黑色背景板,简约质朴,没有过于的点缀。无主灯的设计贯穿于所有空间,落地灯营造出温馨的氛围,让人卸下重担,回归到一种自然轻松的状态,可以轻松安然入睡。
结合老年人生活习惯,临窗位置设计了休闲阅读区,暖色的灯光的诗意,喝茶品香,看书练字,于书中看世界万境。
2F
-ANALYSIS
▲ 原始结构图 ▲
1:木色的屋顶,深色的地板和大面积花色壁纸,显得整体空间比较深沉,又拥挤低矮,不透光又不透气。
2:主卧二楼整体没有规划楼梯一上来就是卧室,缺少私密性,并与一楼由于帘子挡住了,也没有交互性。
▲ 平面设计图 ▲
1:整个空间重新规划,让出一条通道,在书房开辟一条通道可以直达外面露台。
2:在儿童房设计成双快门,门打开时便可与一楼有一个交互性。
3:在儿童房旁边房设计成衣帽间,儿童房就拥有了单独的卫生间和衣帽间。
儿童房
女儿房采用实木双开门,门上镂空的玻璃隔断,用素色硼砂搭配,浪漫又复古。推门而入,引入眼帘的是小小的天井,可躺在床上夜观星辰。空间色调干净温暖,极佳的阳光和开阔的视野,在身心放松的同时能有风景相伴。开启门后可凭栏看到楼下风景,每天都可开启公主般的生活。
二楼卫生间位于阁楼,空间为斜角,打造异形的门的淋浴房,合理利用空间,靠近浴缸打造百叶窗,打造美好窗景,马赛克黑白条纹瓷砖,搭配着质感的五金,传递着精致感。
客服
消息
收藏
下载
最近






































