查看完整案例

收藏

下载
在温州老城中心,设计师吴极中有一间仿佛置身山林的居宅。
宅子原身为超过20年的老式排屋,设计师以开放性的陈设构想颠覆其原先的样貌,关注建筑与其周遭景观的关系,重新规划阳光进入空间的路径,模糊界面内与外的属性,在“仅以自身喜好作为设计要素”的前提下,我们得以窥得这间极具个人色彩的灵魂之所。
以光为改造脉络
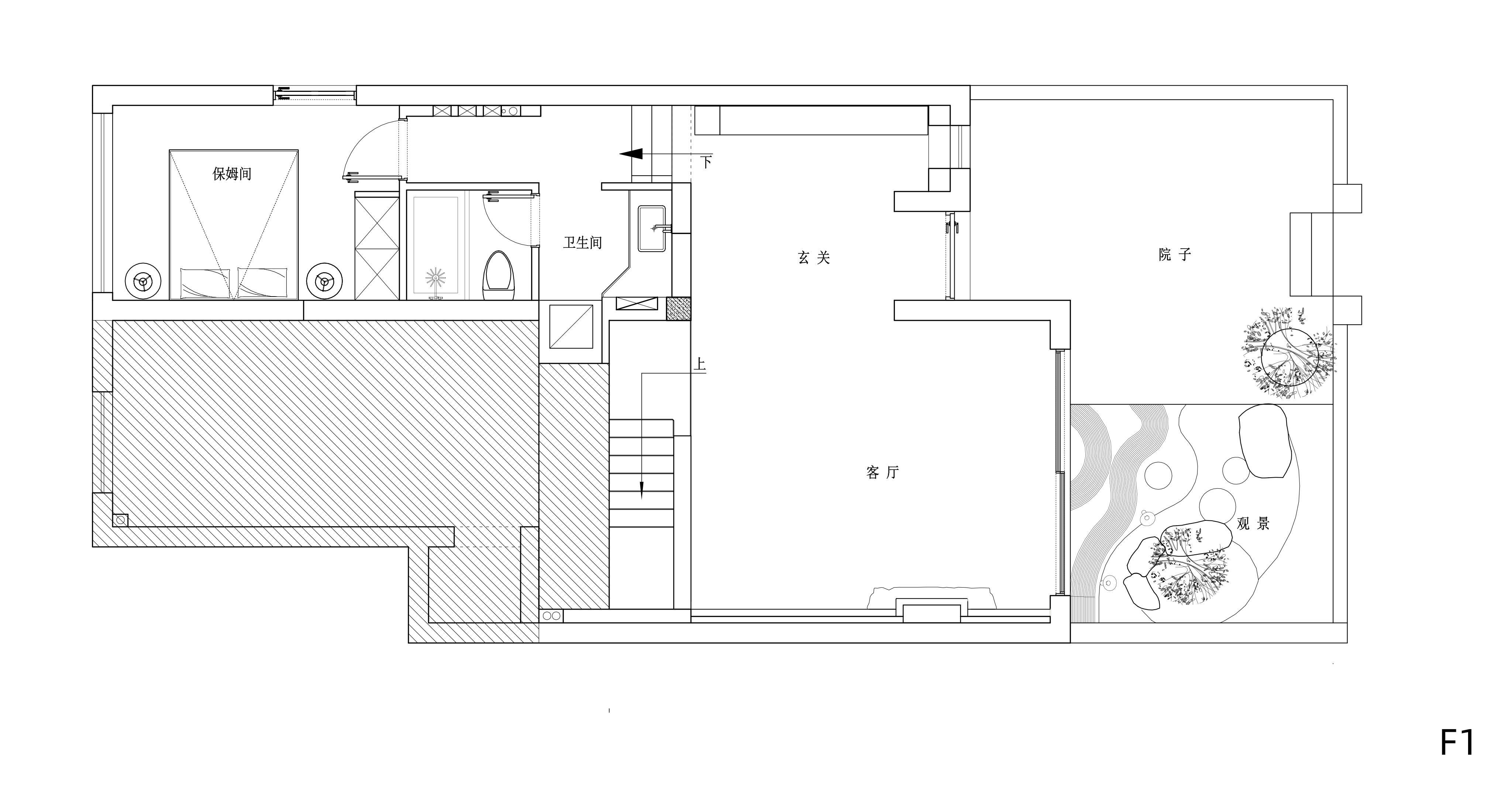
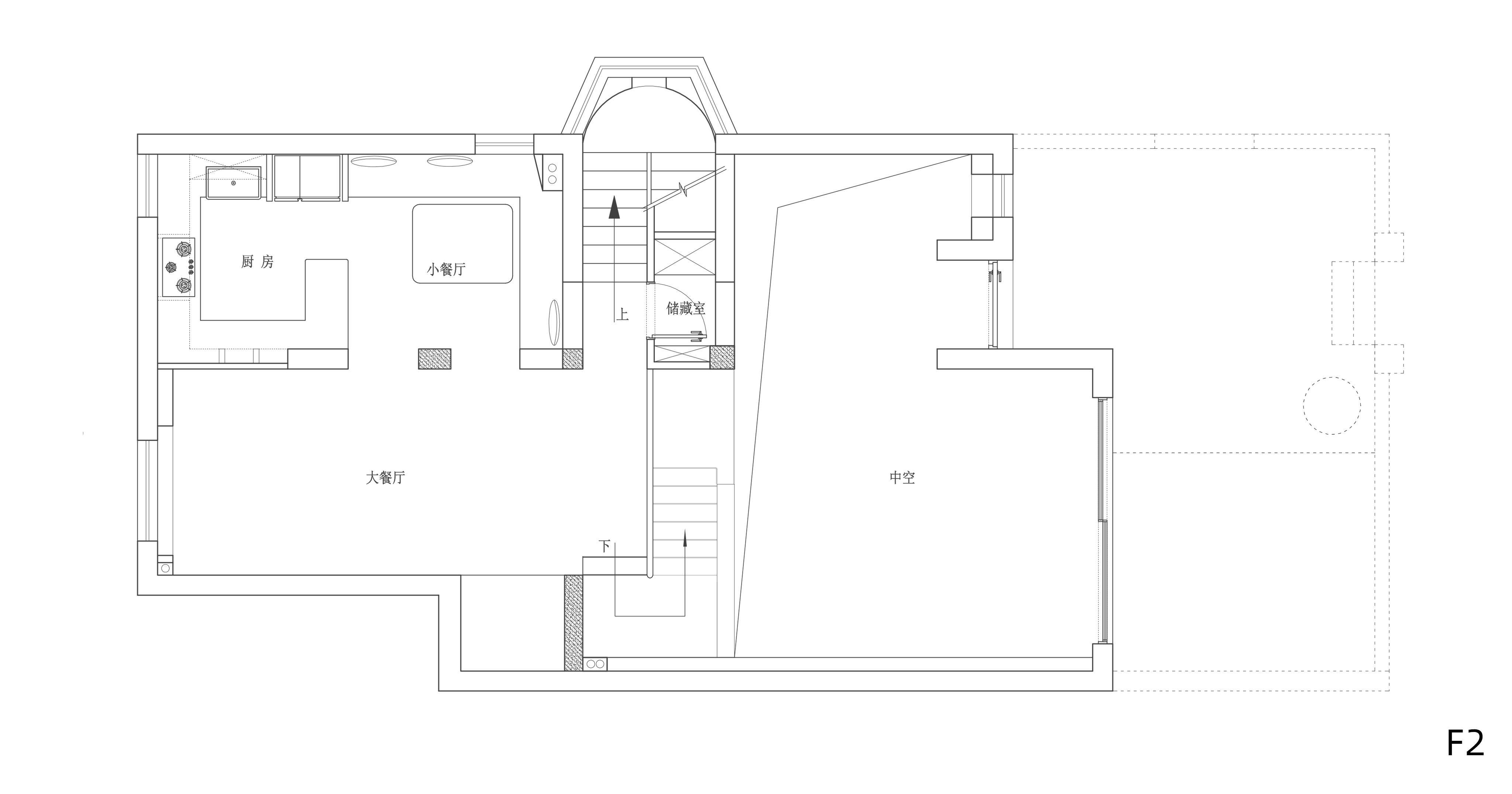
这座近200平方米的房子之前被分隔成五室一厅,客厅带一个院子,二者之间存在一米落差,二楼的居住区则设置了多达四个房间。
在设计师的设计理念中,充足的光线是最重要的优势,于是整案空间的设计,均是围绕着光线的变化而展开。
不做定义的空间表达
一层空间很难去定义其具体的功能,这是家中挑高最高且最开阔的区域,与院子相连,其布局并不追求传统客厅所注重的围合感,只有一块地毯、一把Cassina柯布西耶躺椅、一张非洲中古牛奶凳,加上不多的摆件。像是专门为晒太阳而准备的去处。
吴极中带领团队自主研发的“荒雀水泥一体漆面”从地面、墙面一直延伸到天花板,墙体都增加了厚度,使之具有雕塑感,同时也成为可承载物件的功能性台面。靠近楼梯处的一盏老台灯原本是一盏缺失了灯罩的医疗用灯,有些年头的白瓷色铁制底座、结构感很强的伸缩姿态,使它有一种莫名的气质。设计师开始一直没找到合适的灯罩,后来买了一个老漆碗拿来改造,颜色和比例正合适,跟灯的身型浑然天成。
我们试图找到一种合适的表达来形容这种风格,“如果太工整,就是一种现代的极简,但我们所追求的并非侘寂,我想,它是一种带着侘寂感的极简,但多一点儿现代生活的舒适宜居性”。
疏密结合的居住形态
位于错层的小客厅,才是设计师真正用来招待客人的所在,大家围着一块老石板改造的茶几落座,随处有可供翻阅的书籍,此外,并无其他。
推翻既定的空间规则后,可供使用的场景变得丰盈。空间大部分的公共使用区域被集中在错层的小空间里,如此,在居住关系中,个人即能享有大面积的独处空间,同时在与家人相处的过程中,小面积的集中也让互动与沟通变得更简单直接。
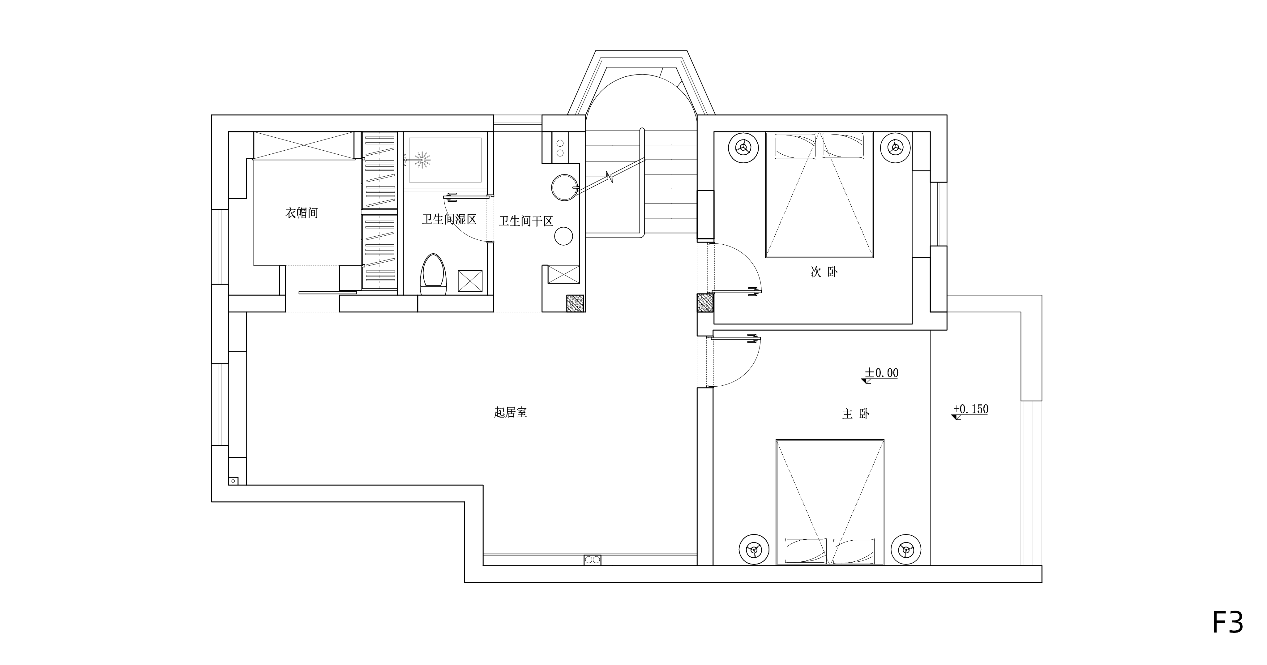
二楼拥挤的四个房间被利落地减少为两个,空间因此豁然开朗。
书房墙上的漆面圆桌被当作画幅呈现,红中透出黑色,与泥土黄的墙面相称,质感独特。书桌也是组合的,下面是圆拱形的一体七座的两个底座墩,上面是一张东南亚的柚木老板,高度是特意降低的,配合中古的狩猎椅,被当作休闲茶桌。
为生活习惯定制
从家庭成员的自身需求出发,房间被设计得很小,且不带独立的更衣室与卫生间,却在外部设计了一个共享的大起居室,附带步入式衣橱及洗手间。朝东的洗手间墙面上特意开了一扇小窗,早晨的光线由此穿入室内,使二层的起居室被照亮。
主卧老阳台被改成了飘窗,做了抬高处理,形成了一个沐浴在阳光之下的休闲区。“窗外的光与景对室内感受的改变起到了决定性的作用。当室外的自然光与景色可以在室内自然游走时,人在里面就会感到非常舒适。虽然我的房子原本是一座结构复杂的老房子,但我还是很努力地将它变得更通透。”设计师说道。
相同的材料与色彩,让空间没有了任何冗余的接口、收口或踢脚线。全屋看起来粗犷原始,摸上去却十分细腻自然。
岁月造就的各式老物件混于其中,在自然的光与景的映衬下,也散发着质朴的艺术气息,一切无不显得熨帖而舒适。
项目名称:云中花苑
设计公司:美栽堂 - 筑造社
项目地点:浙江·温州
项目面积:200㎡
主持设计:吴极中
主案设计:胡晓珍
设计时间:2020.12
完成年份:2021.02
项目摄影:虞孙平团队
主要材料:荒雀水泥一体漆,水磨石,原木
客服
消息
收藏
下载
最近






























