查看完整案例


收藏

下载
北京遇上上海,会发生什么样的爱情故事呢?
今天故事的主人公是北京姑娘小六儿和上海小伙阿狐,经过两年辛苦的异地恋,两人最终决定在上海安家。
案例简介
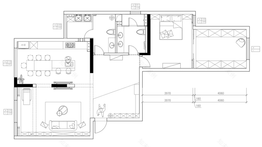
初始平面图
房子面积 110㎡,三室两厅一厨两卫,外加两个阳台。原本的设计比较常规和传统,却也存在很多问题:入户无玄关,正对卫生间门;
餐厅是暗室,光线昏暗;
南边两个卧室套在一起,动线不方便。
比起传统的家庭生活,小六儿和阿狐更希望享受两人世界,因此决定不要孩子。如此一来,原来的户型完全不能适应他们的需求。
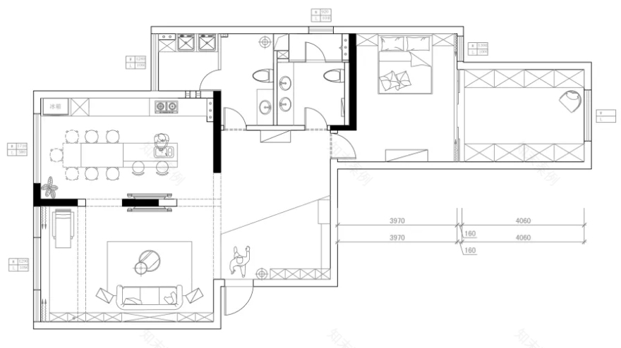
经过一番讨论,设计师张通大胆把户型改成了三厅一室、一厨两卫:
改造后平面图
改造后的新家,坐拥主卧套房、衣帽间和冥想室,并把工字砖、故宫红、祖母绿等元素巧妙融合了进去,既有老北京的古典韵味,又不失现代家居的简约大气。
看完只想说,这个家,住起来也太爽了吧!
两个人住 110㎡一室有多任性?
一进门从这个大门厅就能感受到了。
正红色高光烤漆背景墙隐喻故宫红城墙,斑驳的灰色地砖仿佛来自北京老胡同,既防尘也便于养了金毛的夫妻俩入户后打理。
背景墙与地砖的工字图案
皆由故宫的雕花窗图案提炼而成。
红墙前的青花陶罐是设计师辛苦淘来的,放在这里,与整体氛围相得益彰。
小六儿希望每天出门都能美美的,于是这里定制了一块直径 1.1 米的大圆镜,并在天花板设置了两排轨道灯,镜子在灯光的照耀下仿佛灿烂的太阳,充满了意境美。
穿过玄关,便是开放的客厅、餐厨区域,设计师没有用太多物理隔断去划分,从颜色上就能一目了然。
客厅选择了一款类似“山”形的沙发,代表围绕北京城的山丘,电视背景墙则寓意着灰色的城墙。
沙发背后的开放架是磨砂不锈钢板,用于摆放夫妻俩收藏的乐高、Kaws 等时尚手办。看似“漂浮”的电视机架实际上非常牢固,用了 3mm 不锈钢板做预埋件处理。
换个角度,从客厅看向入户门厅,沙发上的抱枕与红墙交相辉映,金属茶几稍作点缀,增添轻奢与贵气,整个空间显得简洁又气派。
拆除了阳台与客厅的隔墙,将两处合并为一个通透的大厅。靠近阳台的橱柜做了镜面处理,因为小六儿热爱健身,喜欢拍照打卡记录身材的变化,所以专门为她设计了这块健身的区域,开放架可以放置一些毛巾,饮料等。每天清晨迎着太阳光起舞、健身,真是元气满满又幸福满满呀。
将原先朝西的主卧套间全部打开,作为开放式厨餐厅,与大客厅相连,自然光不受遮挡地洒进来,看上去真是通透又大气极了。
整个区域围绕着大型中岛台展开,近 6 米的高低柜组合超强收纳柜可以说是厨具收藏控的福音~
细致体贴的设计师,还在厨房吊顶内的管道做了双重隔音处理,防止杂音给烹饪和就餐带来不好的体验,果然追求极致的人都是细节控。
实用的餐桌椅++ 吧台的组合,再次体现了混搭的智慧:实木的餐桌与长凳、红色餐椅、两把透明的亚克力高脚凳,集合了现代、欧式、中式等各种风格,对比鲜明又简洁有趣。
由于朝向西北,每到黄昏时刻,落日的余晖就会尽情挥洒进来。准备晚餐、就餐的过程中,可以一直享受到游移变幻的光影,实在是幸福了。
改造后的主卧和整屋风格一样,又大又宽敞,豪气十足,收纳力也满格。主卧采用整体定制,床体高度 320mm,床铺面积也大,可以轻松放下夫妻俩的两个 28 寸行李箱,解放出更多衣帽空间。
打开主卧床旁边的长虹玻璃门,便来到了宽敞的衣帽间。
衣帽间的左右两边都是收纳柜,有储物量惊人的收纳空间。此外,柜体均做了全白处理,空间全部留白,可用作冥想室。
打开玄关青花瓷左边的隐形门,就是暗藏的客卫。
墙壁颜色选择了雅致的北京祖母绿,碰撞正红色背景墙,呈现出“红墙绿瓦”的视觉冲击感;代表着老上海元素的黑白马赛克地砖上墙,搭配长虹玻璃和圆形壁灯,复古又摩登。
项目地址:上海
使用面积:110㎡
项目总花费:80w
设计机构:桐话空间 张通
设计费用:400-600/平米
客服
消息
收藏
下载
最近


































































