查看完整案例


收藏

下载

翻译
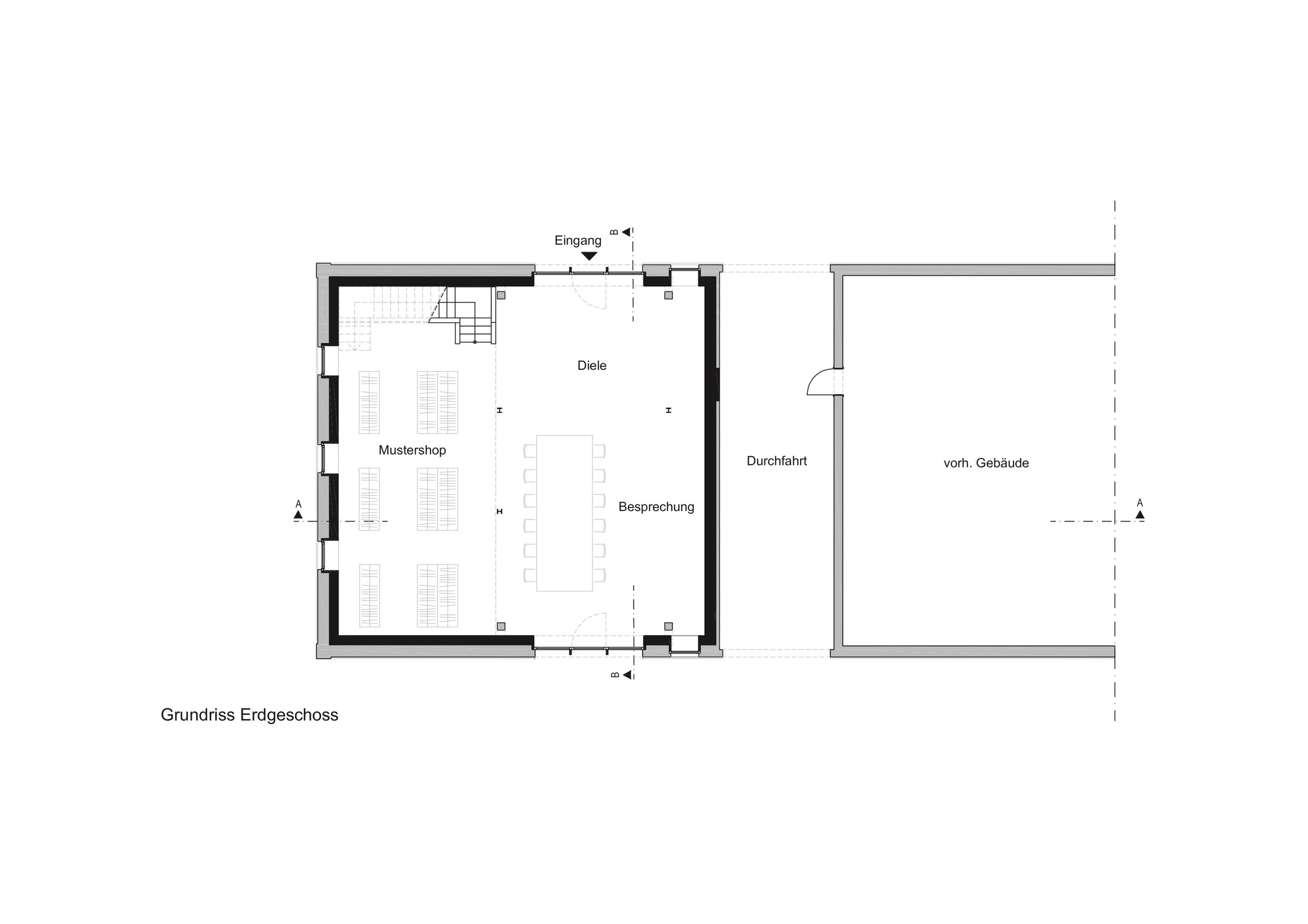
The storage barn, which now has 210 square meters of space for a clothing design office in Warendorf, Westphalia, was completely gutted and renovated.
Inside you only get the statically load-bearing timber frame. No new walls were built.
The white plastered interior, including the light floor, with a coating based on epoxy resin in the concrete, takes a back seat to emphasize the sculptural effect of the wooden beams.
The timber framework extends over an air space of up to twelve meters in height - the hall, meeting room and sample shop are located on the open ground floor.
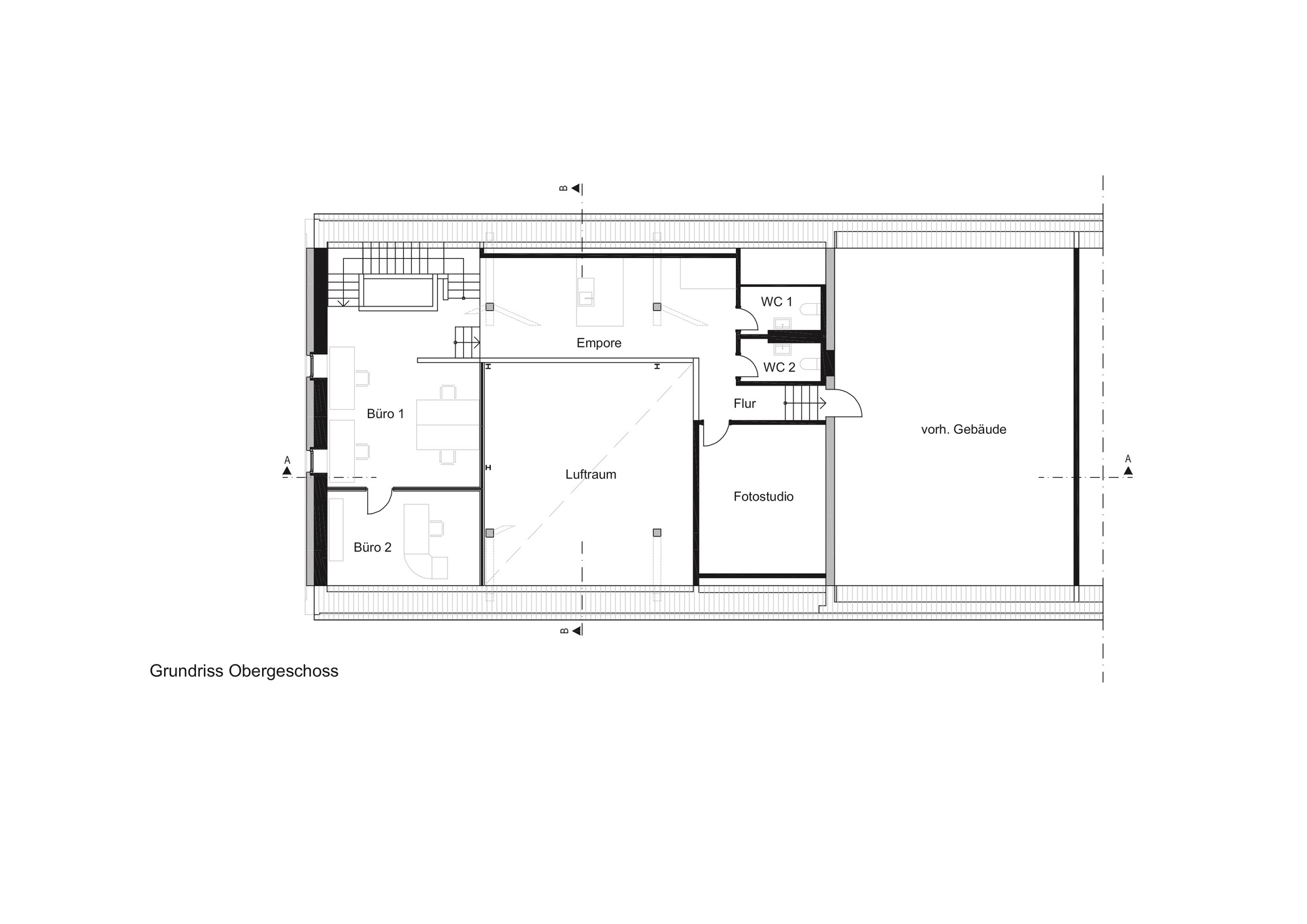
A staircase with black granite and white parapet leads up to a retracted gallery suspended from a steel structure.
There is a kitchen, toilets, a photo studio and offices, separated from the rest of the air space by glass walls.
客服
消息
收藏
下载
最近







































