查看完整案例

收藏

下载
本案毗邻太湖,业主是一名成功的企业家。整体设计以休闲舒适为主,以自然的语言书写生活的美好,更注重空间给人的精神性,构建舒惬的美学居所,匠造个性化的空间内涵,让三代人的生活蓝图完美展开。
项目名称:太湖高尔夫山庄别墅
项目地点:中国·苏州
设计面积:约920㎡
风格定位:现代简约
软装设计:苏州乾园空间装饰有限公司|高嵩嵩、孔薇
文案策划:修合文化
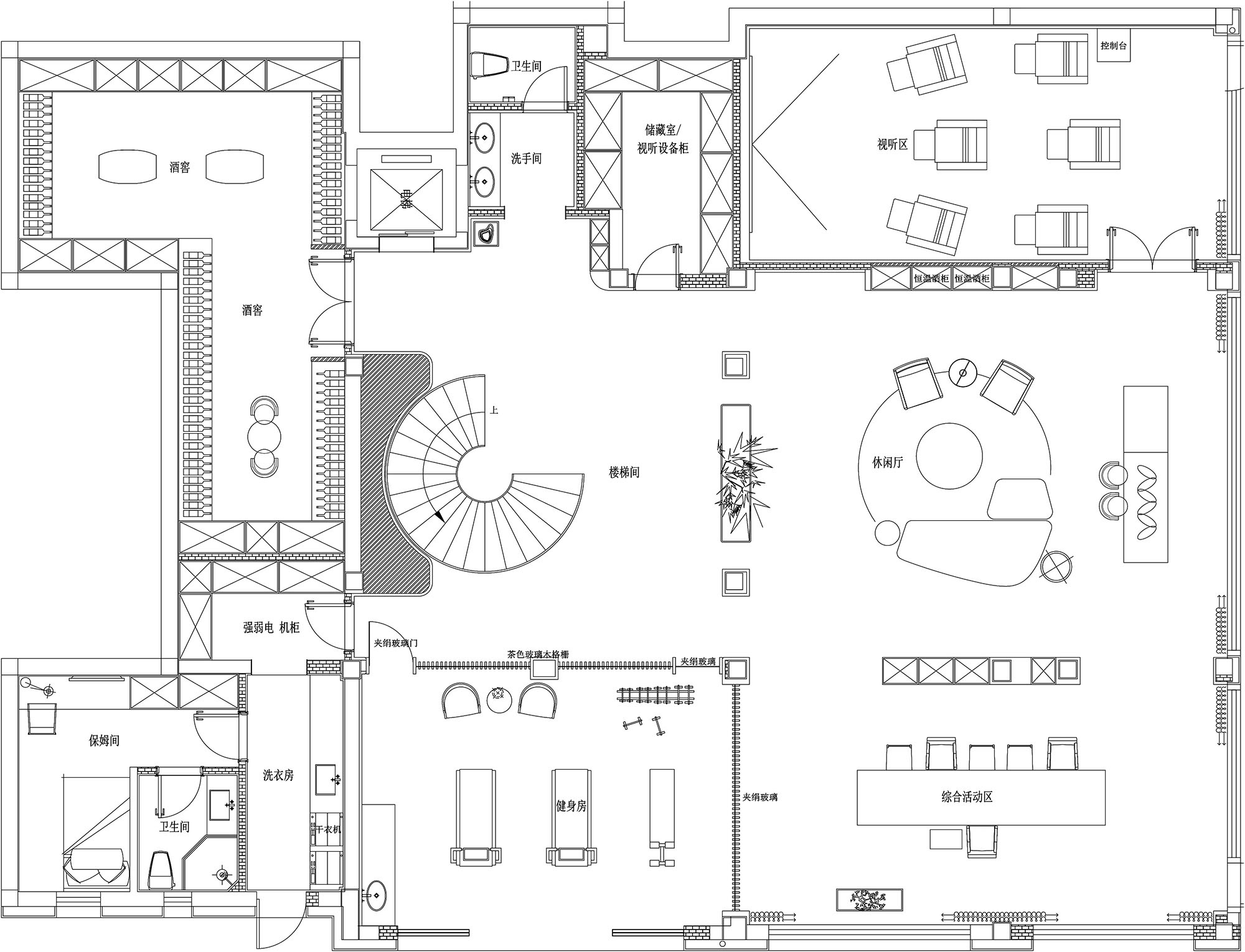
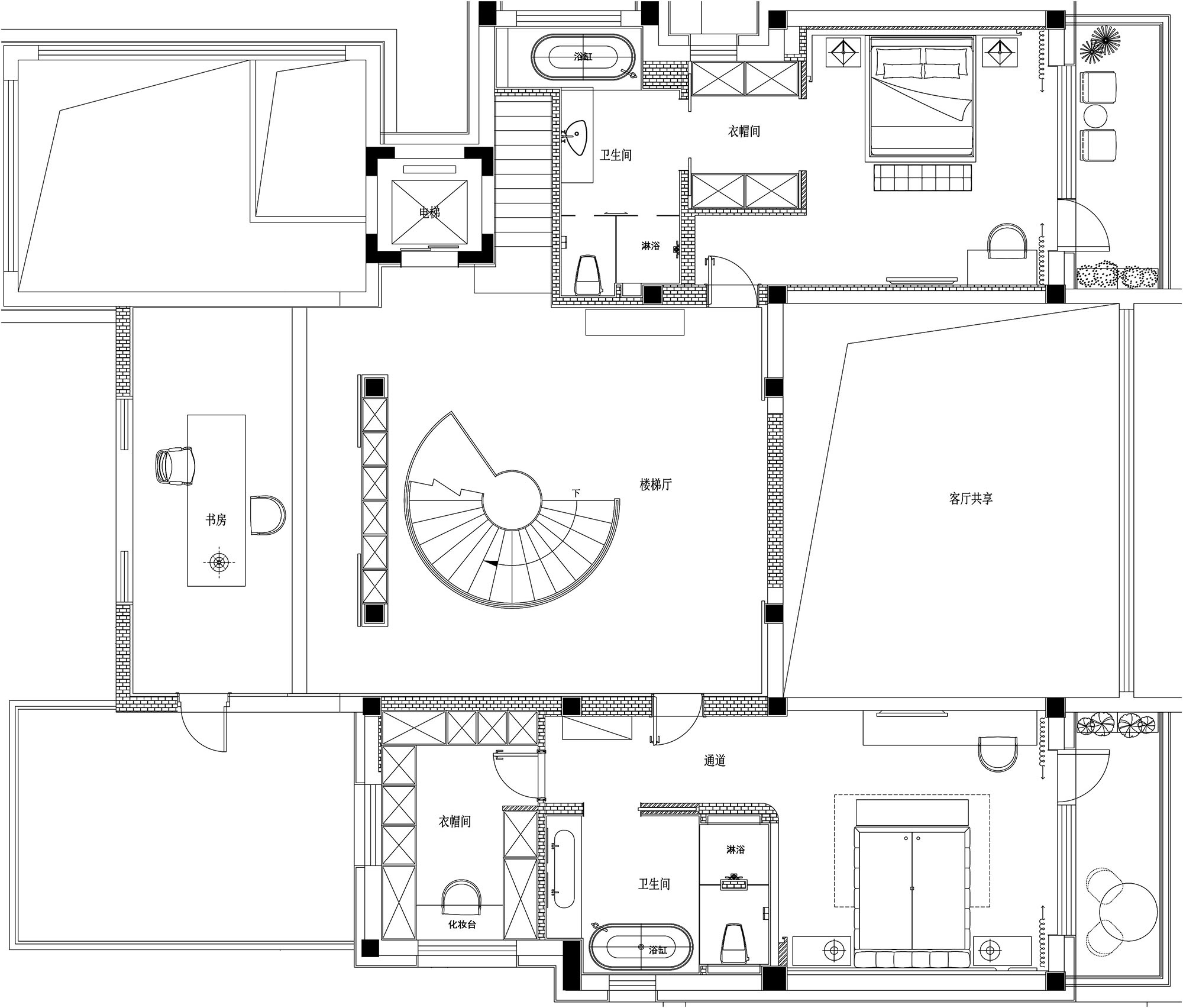
三层独栋别墅,庭院景色优美,一层是会客区、中西餐区、主卧、老人房、客房;二层是儿子房、女儿房以及书房;地下一层是休闲区、茶室、健身房、影音室、酒窖以及保姆房。
以现代、简约、纯粹的为设计的关键词,形成接近生活又高于生活的艺术风范。
将浪漫情怀与实际需求相结合,倾注艺术,创造出精致的玄关空间,美学性与功能性兼具,通过层层渲染的手法,延伸出无与伦比的仪式感。在色调上,用奢雅的金色与沉稳的黑色平衡视觉观感,构成了素净雅致的氛围。
软装延续硬装效果图的整体风格,以业主个人喜好以及养老度假的需求为出发原点,将二者有机结合,再运用Minotti、Baxter等一线家具品牌的经典款式,通过出色的搭配,彰显简约而不简单的现代极简美学。
空间的舒适度,很大程度上取决于光影,在两个立面引入自然光,在餐桌上释放精致的灯光,悄然分解、重构光影,以简单舒缓的色彩为空间底色,通过真皮、实木、金属多种材质的互相融合,来体现空间的多样性。
主卧精致沉稳,大面积采用米白色、灰咖色的软包饰面,再叠加深色的木饰面,使得整体呈现出既干净整洁又层次分明的视觉享受,赋予空间实用性与诗意性。在私有的空间里,从晨曦到月辉,尽享闲适。
楼梯美得像一首大气磅礴的交响曲,以线条定格气势,明晰轮廓于立体形态的修饰下,展露艺术张力。增设隐形灯带,用理性克制的光影点亮拾级而上的每一步。利用直与曲的对比,不带侵略感,却悄无声息地浸染心灵。
倾听内心的需求与渴望,构筑简明的功能与美学,衍生多元的情态与雅意。儿子房的设计尽显个性化与关怀感,不仅仅是在视觉上塑造了明快时尚的印象,更融合不同材质达成了简约而不失品质的升华。
女儿房的配色偏柔和甜蜜一些,借色彩的张力描摹空间的个性。温煦的光影与浪漫的曲线,凝聚了空间的情感,让人在岁月静好中,通过五感的反馈,真切体验到来自空间的安抚和拥抱。
不需要过度装饰,更不需要繁复细节,书房,从空间的本质出发,选择简净的色彩与高级的质感,既反映了居住者的眼界和品味,又在使用中反复传递着对未来的无限畅想。
休闲厅,依旧以简约的调性为基底,但是和其余区域的常规印象截然不同,设计师在局部以红色、蓝色、橙色、墨绿色等跳色进行点缀,通过感官冲击缔造了丰富的层次感,让空间拥有了更为鲜明的个性。
演绎借景、穿透、延伸的设计手法,为茶室纳入窗外四季之景,模糊了空间内外的边界,内部大量使用原木材质,增加空间的自然感与氛围感。不同时间的光线变化,为空间带来自然的反差,将此作为一道新的线索,完成空间故事的全新叙述。
平面图 (-1F、1F、2F)
客服
消息
收藏
下载
最近

























