知末
知末
创作上传
VIP
收藏下载
登录 | 注册有礼
知末案例   /   家装空间   /   平层

梧桐 · 云行设计

2023/06/30 14:22:00
查看完整案例
微信扫一扫
收藏
下载
联合空间的沉浸体验
梧桐 · 云行设计-1
梧桐 · 云行设计-2
实景(上)
效果图(下)
梧桐 · 云行设计-5
梧桐 · 云行设计-6
梧桐 · 云行设计-7
梧桐 · 云行设计-8
实景(上)
效果图(下)
梧桐 · 云行设计-11
梧桐 · 云行设计-12
梧桐 · 云行设计-13
梧桐 · 云行设计-14
梧桐 · 云行设计-15
梧桐 · 云行设计-16
方寸之间的心之所归
梧桐 · 云行设计-18
梧桐 · 云行设计-19
实景(上)
效果图(下)
梧桐 · 云行设计-22
梧桐 · 云行设计-23
梧桐 · 云行设计-24
梧桐 · 云行设计-25
梧桐 · 云行设计-26
梧桐 · 云行设计-27
实景(上)
效果图(下)
梧桐 · 云行设计-30
梧桐 · 云行设计-31
拾阶而上 层叠中的光影点缀
梧桐 · 云行设计-33
梧桐 · 云行设计-34
梧桐 · 云行设计-35
梧桐 · 云行设计-36
梧桐 · 云行设计-37
静享时光 趣味性与休憩共存
梧桐 · 云行设计-39
梧桐 · 云行设计-40
实景(上)
效果图(下)
梧桐 · 云行设计-43
梧桐 · 云行设计-44
梧桐 · 云行设计-45
梧桐 · 云行设计-46
梧桐 · 云行设计-47
梧桐 · 云行设计-48
梧桐 · 云行设计-49
梧桐 · 云行设计-50
梧桐 · 云行设计-51
梧桐 · 云行设计-52
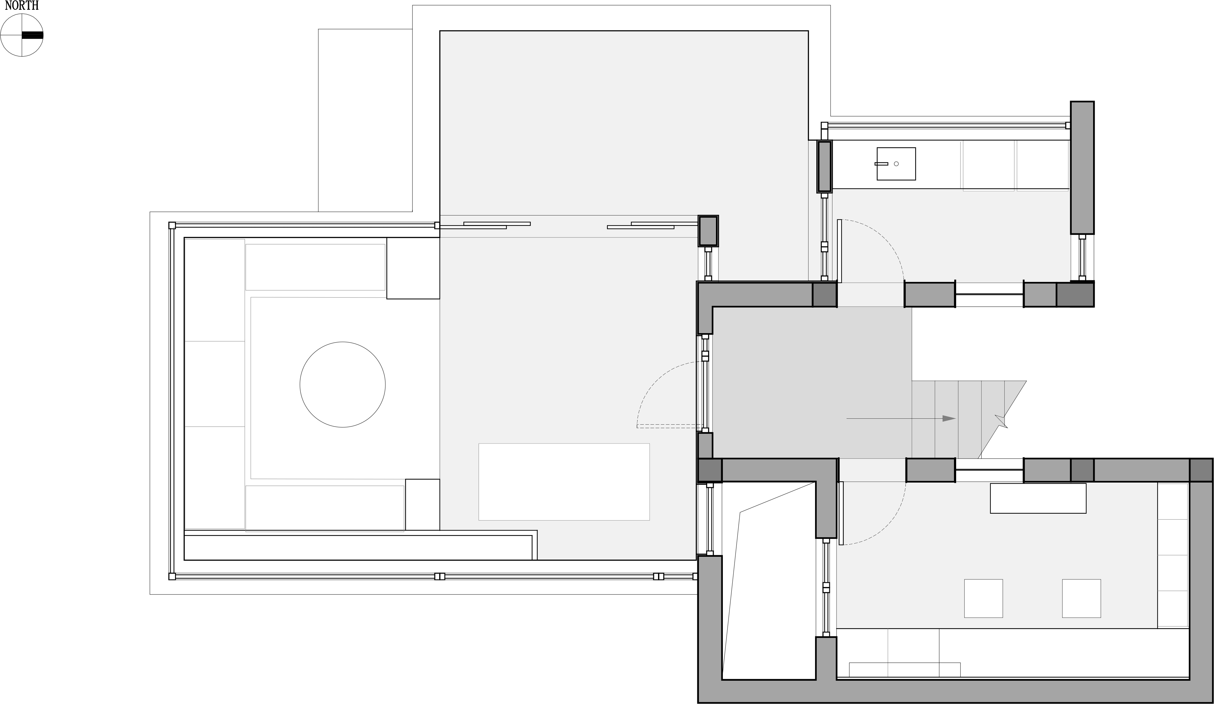
房屋平面
原始结构
梧桐 · 云行设计-55
一层
梧桐 · 云行设计-57
二层
梧桐 · 云行设计-59
三层
平面布局
梧桐 · 云行设计-62
一层
梧桐 · 云行设计-64
二层
梧桐 · 云行设计-66
三层
南京喵熊网络科技有限公司 苏ICP备18050492号-4知末 © 2018—2020 . All photos and trademark graphics are copyrighted by their owners.增值电信业务经营许可证(ICP)苏B2-20201444苏公网安备 32011302321234号
客服
消息
收藏
下载
最近