查看完整案例

收藏

下载
如果爱有形状,那它一定像房子。盛满成长的欢笑,长成幸福的模样。
家,是新生活的起点。一个理想的新家并不是冰冷不变的容器,而是可以随着屋主不同阶段需求而生长变化的温暖之所。
本案业主是一对年轻夫妇,拥有两个可爱女儿,和父母同住,还有姑姑帮忙带小女儿。一家人其乐融融,孩子也处在成长阶段,所以更加偏好简单干净有质感的居住环境,也希望有足够的空间满足家人的舒适生活。
设计师充分了解业主需求后,通过材质、空间与功能的巧妙交融,以简约美感与实用兼备的设计理念为生活温柔注解,让空间功能可以随着家庭在不同阶段下的需求变更而“进化”,盛放全家人的美好时光,获得更好的居住体验。
业主需求:
❶整体风格倾向现代简约,喜欢大理石的高级感。
➋不想要过多复杂的装饰,但是不希望空间太过沉闷。
➌多功能房未来想做独立书房,客厅书架也需要预留位置后期摆放钢琴。
❹希望能够尽快入住新家,着重空间软装和功能性的改造设计。
设计思路:
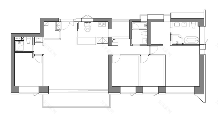
原始户型解析:
❶原始户型四室两居,功能区划分明确,为室内布局带来更多可塑性。
➋进门玄关区域不大不小,如果预留钢琴位,需要更巧妙的布局思考。
➌客厅较大较通透,景观好,无餐厅空间,规划餐厅需要注意空间的格局比例,保持通透与开阔。
➍厨房空间靠内,活动区域较小,采光有局限性。
空间改造解析:
❶玄关区域打造书架,收纳与展示兼得,书架后方预留出钢琴角位置,最大化利用入户空间。
➋客厅与餐厅一体化设计,动线更符合日常生活场景,使两个空间的视野都更加通透。
➌厨房区域利用玻璃推拉门改善封闭格局,引客厅光线入室,改善采光,开阔视野。
➍预留一房灵活做多功能房,后期可根据需求调整为书房,打造更多生活场域。
实景照片
01 流淌的潘多拉
LIVING ROOM
步入客厅,就能感受到现代简约风格的干净通透。以白色为主的电视背景墙搭配潘多拉大理石地台,瞬间抢占了视觉中心,呈现出天然石材流淌的自然质感。为保持美观,提前规划电视尺寸大小,四边预留 3cm 宽,更显精致。
“掀开,翻页”的弧形造型是电视背景墙的点睛之笔,若隐若现的大理石材质与电视地台巧妙呼应,如水墨自在游走,增加空间的艺术感和趣味性。同时,饱含着美好的寓意,预示着掀开美好新生活的篇章,丰富多彩的未来正在等待开启。
客厅与玄关、厨房中间的过道较为宽裕,空间动线舒适便捷。上方的轨道射灯干净利落,美观之余补充室内光线。客厅、阳台以落地玻璃推拉门相隔,光线可以无遮挡地进入室内,整个客厅通透加倍,让居家空间有着更加惬意的放松感。
客厅搭配 Edra 花瓣沙发,色彩跳脱打破单调,类木纹地毯蹲着蓝色兔子装置,灵动轻盈。考虑到家有小孩,沙发靠背扶手特别订制,可以自由调节弯折角度,调整成向上轻轻托起的姿态,也不用担心小朋友经常玩耍会掉下去。
02 惬意食光
DINING ROOM
沙发背后划分出开放式餐厅,自然区分空间功能。白色餐桌搭配稍显厚重的木棕餐椅,百搭亮眼且经久耐用。顶部吊灯宛若飘带,造型唯美简约。餐桌背后整墙做餐边柜,上下吊柜+中部大理石,采用卡其灰板材设计,低饱和度的色彩沉稳大气,中间的大理石和客厅遥相呼应,收纳功能与颜值双双在线~
餐厨空间主打一个人性化设计。中间的操作台可作为西厨吧台使用,缓解厨房压力,咖啡机、冲泡奶粉都能在这搞定。左侧预留整排高柜,收纳能力强大。吊柜进深浅于地柜,开关使用不易碰头,也增加了空间的层次感。无拉手设计极简干净,地柜 L 型拉手和 U 型槽,美观灵动使用方便,也不担心小孩被把手磕碰。03 治愈烟火 KITCHEN
厨房与客厅由黑色边框玻璃推拉门自然隔开,时尚简约质感满满,透明的玻璃让整个空间看起来整洁又明亮,也与客厅形成互动关系。厨房内部主要以白色和棕色为主,色彩大方耐看,让烹饪时光都变得更加干净舒服。
04 自在休憩
MASTER BEDROOM
卧室设计延续整体简约大方的风格,以白色木格栅+护墙板徐徐铺开,连续又有间隙的自然缝造型让几何之美充分凸显,也让原本平面的墙面富有层次,仿佛白色海浪的涟漪,荡漾着柔美的梦境。亮眼有质感的棕黄沙发和脚凳,做工考究的柔软地毯,低调灰的梦幻窗帘,无一不彰显着生活情趣与艺术情调。
床头背景墙的熊猫白大理石,晕染般的纹理轻盈飘逸,是令卧室空间质感翻倍的神来之笔。搭配 Poliform 的 Rever 床,宽大的床头软包,微妙的倾斜角度贴合人后背,舒适性极强。靠背拉点细节设计,尽显优雅大气,彰显独特韵味。两侧床头柜对称摆放装饰,布置出一个极具安全感的卧室休息空间。
05 香甜童梦
白色原木系儿童房为孩子打造了一个温柔的成长空间。木质的高低床让两个女儿亲密之余又有自己的小天地~紫色的地毯,花瓣状的顶灯,处处透着温暖与童趣。角落里书桌,特意选择可活动设计,可以根据孩子的成长阶段而调整~
06 从容洗浴
从洗手台到淋浴区,灵巧的布局让功能不会互相干扰,方便全家人使用~玻璃隔断使洗漱环境整洁舒适,搭配简约的灰色大理石墙面,更显大气优雅。当室内水汽氤氲,犹如潮汐涌动,轻松洗涤疲惫,美好感受都在这里慢慢生发。
项目名称:童真不泯
项目设计:深圳漾空间设计有限公司
软装实施:深圳漾空间设计有限公司
项目地点:深圳华润城润玺
项目面积:185 平
装修风格:现代简约
客服
消息
收藏
下载
最近





























