查看完整案例

收藏

下载
说在前面
业主是经过网上的案例找到我们,有整理好一整套的设计需求,从喜欢的颜色到不喜欢的元素通通整理好,沟通非常的有效。层主喜欢一些复古的元素,但希望整体更加的实用,希望对房屋的格局进行细化,增加储物空间,让使用更加舒适,后续的设计中进行得非常顺利,层主配合度也很高,整个落地过程很顺利高效,落地效果双方也非常满意。
原始户型图
1. 入户没有玄关,储物功能欠缺
2. 厨房功能分化,内部使用空间略小
3. 小房间光线较暗,走廊很深的感觉
4. 公卫需要干湿分离
5. 主卧需要浴缸和单独的淋浴间
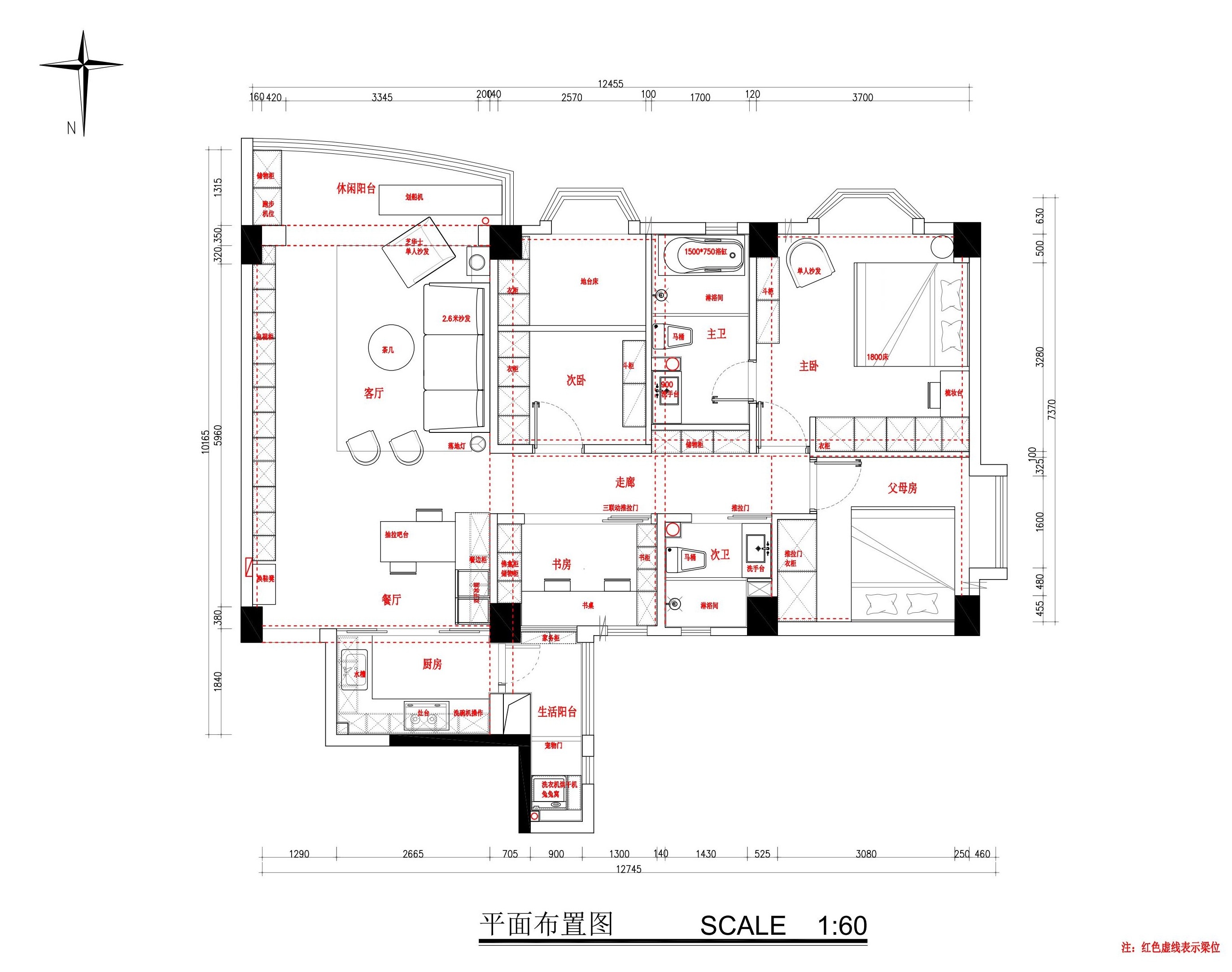
平面布置图
1. 入户将鞋柜和电视柜结合,增加换鞋凳,完善入户功能,同时把侧边做展示柜。
2. 厨房保留 L 型操作台,将冰箱外置,同时将厨房原来的门与墙打掉做整面玻璃门增加通透性。
3. 将小书房的门和次卫的门廊加大加宽,增加走廊的光线,也让小房间视觉更通透。
4. 公卫借用次卧部分空间,用平行式摆法,做到卫生间干湿分离。
5. 主卧室改变开门位置,扩大主卫空间,在保证满足主卫功能情况下,在走廊做家务柜,放置扫地机器人等工具。
入户左侧增加换鞋凳和全身镜,鞋柜与电视背景墙形成一面整墙,侧面的镂空格做弧形设计,更具格调,抽屉满足分类收纳的需求。
厨房门墙体拆除,做四扇双推的钢窗玻璃推拉门,让敞开的空间更大,视觉效果更好。橄榄绿哑光烤漆橱柜与白色方砖的搭配,简洁大方,南洋风地砖让厨房的复古感倍增。
冰箱外置于餐厅,方便料理动线的同时节省厨房空间。
简约岩板餐桌配上藤编皮质餐椅,多头陶瓷吊灯为餐厅的氛围增添了几分温馨感。
鞋柜与电视机做整面悬浮设计,让柜面更加轻盈,整体统一而简洁,白茶绿与白色的拼接中和了整墙白色的沉闷,下方镂空无卫生死角,暗藏灯带提高空间亮度,营造氛围。
阳台利用门垛与梁的结构做弧形门洞,白茶绿的拼色让阳台与客厅在视觉上有一个空间的划分,同时减弱视觉深巷感,回型吊顶让空间更显层高,射灯的增加让照明更加丰富。
全屋以黑白绿棕为主调,复古十足,石膏线背景墙让墙体更显层次感,绿色的弧形拼色与走廊弧形门洞相呼应,落地罩灯的波浪形灯杆,增加几分趣味与设计。
绿色和黑色的绒面沙发让客厅看上去更舒适柔和,皇冠玻璃壁灯斑驳的灯光印在墙上,让弧形拼色背景墙让人眼前一亮。
走廊做拱形门洞的设计,线条柔和视觉上更舒适。主卧墙体的凹位做储物柜,减少墙体的空白,增加空间储物。小书房和次卫门做推拉门设计,增加柔光的同时让走廊更加丰富有趣。卧室
白茶绿渲染在墙面,在一定程度上给视觉起到了降温的效果。半墙的拼色视觉上拉伸了整体层高,让空间更高挑,金属的玻璃吊灯让主卧的复古感倍增,木地板脚感好的同时让整体空间起到沉浸下去的视觉效果。
白茶绿背景墙石膏线内铺设植物图案的墙纸做拼接,让背景墙立体而有韵味。
与客厅同款的皇冠玻璃壁灯,黑色床头柜与鲜花茶杯配合得恰到好处,灯光照耀下,俨然电影感十足的画面。
半墙的到顶衣柜,梳妆台悬浮与衣柜连接,墙角预留镂空位置方便东西的拿取。
植物花纹砖与低饱和度的绿色方砖拼接,配上色彩分明的地砖,吸睛而时髦。黑色的浴缸和洗手台储物柜能够平衡空间众多颜色花纹的碰撞,增加和谐的美感,与金色五金搭配,典雅高贵。
因主卧的开门方向改变,父母房墙体宽度改变,空间面积内缩,将衣柜正好藏于开门位置,房间主要以简约适合休息的陈设,同样以白茶绿作为拼色,黑色的家具搭配花色床单,复古而有质感。
陶瓷罩灯发出的暖黄光线,打在低饱和度的玫瑰、花色床单、橄榄绿衣柜上,一切宛如一下子带人回到了上个世纪的芳华。
次卧做地台床的设计,左边整柜满足储物需求,弧形门洞划分地台床区域,右边墙白茶绿与石膏线的搭配,整体的搭配在视觉上弱化空间结构的单调。
书房三扇拖拉门的设计让空间敞开最大化,柜门弧形的玻璃让橄榄绿的书柜复古感增加,悬浮书桌减少卫生死角的同时,书房的活动空间增加。
次卫门的墙体拆除,改为两扇推拉门,平行式摆放的干湿分离。金色边框的镜子和绿色玻璃罩吊灯更显复古,淋浴区预留壁龛方便洗浴用品的摆放和拿取。
次卫的色调与主卫的基本一致,同样以植物图案的花纹砖拼白茶绿方砖作为背景墙,配上对比强烈的地砖,增添空间时髦感,玻璃推拉门隔断淋浴区,干湿分离节省空间。
客服
消息
收藏
下载
最近






























