查看完整案例

收藏

下载
Introduction/
设计单位 | 原色设计
主案设计 | 黄莉叶敏
项目地址 | 福建·福州
项目面积 | 105㎡(实用面积)
最近落地的新案是个面积有 105㎡的跃层精装房住宅空间。男业主是位走在时尚前沿的发型师,喜欢一切干净简洁,时尚个性化,确又温暖而放松。但是传统、千篇一律的精装房无法符合业主的兴趣、爱好,个性,以及满足更加细节化的生活需求。设计初和业主深入沟通后,权衡了各种因素以及预算成本控制,保留原有的一小部分空间结构,在这样局限性的条件下,如何更加合理的空间规划来满足业主的居住和生活需求,功能和审美也需要充分兼顾,对于第一次接手这样特殊的设计项目,我们需要另一种的设计思考方式。精装房并不意味着得将就和妥协,同样也可以满足业主对美好生活的畅享。
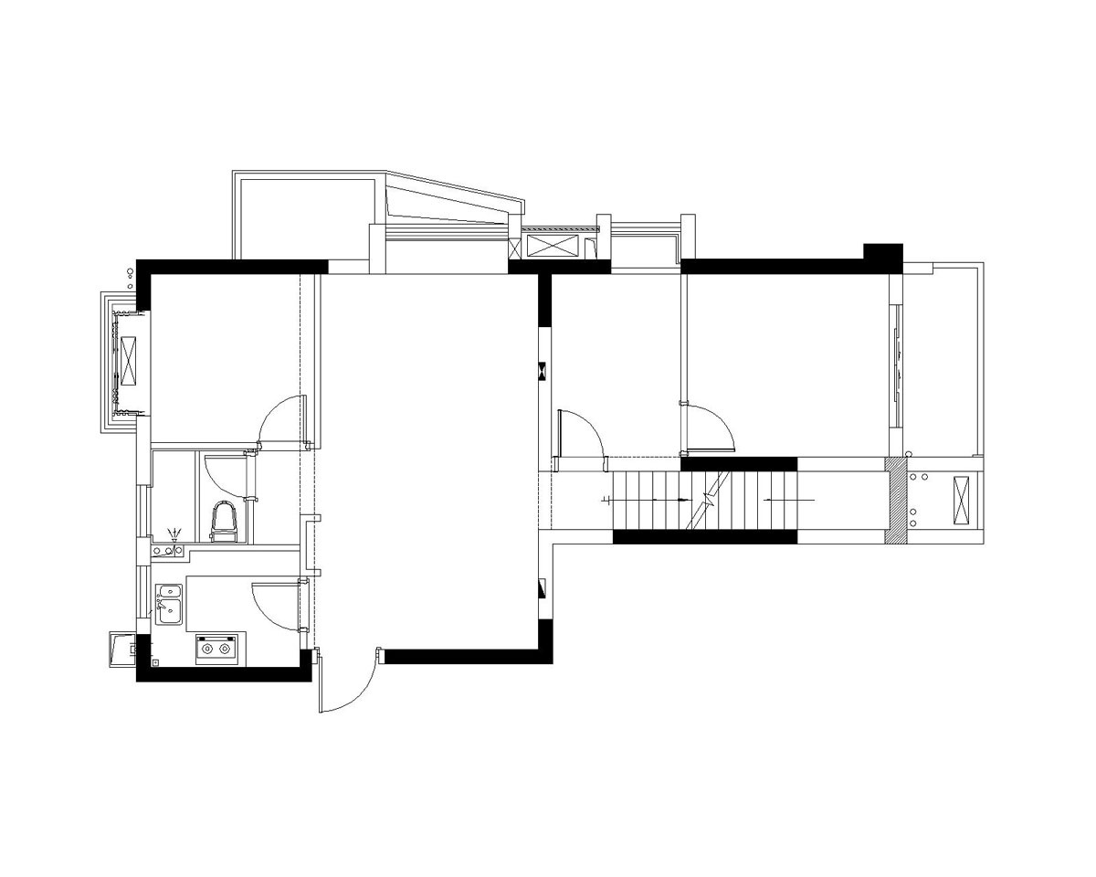
户型图
户型分析&业主需求
1. 这个一套 105 平跃层的精装房住宅空间,原始户型是常见的楼下三居室,楼上一居室的套间,一层的室内多隔间,与业主居住需求不符。
2. 封闭式的厨房规划,空间小,橱柜的操作动线不合理,基本的厨房电器设备也不具备。
3. 跃层楼梯窄而陡,夹在两面墙体中间,舒适性和视觉性上都非常的欠缺。
4. 需要一个开放式布局的多功能房,多种可能性的复合式空间。
5. 原本精装房硬装部分也不尽人意,基本拆除,空间格局只保留了一部分。
平面布置图
空间设计要点:
1. 将餐厅客厅扩大,整合空间,楼下三居室保留两间作为两个孩子的独立卧室,而另外一间则作为融合公共空间的开放式多功能房,拆除原本厚重的 L 型墙体后,整个公共空间顿时敞开通透了,并且原楼梯的狭长感也缓解了很多。
2. 将原来的厨房与公卫干区隔墙拆除,留出足够的冰箱尺寸,重新规划橱柜,优化它的使用功能,并增加了厨房的储物收纳容量。
3. 开放式的多功能房,叠加了办公、阅读、吧台等多种功能性。
4. 二楼则是主卧的套间,主卧室定制的衣柜一直延伸至步入式衣帽间内,两个空间通过衣柜串联在一起,既让视觉有了延伸性,并且满足了更多的衣柜储物收纳量。
- 客厅
黑白灰搭配的主色调,一抹冷峻的克莱因蓝对撞色彩从大面积留白的空间里跳脱出来,体块的交错重叠和结构相互穿插,空间呈现出时尚、简洁、干练的视觉感。
留白的电视墙面,刷了水泥灰色艺术漆,和梁形成纵横的交错感。客厅沙发上、多功能房吧台或是楼梯处各个不同的空间角度都可以达到很好的观影效果。
客厅与多功能房之间没有做隔断,而是通过邻近沙发的长条型吧台,空间通过不同材质与结构的穿插,模糊了区域的边界性。也让视觉的界限有了延伸感,空间界限的模糊让家有了更多的场景可能性,赋予居住舒适和美好的生活状态。
北欧表情的 Hardy 米白色皮质沙发,简洁利落的线条,烟熏色水玻纹玻璃茶几造型灵动唯美,线条感极强的黑色落地灯在空间里显得很有张力,每一件家具都很符合空间的气质。客厅、餐厅、厨房、多功能房、楼梯间等多个功能区域连成一体,创造空间与视野的自由与灵动,简练的线条,光影的错落,空间具有丰富的视觉层次感。- 餐厅 -
餐桌一旁设计了一组悬挂式收纳柜,与斜面的装饰板形成虚实组合,一整排的餐边柜既增加了餐厅的收纳功能,其白色的悬挂形态又让空间显得更加宽敞,给人一种轻盈的视觉感。
FLOS 飞碟吊灯,金属的质感、悬浮的形体,漫反射的光晕。直径 60CM 的吊灯搭配 1.35M 的圆型餐桌,尺寸比例都刚刚好。
一副黑白灰色块的画作悬挂在留白的墙面上,方与圆形成了强烈的视觉差。
玻璃拉门在开合之间,厨房呈现出敞开和半敞开的空间变化。厨房的橱柜和公共空间一样都采用了白色烤漆,让整体的材质和风格形成统一性。
原本厨房空间小,橱柜的操作动线不合理,基本的厨房电器设备也不具备。拆除了一部分隔墙,重新规划厨房空间,优化橱柜的使用功能,并增加了厨房的储物收纳容量,充分地保证业主生活使用的便利性。
-书房
多功能房是一个开放式的布局,叠加了办公、阅读、吧台等多功能的复合空间,未来使用时拥有更多的可能性,并与公共空间形成敞开、互动、自由式的环绕动线。
极强视觉的蓝色吊柜从深灰色墙板上隐隐的跳脱出来。这个颜色做色板的过程就几经波折,长时间的反复调色最后才达到预期的效果。
- 楼梯
跃层复式的楼梯方位无法调整,原本楼梯踏步板比较狭窄,除了加宽每一阶踏步板,并且还大块面地延伸出第一步台阶,采用不规则的几何形体,这样不仅增强了楼梯起步的缓冲,进出敞开书房时也不用担心尖角会造成的磕碰,行走更加舒适安全。
几何构成的白色块面墙板,与灰色横梁相互交错衔接,线性光影从墙板延伸至顶部,墙与顶不再是乏味的平面,让白色有了神采,空间有了韵律。
木质的楼梯扶手内安装了隐形线灯,扶手和楼梯灯巧妙地结合,简洁的线条感,内反射的光影柔和不刺眼。
楼梯处看客厅,不同角度的,客厅呈现出另一种不一样的视觉感受。
- 卫生间
整个浴室柜由简单的几何造型组合呈现,克莱因蓝色小方砖搭配白色岩板台面,极窄黑色边框的悬挂镜,黑色陶瓷台上盆,不仅仅卫浴空间也能打造真正属于自己的时尚个性气质。
二楼主卫的格局和瓷砖都保留了,精装房里米黄色的瓷砖总给人一种老气、大众化的视觉感。重新定制了双盆的浴室柜,用白色岩板台面搭配浅灰色的烤漆门板,内嵌的拉手,简洁的线条,用小的细节去优化和提升整体质感。
- 主卧
跃层复式的二楼主卧是独立的一个空间,透过巨大的落地窗,光线在室内肆意流转,窗边摆放一张休闲的单椅,一盏落地灯,就拥有了一个属于自己私密的角落,身处在这个空间里,能令人感到彻底的放松自在。
二层主卧室定制的衣柜一直延伸至步入式衣帽间内,既能保证空间的延续和整体性,又可以同时满足更多的衣柜储物收纳量。
主卧采用了一些木饰面的材质,木色给人一种自然温暖的感受。细线条感的黑色垂吊灯,特别优雅独特。在木饰面的映衬下灯光显得更加温暖柔和。
- 儿童房
一层 10 平米的大女儿卧室,整个空间仍旧大面积留白,延续了大空间的色彩基调,空间弥漫着静谧安宁。
8 平米的小女儿卧室,空间不大,整木定制榻榻米的床,相连内嵌的衣柜,既能储物,又看起来利落整洁,1.4M 长的书桌搭配几层书架隔板。小空间收纳,储物,舒适感一个都不落下。
客服
消息
收藏
下载
最近






























