知末
知末
创作上传
VIP
收藏下载
登录 | 注册有礼

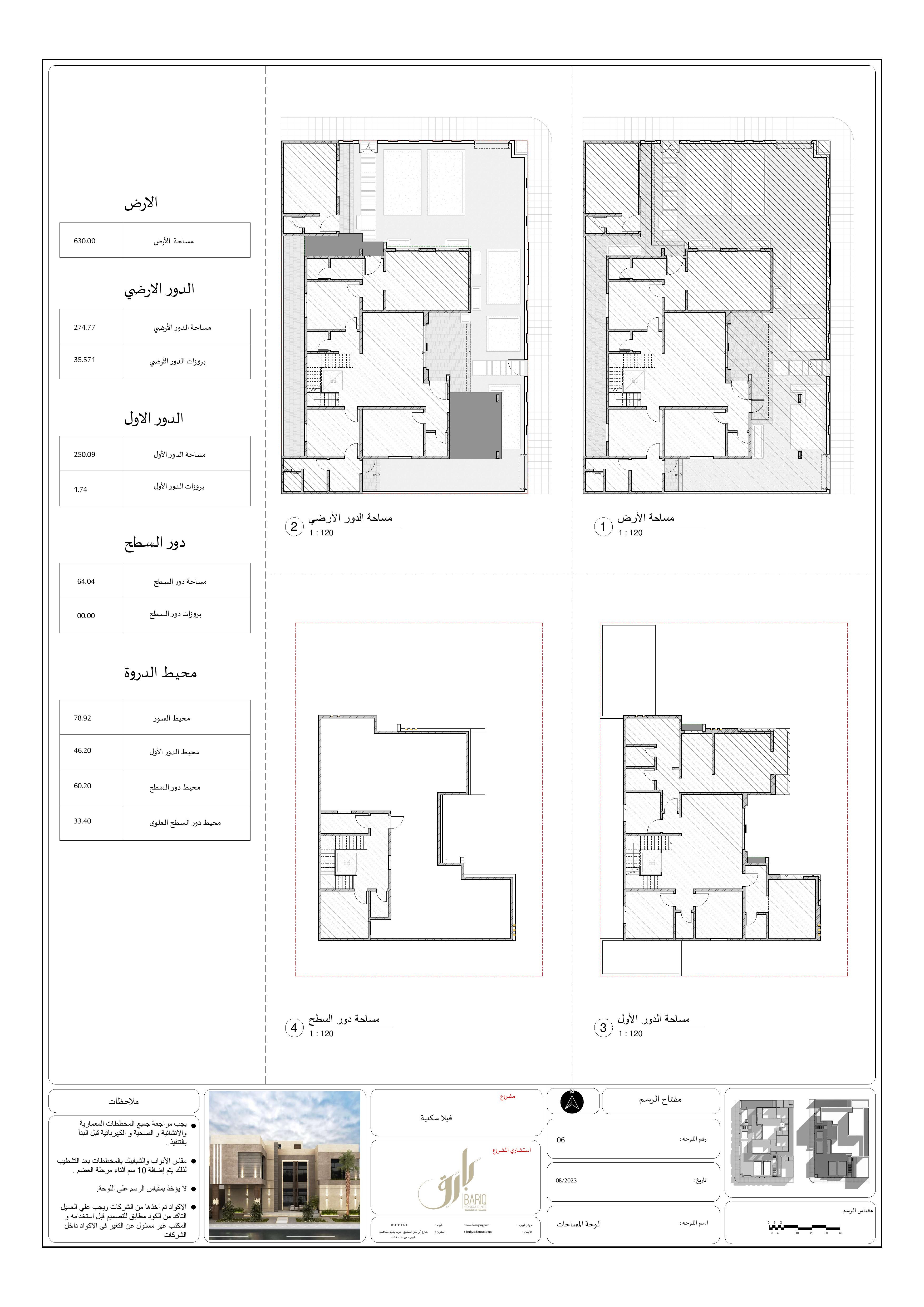
KSA 别墅项目的外部施工图丨Bariq Consultants

2023/09/19 20:22:52
查看完整案例
微信扫一扫
收藏
下载
翻译
Exterior Shop drawings
for a Villa Project in KSA
project: Villa in KSA
Role: Exterior Working Drawings
Year: 2023
Software Used: Revit 2021
Credits To: Bariq Consultants
KSA 别墅项目的外部施工图丨Bariq Consultants-7
KSA 别墅项目的外部施工图丨Bariq Consultants-8
KSA 别墅项目的外部施工图丨Bariq Consultants-9
KSA 别墅项目的外部施工图丨Bariq Consultants-10
KSA 别墅项目的外部施工图丨Bariq Consultants-11
KSA 别墅项目的外部施工图丨Bariq Consultants-12
KSA 别墅项目的外部施工图丨Bariq Consultants-13
KSA 别墅项目的外部施工图丨Bariq Consultants-14
KSA 别墅项目的外部施工图丨Bariq Consultants-15
KSA 别墅项目的外部施工图丨Bariq Consultants-16
KSA 别墅项目的外部施工图丨Bariq Consultants-17
KSA 别墅项目的外部施工图丨Bariq Consultants-18
KSA 别墅项目的外部施工图丨Bariq Consultants-19
KSA 别墅项目的外部施工图丨Bariq Consultants-20
KSA 别墅项目的外部施工图丨Bariq Consultants-21
KSA 别墅项目的外部施工图丨Bariq Consultants-22
KSA 别墅项目的外部施工图丨Bariq Consultants-23
KSA 别墅项目的外部施工图丨Bariq Consultants-24
KSA 别墅项目的外部施工图丨Bariq Consultants-25
KSA 别墅项目的外部施工图丨Bariq Consultants-26
KSA 别墅项目的外部施工图丨Bariq Consultants-27
KSA 别墅项目的外部施工图丨Bariq Consultants-28
KSA 别墅项目的外部施工图丨Bariq Consultants-29
KSA 别墅项目的外部施工图丨Bariq Consultants-30
KSA 别墅项目的外部施工图丨Bariq Consultants-31
KSA 别墅项目的外部施工图丨Bariq Consultants-32
KSA 别墅项目的外部施工图丨Bariq Consultants-33
KSA 别墅项目的外部施工图丨Bariq Consultants-34
南京喵熊网络科技有限公司 苏ICP备18050492号-4知末 © 2018—2020 . All photos and trademark graphics are copyrighted by their owners.增值电信业务经营许可证(ICP)苏B2-20201444苏公网安备 32011302321234号
客服
消息
收藏
下载
最近