查看完整案例

收藏

下载
过去 现在 未来
全都融合成为一个无缝连续体
没有开始 也没有结束
在这样的空间相遇
时间静止
室内面积 / 500㎡
空间性质 / 双层大平层
项目进展 / 待开工
合作模式 / 全案设计 全程托管
项目设计 / 观享际SKH室内设计
内敛的色彩语言 简约的装饰手法
空间纯粹 安静 不张扬
具有微妙的视觉感知力
体现繁华中回归宁静的意味
(画幅偏长请横向观看)
▽西餐厅
▽中餐厅
(画幅偏长请横向观看)
▽棋牌室&茶室
(画幅偏长请横向观看)
(画幅偏长请横向观看)
探讨当代行业精英的生活方式
向内居住 与向外社交的平衡
家 承载的多重功能与个人情感的平衡
(画幅偏长请横向观看)
▽卫生间
▽次卧一
▽次卧二
办公 会客 私人会所……
高档住宅的多重属性
决定空间的叙事性
有秩序的表达 清晰的逻辑梳理
将有限的空间得到无限拓展
感受微风
感受太阳不断升起 光线的移动
我们可以坐在这里几小时
很多时候不说一句话
这就是在 设计之初
想要展现的人、灵与自然的平衡感
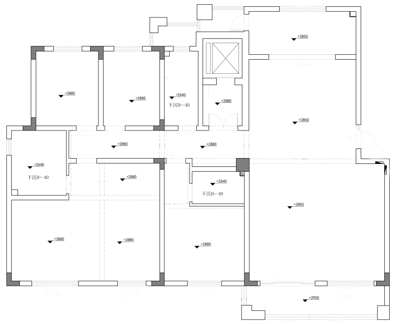
▽ 原始结构图
一、二层原始结构图
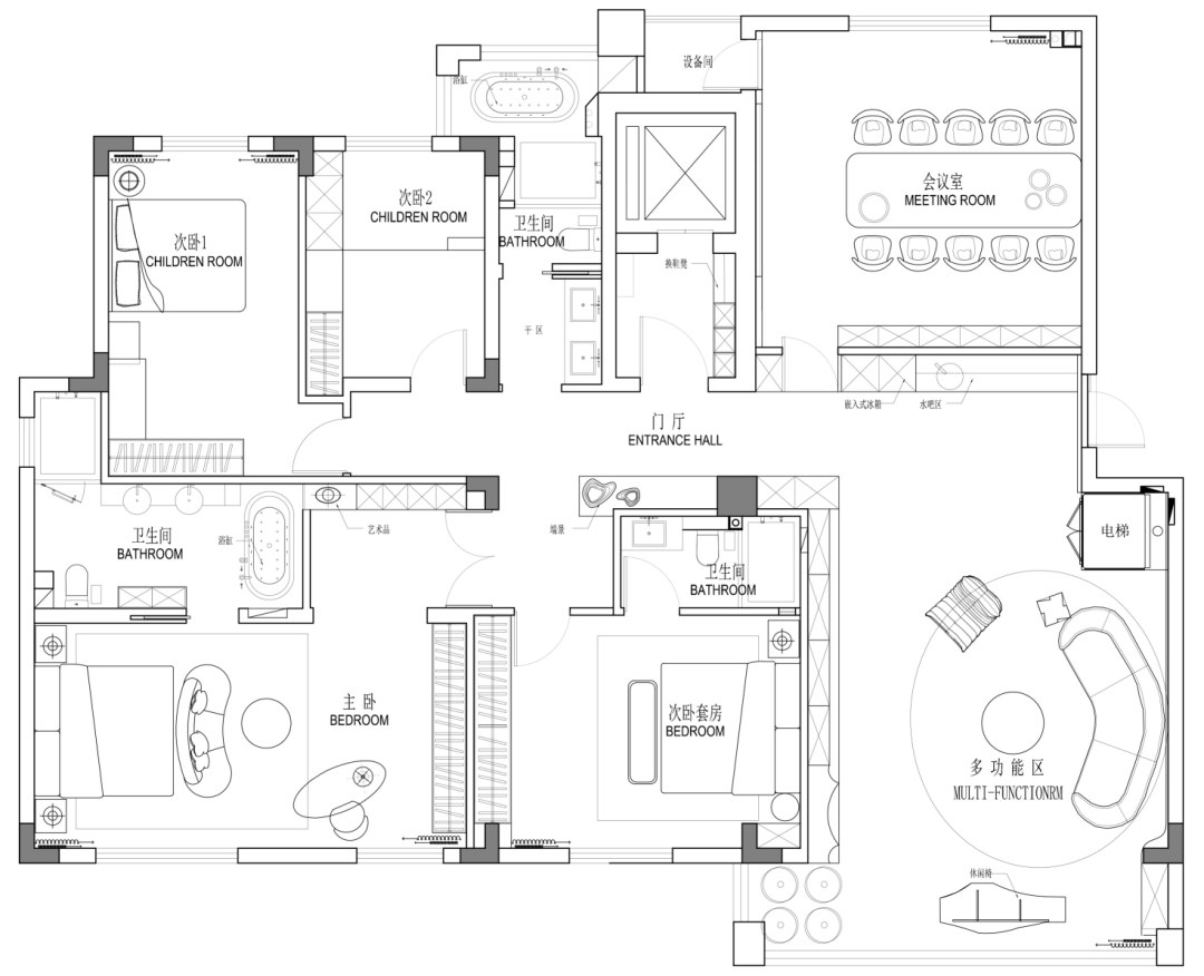
▽ 平面方案图
一层平面图
二层平面图
客服
消息
收藏
下载
最近



























































