查看完整案例

收藏

下载
前言:
社会变革的回应与家居发生奇妙的化学反应,聆听人物故事,创造鲜活的家居生命,见空间于人的感召力。
览世间湖海、踏遍青山,回望烟火人间,万家灯火的向往、亦或是心中避世的桃源,诉求之下的情绪价值愈发分明。
本案将放送三篇家居作品《诗》、《雅》、《集》,诉诸多层空间的家居生活,生命存在的形式斑斓。
• Ⅰ
CASE NAME:诗
项目地址 I Project address:浙江杭州 ·中梁御府
项目类型 I Project type:硬装设计,软装宅配
面积 I Square Meters:150㎡
户型 I Door Model:叠排
视觉表现 I Photography:銀合视觉
低欲望主导的空间气质,纯粹简洁的风格走向,与人碰撞出无限的共鸣与遐想。一人居住的她很明确自身需求,空间功能取舍有度。
客厅原顶面横梁过于突兀,以曲面过渡并在两侧加之于灯光,营造结构间的丝滑与灵动,完善空间的视觉和谐度。
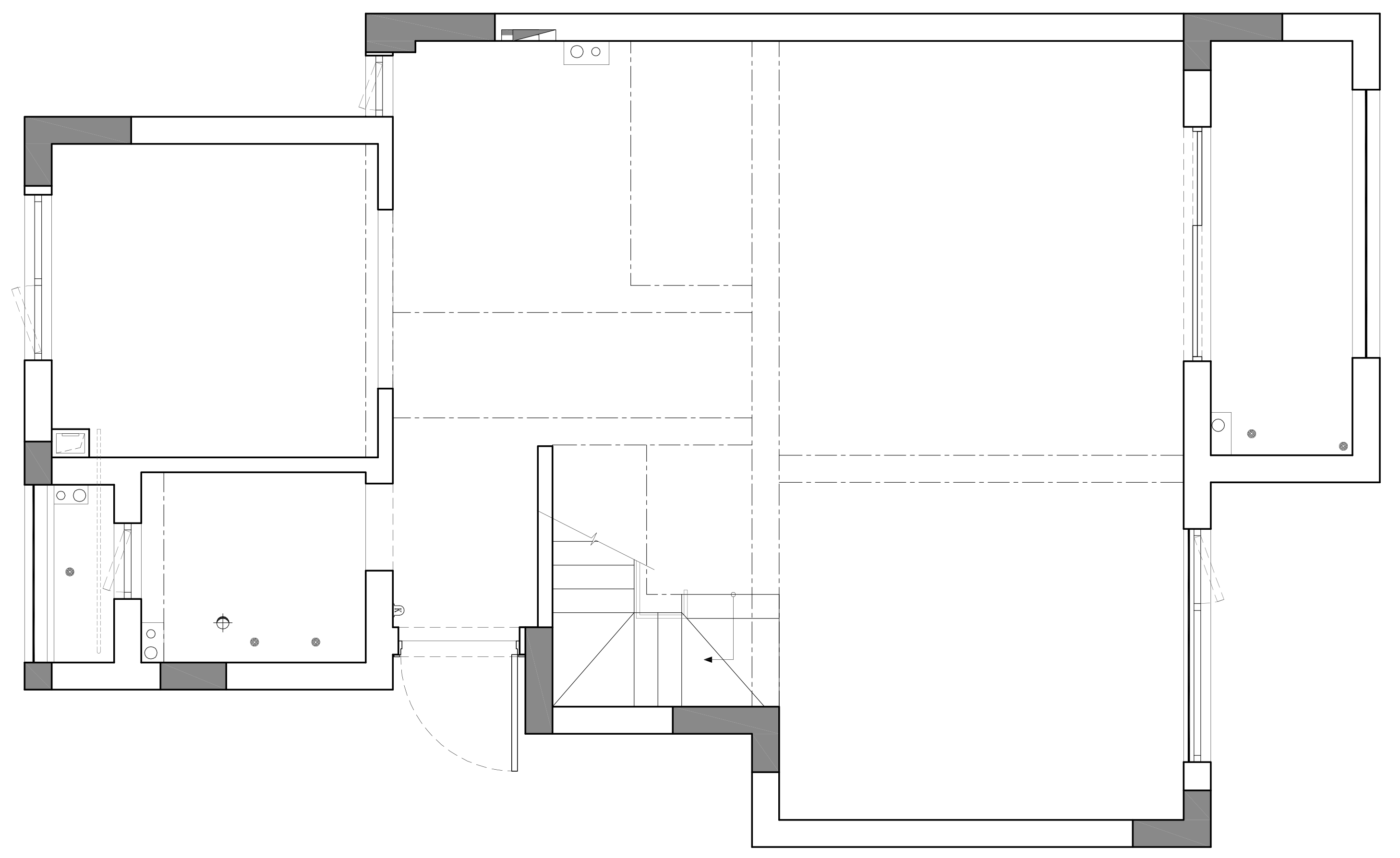
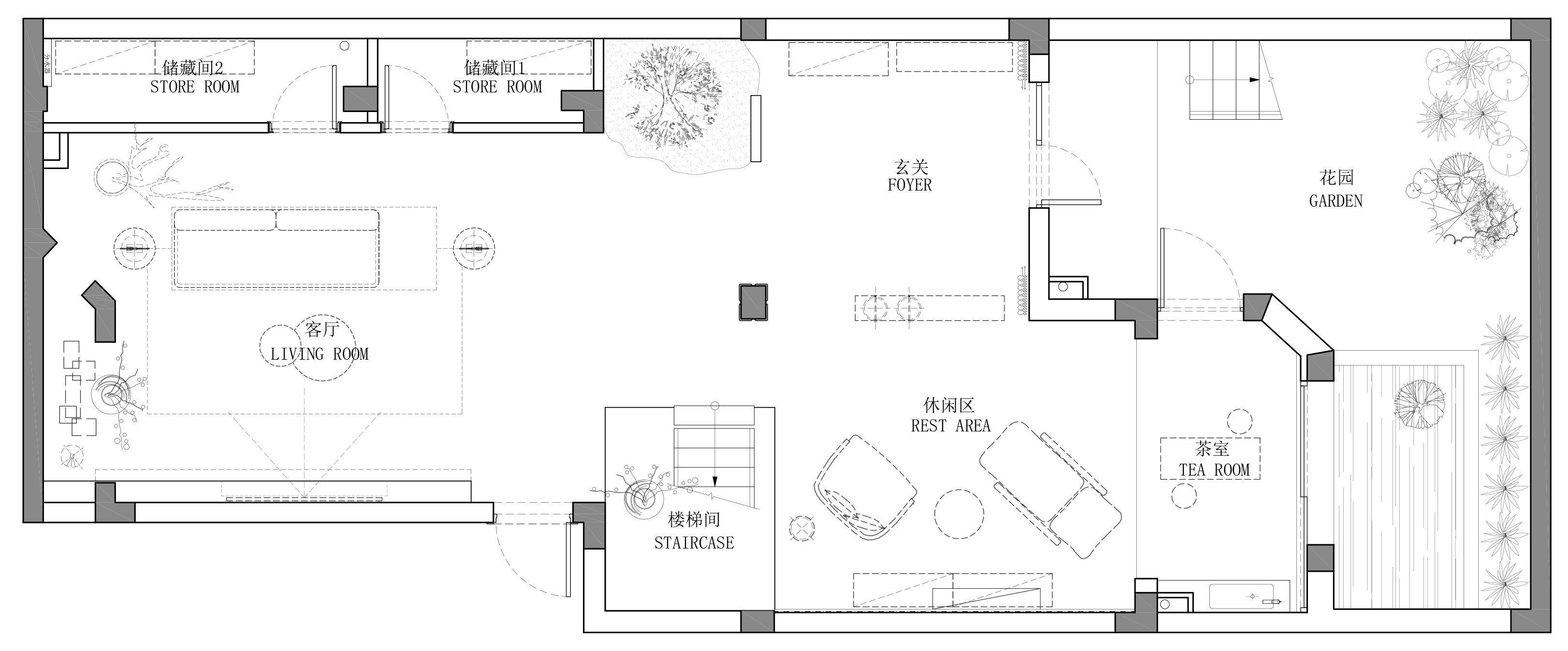
HOUSE TYPE&PLANE DESIGN / 原始结构&平面设计图
一层
二层
三层
• Ⅱ
CASE NAME:雅
项目地址 I Project address:浙江杭州 ·白鹭郡南
项目类型 I Project type:全案设计
面积 I Square Meters:180㎡
户型 I Door Model:跃层
视觉表现 I Photography:銀合视觉
新旧物件的融合出现了时间与空间上的重置,房子前身为一美院老师用作工作室,如今保留其风貌,在其基础之上做延伸有了现在的风格——侘寂,原木的应用 、原始毛顶,使空间有着古朴自然的风韵,更符合当下居者的生活意愿。
负一为休闲放松的公共区域,是饮茶 冥想 阅读的空间,由于是地下空间,故而增加壁炉营造空间氛围,减弱其地下空间的潮湿感。
卧室床头背景别开生面,以原木为形打造空间的质朴温润,柜体更是加入了更多的敞开式空间用以书籍收纳以供收藏阅读。
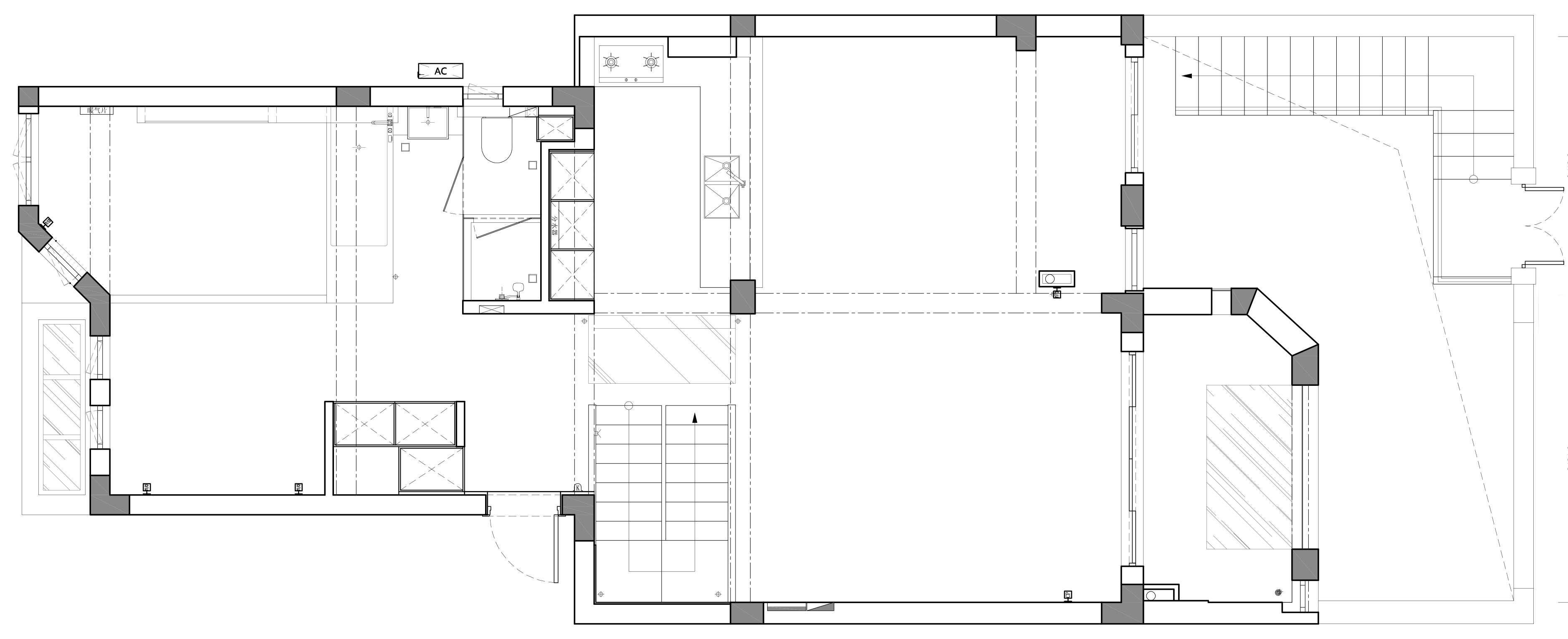
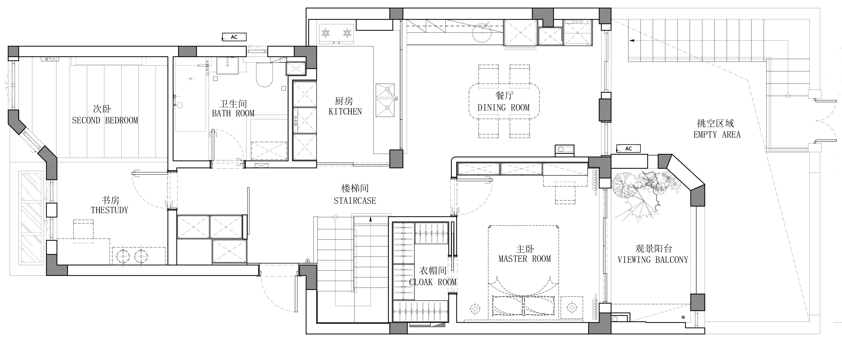
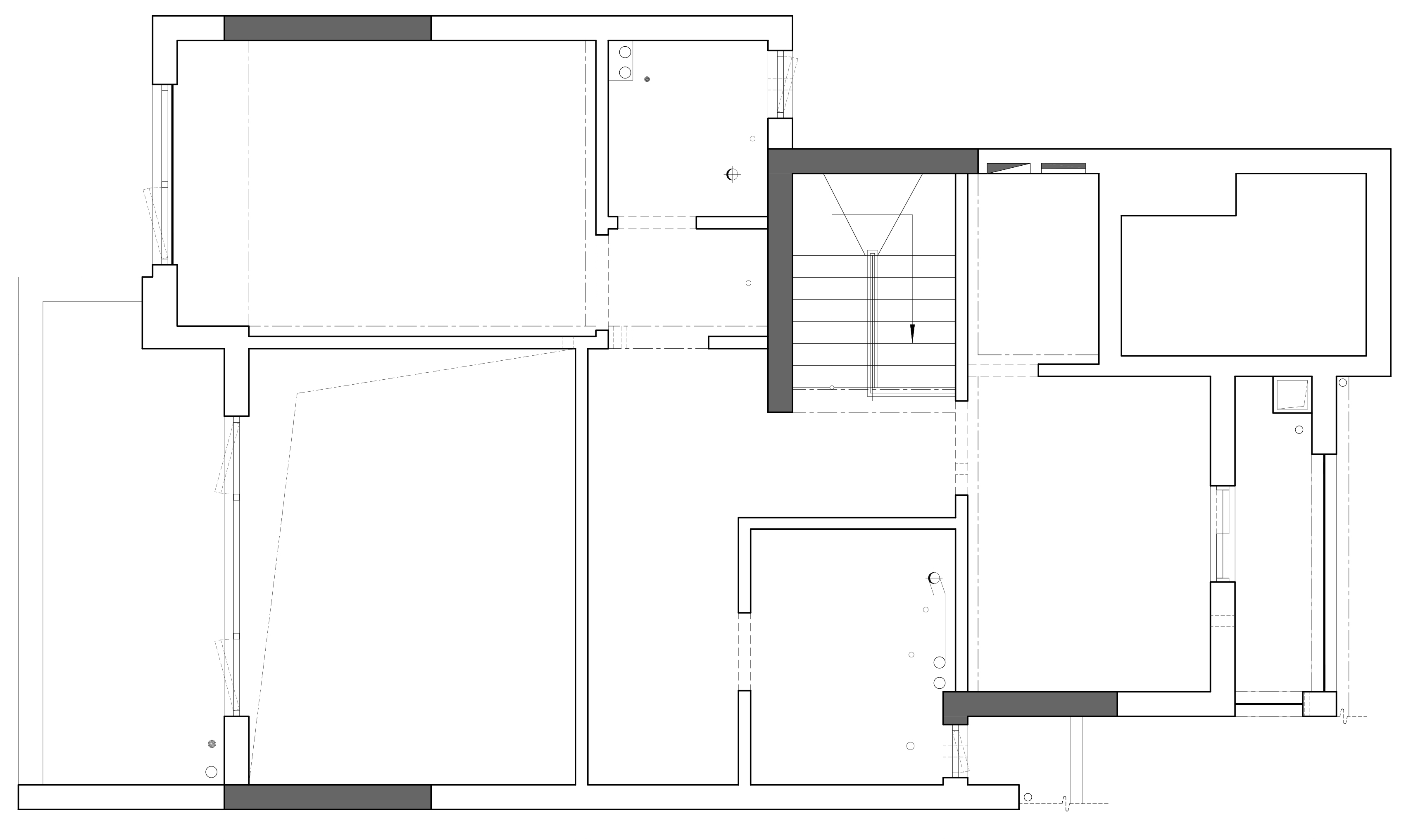
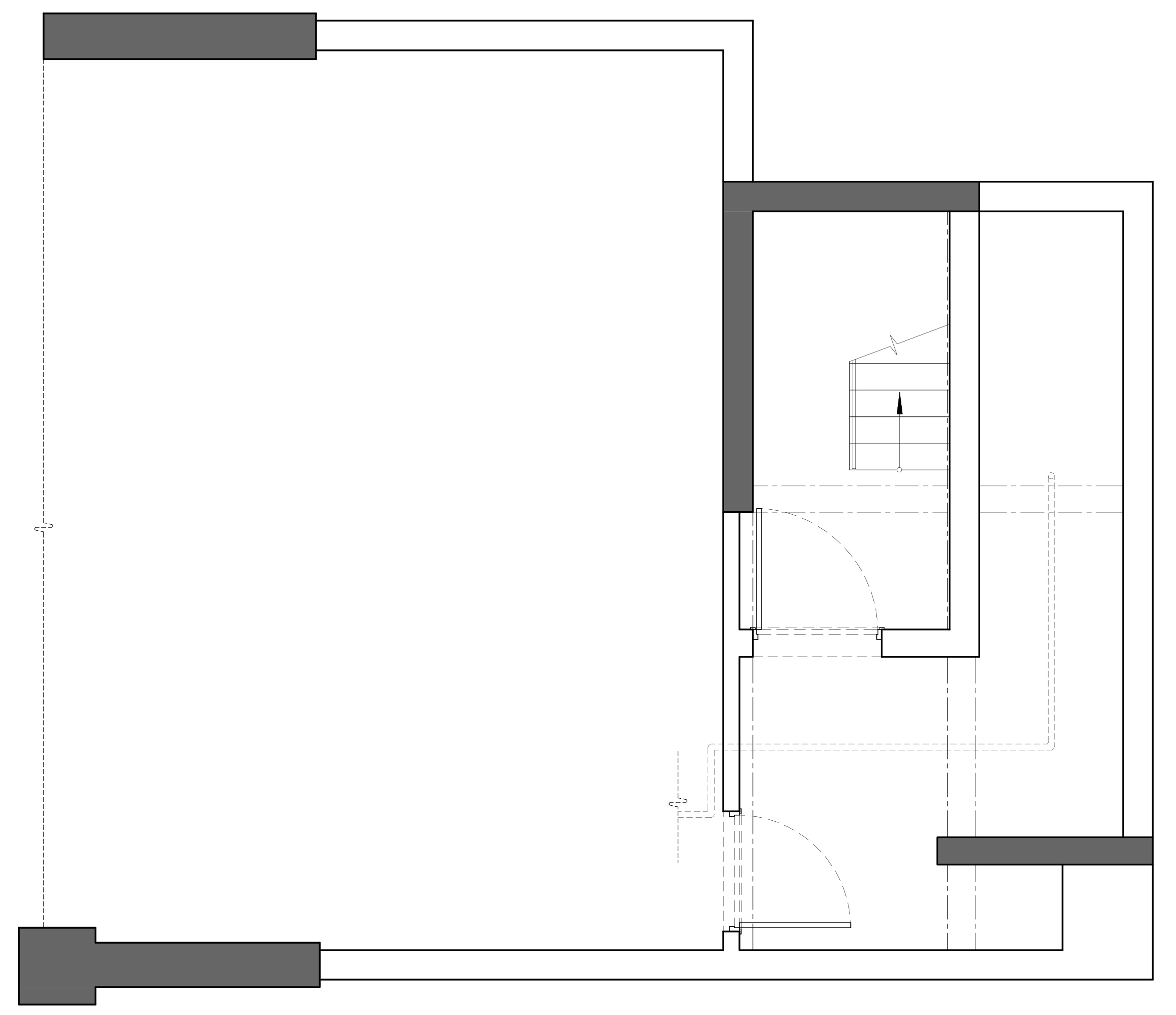
HOUSE TYPE&PLANE DESIGN / 原始结构&平面设计图
一层原始结构图
一层平面设计图
负一层原始结构图
负一层平面设计图
• Ⅲ
CASE NAME:集
项目地址 I Project address:浙江杭州 ·禧瑞江南
项目类型 I Project type:硬装设计,软装宅配
面积 I Square Meters:250㎡
户型 I Door Model:叠排
视觉表现 I Photography:銀合视觉
探索家居生活与艺术之间的表现形式,空间化场景的美感表达,以奶油色搭配几何造型讲述空间故事,一家四口的功能家居生活也不乏艺术表现力。
位于客厅可随机重组的几何体块沙发,另一面可服务于儿童学习玩乐的区域,注重家具功能的灵活应变性。
负一楼以办公休闲为主,平日里除了作为书房使用,男业主也会在此看看球赛。以形似齿轮状的格口做书柜,以线条、板块、曲面造型的交互塑造空间力量。
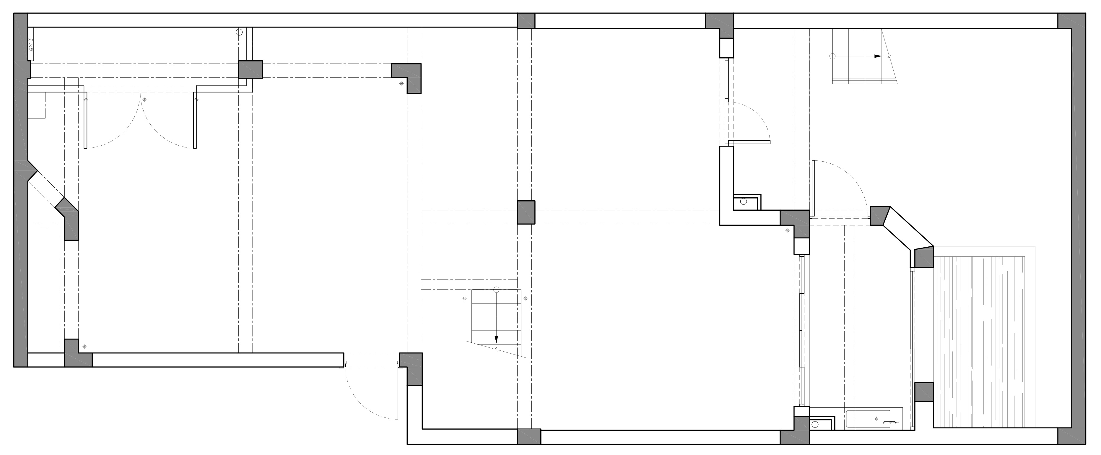
HOUSE TYPE&PLANE DESIGN / 原始结构&平面设计图
一层
二层
负一层
负二层
客服
消息
收藏
下载
最近








































