查看完整案例

收藏

下载
项目地址 | 津发小区
项目面积 | 141㎡
设计风格 | 中古风格
设计机构 | 美宅·美生设计
屋主情况 / House owner
平淡的日子过久了,总想着有什么能给生活带来一些惊喜。
本案是典型的旧房改造项目,虽然原房整体格局跳不出什么大错,但太过于千篇一律的装修风格很容易让人产生审美疲劳。屋主希望,能通过这次装修给自己和家人一个舒适有特点的家。
喜欢中古风格又担心过于丰富的配色会造成空间压抑,希望家能富有特色又担心太个性的空间与家庭成员的生活习惯没那么契合。经过与屋主的深入沟通,我们选择以原木+白为空间打底,并通过开放是的设计手法引入自然光,奠定空间通透基调。并选择一些经典的中古风家具,皮质沙发、黄铜吊灯、复古斗柜......借以增加空间复古气息。
为了让空间布置更加契合屋主喜欢读书的爱好,以整面书柜做沙发背景墙,让空间有了屋主独有的印记。整个空间大气朗阔,又不乏设计小惊喜。
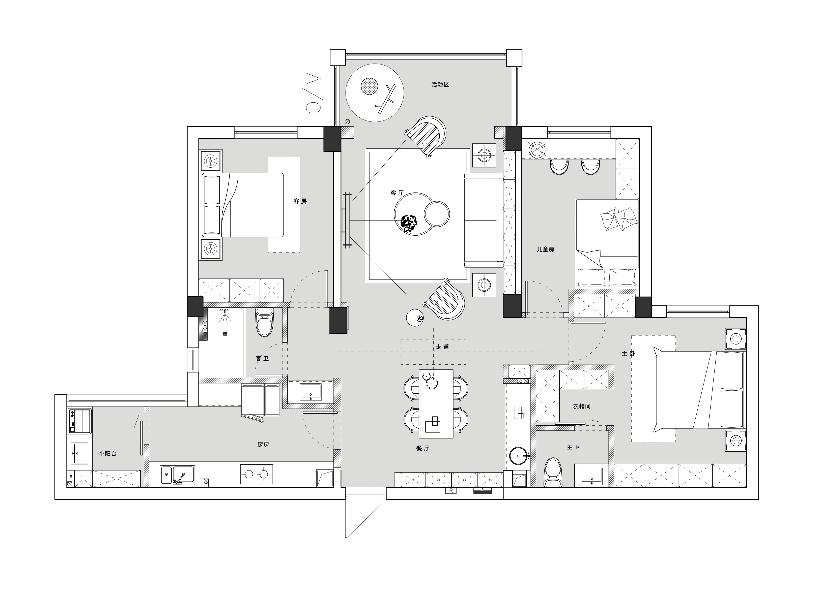
功能布局 / Functional layout
原始框架图△
平面布置图△
设计要点:
1.改变厨房开门方向,避免多个门洞拥堵于同一空间过于逼仄;
2. 厨房墙体内推,借用客卫部分空间,布置储物柜,增加厨房收纳区域;
3. 阳台纳入客厅,拓宽公共区域面积,空间更加通透大气;
4.餐厅靠墙布置储物柜,中间挑空,可做西厨区,做烘焙或处理冷食更加方便;
5.主卧为套房式设计,并通过墙体拆改,改善内套衣帽间采光,打造出亮堂、多功能的私密空间;
6.客房内套卫生间独立出来,并做干湿分离设计,打造更为便捷的客卫;
视觉设计 / Visual design
阳台纳入客厅,拓宽公共区域面积。透过白色纱帘,柔和光线洒入室内,演绎光影艺术。轨道灯+隐藏筒灯的照明方式,纵向拉伸层高。在更具延展感的空间中,人的心情也会明媚舒畅。
一字型沙发作为客厅中的视觉枢纽,以其材质和色彩上的变化赋予空间温暖稳重气质。沙发背景墙别出心裁的以一整面定制柜代替,上方大面积开放格成为天然书架,空间布局更加契合屋主作为教师的职业。下方柜体做出线条感,与墙上的利落PU线条形成呼应。门把手上点缀黄铜元素,于无声处增添居室雅致复古气息。
阳台处一张高脚艺术小几,搭配两张造型各异的单人椅,闲时在阳光沐浴中读书品茶,精致生活有了注脚。上方一盏羽毛吊灯,灵动跳跃,成为空间视觉焦点,不仅呈现出现代轻奢质感,更为空间注入满满的浪漫气息。
布置矮柜既能放置电视,下方抽屉式设计还可收纳零碎小物,减少空间整理的负担。背景墙上除了PU线条,毫无它饰。利落的线条打破白墙单调,也不会造成视觉突兀。
摒弃物理隔断,客餐厅仿若一体,入户后视野开阔。白与原木,既不会让空间产生压抑之感,又不会让配色过于单调。精致PU线条与人字纹地板,以简单的纹理,增添空间韵律。
房子属于入户见厅的户型,几乎没有玄关,在入户门右侧依墙打造一整面通顶柜,既能增加收纳空间,让进出门换下的衣物、包包有了归处,也起到了视觉缓冲的作用。
餐桌餐椅均选高脚设计,即使入户既见餐厅,也不会有视觉上的压抑。餐桌桌脚部分包裹黄铜,用细节增添空间精致优雅。餐椅选择静谧蓝,丝绒材质与蓝色搭配,空间满溢复古氛围。餐桌上方两盏Multi—Lite经典黄铜吊顶,四分之一球可以根据需要定位,让用餐更有氛围。
餐厅一侧为厨房,两个空间的隔门选择窄框长虹玻璃,隔绝烹饪时的油烟,又不会阻碍光线穿过,两个空间隐隐有了互通连贯之感。
餐桌另一侧布置定制柜,并通过中间挑空的手法设计出一个小吧台,台面选择白色岩板,易于打理,放上咖啡机和烤箱就是精致西厨,拓展烹饪空间。
主卧皮质床头自带古朴气息,搭配上方艺术装饰画,卧室自带时间滤镜,整个空间呈现出被时光洗礼过后,铅华褪尽的的高级气质。复古绿丝质窗帘,以看似跳脱的颜色增加空间韵味。
根据空间形态布置一字型厨房,又通过墙体后移,借用客卫部分空间,布置储物柜和冰箱,设计出更加宽敞自在的烹饪空间。厨房地面通铺大理石花纹灰色地砖,易于打理又兼具视觉美观。烹饪区上方布置吊柜,储物上墙,增加厨房收纳区,不浪费每一寸空间。
原本内套于客房内的卫生间独立出来,并把干区外置,做出干湿分离的客卫,方便家人生活。干区墙面铺贴白色六角墙砖,上饰自然大理石花纹,繁简结合中流露出空间的高级复古质感。台盆下方布置靛蓝色储物柜,收纳洗浴用具。黄铜材质做把手,点缀其间,文艺气质复兴。
客服
消息
收藏
下载
最近



















