查看完整案例

收藏

下载
抛弃具象
以纯粹的语言
赋予空间生命力与当代感
设计的初衷
《灰空间》是日本建筑师黑川纪章提出:“一方面指色彩,另一方面指介于室内外的过渡空间。是封闭空间与开放空间的中介,或者说是内容与功能不同的空间之间的过渡空间。由于它的存在,冲破了封闭空间的制约而争取与户外空间取得更加广泛的联系,从而使主体与客体情景交融。”
01 ORIGIN 缘起
家,是一个载体,承载着业主对生活的理解与阅历,记录了内在的情怀和故事。设计师试图将设计呈现初心和对未来生活的向往结合,用心抓取的输出,用当代主义的风格,统合每一个工艺细节、每一个生活场景、每一件有温度的物件,创造出一个全新的生活场景。
通过空间的框线,跳脱豪奢的框架,以随性而无拘束,融入业主内心深处向往的自在自由。不被结构框限想法,设计师重新编排立体界面的吻合关系,打破原有规则,建立空间层次。
无论是家具还是艺术品,都应该在真实的生活场景中拥有生命。在家具及物品的陈列上,摒弃了多余的造型与装饰,强化空间的艺术精神,通过简约大气的布局升华艺术美感。与业主沟通细节、选择款式,同时赋予它温度,这样的家更有味道。
02TASTE OF HOME
家的味道
家的温度 始于陪伴
家之味道 来自餐桌
岩板与皮质的碰撞恰到好处
衬托出餐厅空间的个性化与舒适
一家人在餐桌上共餐
也倍感温馨幸福
餐桌旁的高定酒柜,体现着业主的生活品质。大面积透明钢化玻璃门,隐藏式的可控灯光系统,看上去高贵且充满着魅惑,如同威士忌的香气缠绕着味蕾,久久未散。
全开放式空间,能满足烹饪功能又方便与家人沟通交流。空间形成简而有序的动线延伸,将烹饪厨具完美隐藏于柜内。而中岛台延伸的餐桌,进而演绎出品质感与实用性的双重把握。
03TEXTURE OF LIFE
生活质感
黑色垒石与木格栅拼接的背景墙,细腻而均匀的纹理,立体又饱满。
木调的简净交织着明朗的空间视野,偌大的储物空间将各类服饰收纳其中,展现禅意与自然美学睡眠空间。
主卧正面木质和皮革构成吸引视线的焦点,诠释着生活的质感。
晨起梳妆,迎着朝阳。
在光线的照射下,展现出一套多功能收纳、展示与梳妆台一体的定制。
体块式的视觉,完美的节奏与比例,更显简致有格调。
浴室空间同样有格调。
大理石与灰色墙面融合,让空间更显格调。
黑色边框玻璃门将浴室划分干湿区。
壁龛、洗漱台、储物柜、浴缸,空间都能完美划分使用。
想象在一个悠闲的周末,在这里泡一个舒服的热水澡,点上香薰,放着音乐,是多么的惬意。
次卧延续主卧的设计风格。
在床体两侧设有小型床头柜。
功能房兼顾书房、客卧的自由切换,尽显实用美学的内在魅力。
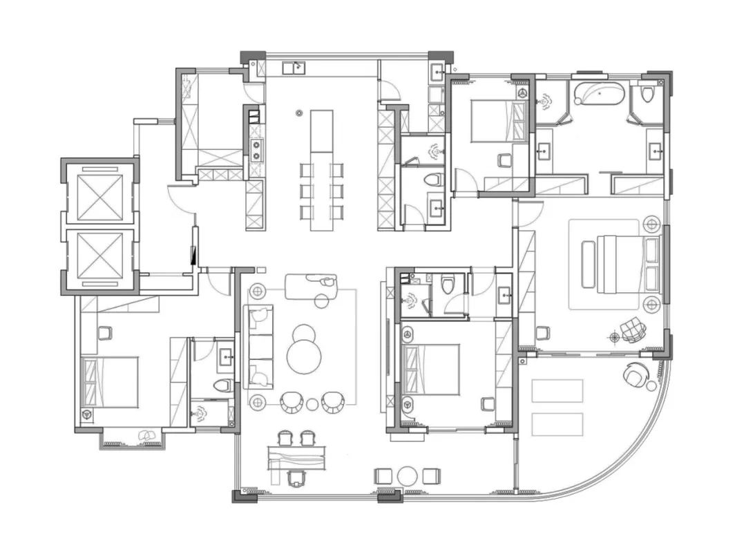
04ANALYSIS DIAGRAM
分析图
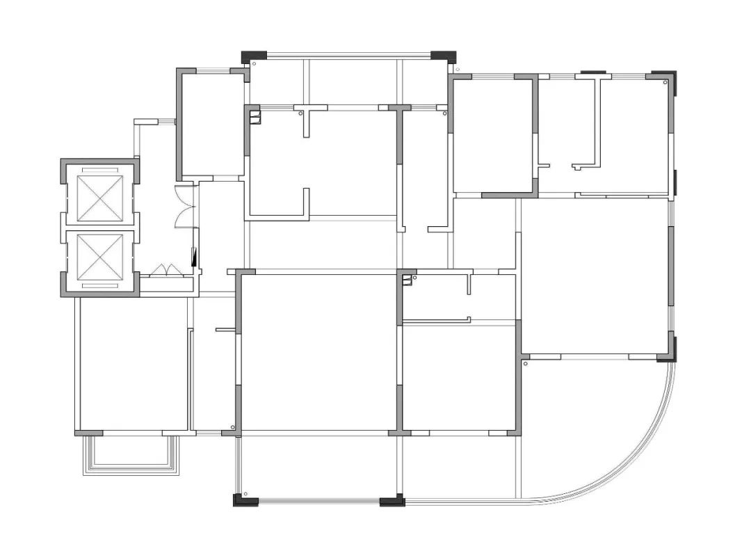
原始图
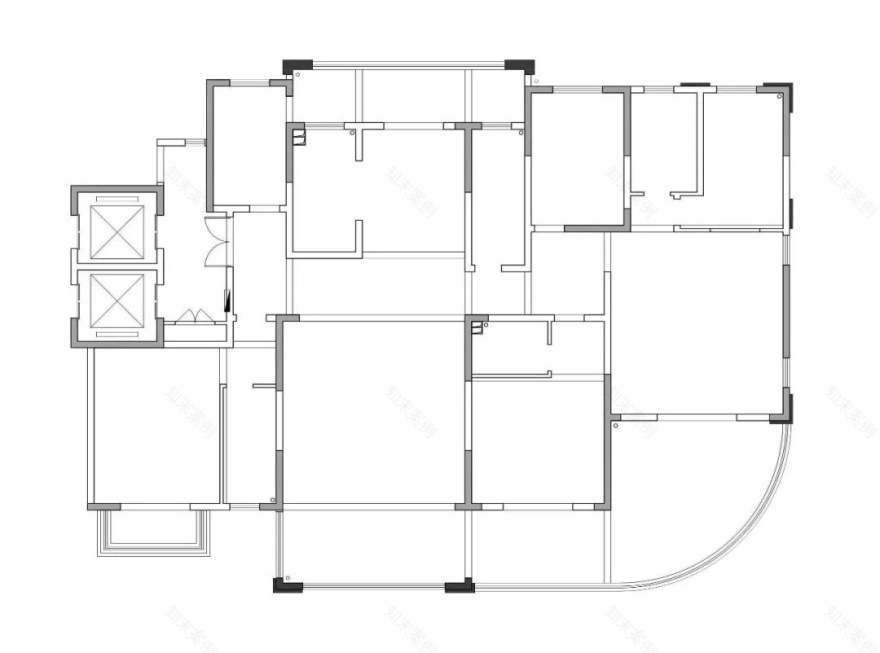
平面图
项目名称 - 灰空间住宅
设计公司 - 吉禾设计
设计总监 - 朱勇
项目地址 - 河南 南阳
项目摄影 - 陈铭
朱勇
吉禾设计创始人
客服
消息
收藏
下载
最近

































