查看完整案例

收藏

下载
六朝古都,十朝都会,南京自古及今是江南富庶之地与文化中枢。长江尊邸,地处主城中芯的河西青奥板块,兼收繁市中的自然盛景和立基贵脉的价值传承。本案作为其中的顶级精装房改造项目,欲以当代的设计介入重新诠释纯净而奢适的人居理想和流贯着艺术光感的美学宣言。
践行“设计与审美隐于生活方式”的演意设计,于此案中引入占据审美高地的法式优雅之美,运用折衷主义思考的当代简约手法,为这个230㎡的大平层顶豪私宅进行空间规划布局与室内设计,着力打造一个理性与柔美、朴质与精致并存,同时拥有外向与内向属性的温暖住处。
△项目视频
01
项目本身是一个全部顶面和部分墙面都布满毛细管的三恒房,设计上受到诸多限制。但约束条件是改造的难点更是创新的原点,寻求基于理性之上的感性演绎。在简单轮廓的空间整体中,入宅即映入眼帘的裸色主色调,缀以贴合大地系的原木色,还原源自生活的温柔肌理,这毫不费力的真实与高级感,为其注入法式美学的精神内核。
演意设计深入挖掘业主对于“家”之独有生活方式的考量和追求,在原有格局中规中矩的基础上,以严谨细腻的艺术笔法勾勒契合个人审美与个性偏好的场景优化定制,容纳生活方式、家庭关系、社交互动多维合一的居家质感体验。
“假如你回望艺术史,几乎所有伟大的创作都与褶皱有关。”
—— Gehry
甫一进门,视觉重心便被似绸缎般折叠起伏的玄关造型所吸引,宛如一道引人致胜的“前菜”。木与石两种材质的叠加让白色有了更具象的艺术表现方式,在灯光的映衬下,是富有仪式感的艺术品,更是一种打破既有程式的玩心与勇气,生活的意趣总来自一些不经意的细节。
02
去除多余隔墙的开放式形态贯穿在公共区域中,将环境与建筑的天然优势最大化,释放大宅风度。空间的流畅性豁然开朗,视野蔓延至整层楼的观景面,裸色肌理的界面在漫溢的阳光下通透生辉,感受到随性的慵懒和治愈的活力。
无碍相通的客餐厅整合之外,阳台与客厅亦经由大落地窗而融为一体,将窗外美景自然“框”进室内,纱帘的奶油雾感在光影下平添流动的视觉美感。洗衣区则隐身于同色微水泥柜门之后,化实用功能为忠于生活的艺术。
隐没在块面、色彩与节奏的振颤中,众多视觉要素相互之间彼此呼应,呈现一种静谧优雅的画面结构和感官体验。
简约优雅的电视墙反而凸显音响设备的高级质感。家具多以弧线型的包裹感诠释舒适与温馨的第一要义。壁炉则以沙发高度为参照,在石材的纹路背景下火光熠熠,立体了空间的纵深记忆,为“流动”姿态增添时光烟火的温度与诗意。
柔和圆角的开放式门框还原了法式建筑美学,但在布局上打破轴线的完全对称,游离在秩序感与戏剧性之间的精妙平衡。
开放式厨房将岛台延伸至餐桌,形成一体式的就餐、咖啡、吧台、社交区域,去繁至简的设计激发轻快自然的都市时尚行为方式,也为包容和谐的家庭互动提供了更多可能性。
03
家是物理的容器,也是精神的载体,兼纳过去和现在许多物质和非物质的交汇点,在空间向度和时间向度上无限延展。顺应空间的自由动线,承载居住者情结与情绪的艺术装置精心落点,而当潜意识的情感被唤起,物件多了不一样的轮廓,诗意的美感由此而生。
低饱和度的空间背景让自然光多次漫反射后愈发柔和,无主灯结构的间接光环境构筑温馨质感。大地色系搭配深深浅浅的木质系统,让卧室和书房弥漫着内在的沉浸气息,利用色块差异勾勒层次,自然而然形成视觉的缓冲与递进。
亚麻、绒布、原木等材质组合以质朴有机的触感,在身心层面提升舒适度及安全感,构筑一个“家”不可或缺的基本元素。自然的取材唤醒静谧的美感,加之流动的线条,低调的设计,恰到好处地拿捏聆听心声的审美观和沉浸式的诗意感。
作为私宅设计领域的专属定制者,演意设计相信“家”不是落于一个个“风格”的公式框架下,而是基于生活方式和情感记忆的设计师和居住者的独特共同创造。捕捉居住者记忆、经历和梦想中的火花,将审美与技法融汇于生活方式和氛围的考量,创造唤起屋主内心情感的空间。
生于优雅,超越舒适。寻求一个最佳的平衡点,兼纳光、影、声、色、风的感性抽象与时、地、人、物、景的具象写实。走进这个住宅,在轻盈的流动性与呼吸感中体验都市自然主义带来的内心平静与平和,开启与心灵合拍、且随生活脉络而持续生长的居家空间生命体。
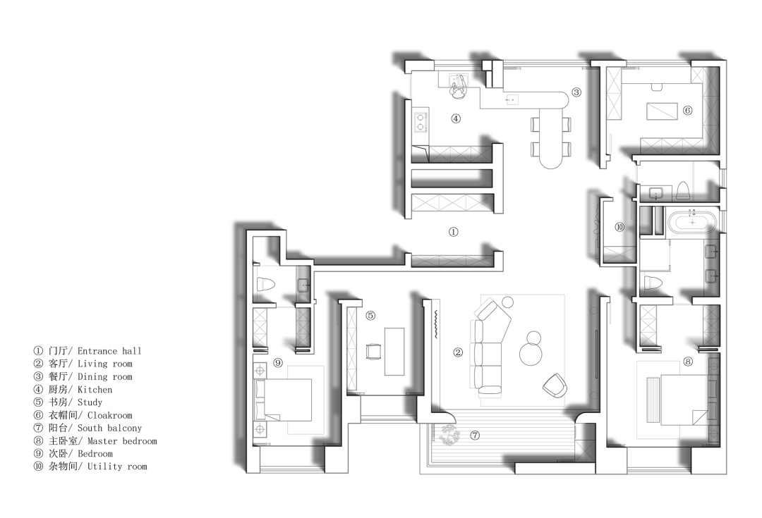
△项目平面图
项目名称|生于自然的精致主义
项目地点|中国 南京
项目面积|230㎡
项目类型|精装私宅设计+全案托管
完工时间|2022.8
设计公司|The Deduction 演意设计
设计总监|王璠
设计团队|袁子昂、郎泽
项目摄影|WM STUDIO
部分品牌|Edra、TON、Ligne Roset、Bang & Olufsen、ZIETA、LAMINAM岩板、RARA、Poliform、GUBI、Miele、SMEG、都汇里、玛利洛、Flügger福乐阁、梵几
王璠
The DEDUCTION|演意设计 创始人 / 设计总监
客服
消息
收藏
下载
最近














































