查看完整案例

收藏

下载
説在前面
本案是一个老房改造的项目,位于广州天河。本次的改造项目的屋主相对比较特殊,Will作为一名建筑师,本身对于设计有着独特的见解。非常荣幸地能够成为本项目的设计团队,与屋主共同完成此次的设计。光对于建筑和室内有着本身的重要性。得益于本项目位于老小区,作为框架结构,一楼一般作为商铺,所以外立面的改造性比较大,通过外立面的改造,我们可以将更多的光引入室内
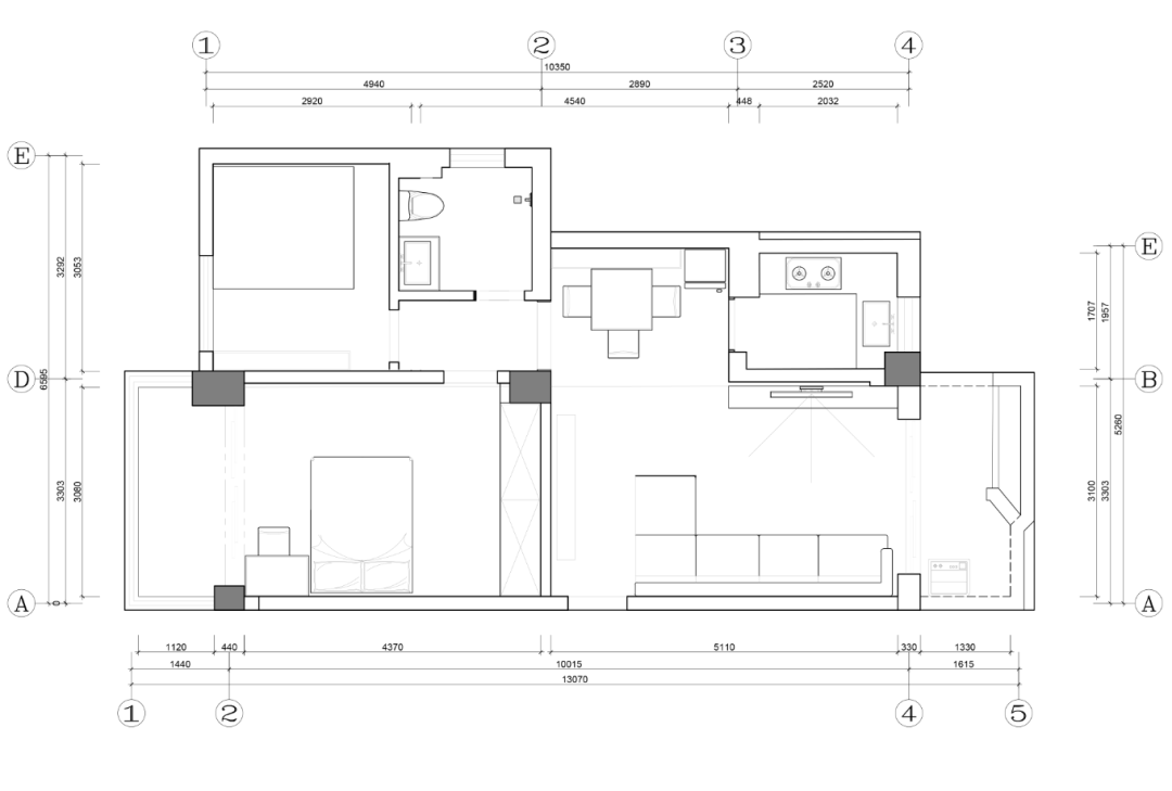
户型图
原始户型是两房一厅一厨一卫的框架结构,对于空间优化有比较大的可能性大,因为小户型,户型的痛点就是小,所以我们重点考虑的是如何将空间感进行扩大,同时满足储物需求
分析1:入户缺少儲物的功能,没有换鞋功能
分析2:原有的电视墙在厨房的方向,导致电视墙的完整性和储物功能利用率相对比较低
分析3:餐厅位于回厅的区域,是动线交集区域,容易造成动线拥堵
分析4:厨房的空间比较小,利用率不高
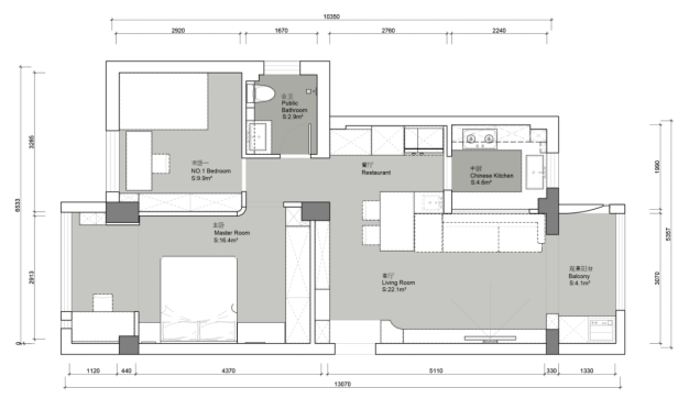
修改後的戶型圖
1:入戶设置了整体式的鞋柜,增加了换鞋凳,提高储物功能
2:我们将沙发与电视进行了调换,调换之后电视柜可以做成整体式,提高空间的储物功能与整体性。沙发背景与厨房的空间相互贯穿,让客厅的空间感有所延伸
3:餐厅与沙发结合,能够避免空间比较拥堵,水吧区与餐桌和沙发的结合,同时满足了功能性的需求,也提高了空间的利用率
4:厨房由原来的L形操作台面改为U形台面,提高厨房的操作空间及储物功能,并且将冰箱及烤箱等放置在厨房外面,避免了油烟的影响
5:将阳台纳入客厅空间后,室内空间也有较大的提高
入户玄关
天花采用了局部的弧形,以此弱化梁位,入户尽头我们做了一个造型柜,局部的弧形处理与天花有所呼应
改造前的客厅
改造后的客厅
入户增加了换鞋凳,并且设置了全身镜,方便日常出门的使用
沙发背景墙用了大面玻璃,让空间更有穿透感
改造后的餐厅
厨房前后对比照
厨房由原来的L形操作台面改为U形的操作台面,提高了操作空间和储物量。大面的玻璃窗户,让厨房空间变得更加通透
透过厨房窗户可以看到客厅外面的空间
因为屋主特别喜欢木质,所以过道的墙面我们全部采用木饰面作为装饰,卫生间采用了长虹玻璃门,让过道不会显得过于昏暗和一成不变
过道的两个房门采用了和墙面统一的木饰面,并做暗门处理,提高了过道的整体性
改造后的主卧
主卧背景墙采用了木饰面和灰色的墙布结合,床采用了无靠背,减少床的长度
给过道留出足够的宽度
背景墙设置了一条灯带作为氛围灯,悬空式的床头柜和衣柜进行结合
改造后的女儿房
女儿房采用了大量的牛油果绿色作为房间的主色调,营造一种清新且温暖的森林氛围,上下床底部的屋形状让空间变得更有童趣
原来上下床还可以用来荡秋千,每个小孩都是奇思妙想的,让小小的空间能够成为自己的小天地
卫生间
改造前
改造过程
设计团队
Completion time/竣工时间:2022.03
COMPLETION TIME/2022年03月
Interior Design/室内设计:MUYI DESIGN/睦一设计
Design team/设计:简维、黄俊杰、林锦婷
Design team/设计团队:黄仕俊、胡绍盼、冯淑芳、文秀红
Lamp design team/灯光设计:思塔设计/卢红卫
The camera crew/摄影:黄俊杰
jojofly 发表于 2022-7-14 11:27
客服
消息
收藏
下载
最近
















































