查看完整案例

收藏

下载
最近落地的新案位于北京,是个面积足有 300㎡的四层别墅。
屋主是位年轻帅气的男演员,平日里爱好摄影和音乐的他,喜欢一切简洁而考究的事物,对家的愿景也是去繁存简、独具匠心。在这一点上和我们的设计理念不谋而合,所以找到了我们来做改造。
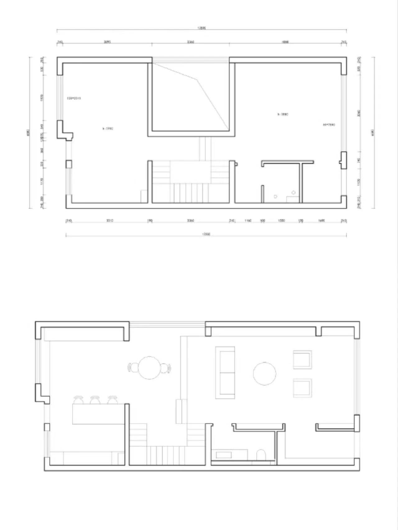
一层原始户型图
房子的原始户型比较方正,左侧是客厅餐厅的分区,右侧是玄关和客厅,但由于建筑的中心有个开发商赠送的天井,导致空间不够通透。
所以我们决定将天井部分打通,让空间更明亮、宽敞的同时,也实现更高的利用率。
一层改造后
去掉天井之后的一层,主要被划分成两大活动区域,右侧是以会客为主的客厅兼带客卫,左侧则是开放式餐厨空间。
空间的划分变得更加明确,不仅是采光得到了极大的提升,空间感也更强。
二层原始户型图
随着楼梯上到二层,右手边是男主人的主卧,左手边是为偶尔会来拜访的客人准备的客卧。同时在卫生间布局上,也让主、客卫浴实现了干湿分离。
二层改造后
主卧的格局就比较有趣,卧室、三分离卫生间、双开门衣帽间分别形成了中轴对称,很有秩序感。
三层原始户型图
三层空间设计了男主人妹妹的卧室和猫舍。
三层改造后
卧室连同卫生间的布局与二层男主的卧室一致,都是洄游动线结合三分离卫浴。
地下一层原始户型图
地下影音室以影音体验和娱乐为主,结构上没有大的改动,只是格外安排了一间卧室。
地下一层改造后
玄关设计了鞋柜和储物柜,用来放鞋的矮柜上方可以随手放置钥匙、门卡等琐碎物件。极简的柜门表面刷了和墙面一样的艺术漆,更有整体性。
一幅线条抽象的当代风画作让这个小角落不乏趣味。画作:Atelier Realism No.55
米色调墙面结合木色、黑色、不锈钢色贯穿全案,让整个设计拥有了整体性,但这些色彩又以不同的比例在各个空间中呈现,使得所到之处都充满惊喜。
艺术漆的肌理、木纹和剑麻构成了侘寂的氛围,不锈钢与玻璃又带有几分工业气质,整体调性在刚和柔之间达到了微妙的平衡,使人感到丰富又自然。
从玄关进入客厅,首先能看见两面相互对称的内嵌式书墙,这里用来陈列书籍、植物和男主人收藏的摆件。为了防止变形,隔板内使用了方钢,十分稳固。内嵌的灯带,也可以在夜晚提供照明,让周围充满氛围感。
书墙表面依旧刷了米色涂料,让它与墙面材质色彩一致,也和周围的木色十分搭调。书架的高度和左侧的梁、右侧的门洞同高,也是为了更有整体性。
来到客厅中心,可以看出全屋追求极简,但不乏丰富的视觉层次。硬装上简练的线条,给沙发区的布场留有足够的发挥空间。
设计之初考虑到男主人所倾向的风格是宁静、简约和品质感,所以在一片柔和的色系中,选择了全套黑色的沙发,尽可能减少跳脱的色彩,更好地放大造型和材质的特质,让细节更加经得起推敲。
同时,这里所有的家具也很能代表主人的气质,例如黑色三人位沙发,就像三个独立单人椅拼接在一起,少了些慵懒感,多了几分利落的品格。
三人位沙发:FK 6720-3 Lange Production
圆框不锈钢边几:ClassiCon
另外两把出自大师的单人椅,造型经典考究,也让空间不落俗套。
巴塞罗那椅:Knoll International
皮质沙发椅:Black Mantis Chair
烟熏色玻璃茶几造型硬朗有力,光亮的玻璃表面和地上粗粝的剑麻地毯形成一种精与糙的对比。
有多个灯头造型的落地灯在空间里显得很有张力,一扫极简的乏味感,不锈钢的质感和黑色更搭配。
玻璃茶几:cockpit low table TE-22
落地灯:Atelje Iyktan 的 Five Floor Lamp
在沙发后面也放置了一款不锈钢材质的置物架,它和空间中的其他不锈钢元素呼应,又能在视觉上隔绝两个空间,但不影响视线。
为了使空间里面的材质不会过多而造成混乱,全屋都应用了不锈钢把手、插座和开关,并把它们都设置在 1m 的高度。因为这些点位在视平线以下,所以在视觉上有拉高层高的效果。
客厅中部的楼梯就像雕塑一样,是设计中的一大亮点。它从一层贯穿到四层,延伸了地面和顶面的材质,具有统一性的同时,又存在着有律动感的变化。行走在其中,能感受到一种奇妙的流动感。
一把用黑色金属材质的椅子放在楼梯旁,精细的线条和楼梯的体块产生碰撞,承载了很强的装饰作用。
扶手椅:Mario Botta 的 Seconda
整个楼梯的采光是靠台阶上的地灯实现,没有在顶面布置灯,为了不破坏楼梯的整体性。
开放式厨房以黑色为主,黑色的框架中嵌套了黑色橱柜和吊柜,像画框一样,把水槽和隔板也框在中间,带来很强视觉冲击力的同时,彰显极简主义的酷感。
橱柜前面是一个岩板做的黑色岛台,与后面的背景形成呼应,三把吧台椅都是在 Concept 101 淘的中古椅,柔软的皮垫坐感很棒。
吧椅:Midcentury Barstool
厨房的顶面和客厅一样都采用了木饰面。除了更整体以外,也显得更温馨。
岛台的对面设计了一组高柜,里面嵌入了烤箱、冰箱和电器柜。
从这边看向客厅,可以感受到畅快的通透感,以及材质和风格的统一性。
圆形的餐桌是选用洞石定制的,三条腿不一样粗细的造型十分有趣,白色飞碟形玻璃吊灯温润如玉,和黑色餐椅搭在一起很有艺术感。
吊灯:ASTEP 的 Model 2065
黑色直腿椅:B&B Italia 的 Dialogo Chair
洞石餐桌:定制
为了让这里有家的自然感,特地选了高挑的百合竹和金丝猴蕨点缀在角落。当光线从很有质感的亚麻窗帘透过,植物可以让这里充满生机。
一层客卫因为只供客厅使用,所以没有设计淋浴区。无淋浴区的卫生间大胆使用了木饰面,和客厅质感统一的同时,显得更温馨。
黑色岩板洗手池颇具质感,金属色的镜边和水龙头相呼应,细长的镜子让层高看起来更高。
床在卧室的中心,因为背面设计了通顶的背板,所以整体形成了一个“洄游动线”。从外面进入室内,背板的遮挡,让生活拥有一定的私密性。
床头兼具收纳功能。在条状壁龛的侧壁设置了插座和开关,方便屋主随手充电和放东西。
床的对面没有选择传统的电视入墙,而是在角落里面配置了可移动的画境电视。这样在最大程度上保证了木饰面的整体性,也满足男主人偶尔要看电视的需求。电视:三星画境
床榻的左手边有一扇双开的隐形门,门的表面刷了和墙面一致的色漆,更有整体性。
而推开两扇非常有仪式感的门之后,会进入木盒子一样的空间。原来的天井被填平之后,空间被纳入主卧,所以这里就成为了男主人的衣帽间。黑色木质雕塑:丹麦当代艺术家 Nicholas Shurey
L 型的落地衣柜隐去了把手,和地面、天花板融为一体。旁边的矮柜可以用来放领带、手表、首饰等小物件。大面积浅木色不会显得空间压抑,给人无限温柔的感受。
卫生间采用了三分离。中间是洗手的干区,左侧是淋浴间,右侧是马桶间,墙面材质是微水泥的,和墙漆一样的颜色,带来整体性。
浴室柜用黑色岩板台面搭配黑色烤漆柜门,除了台面上设计了灯带以外,墙上还点缀了一盏不锈钢圆灯,用小的细节提升质感。
在满足功用的情况下,也选择了一些具有艺术感的挂画和家具。比如造型很有趣的白色高背椅,不同于常规的椅子,放在角落里让人觉得充满艺术感。白色又比黑色更显高雅,和黄色画作搭配在一起,充满格调。白色椅子:Vico Magistretti 的 golem。
客人房选了深一色号的米色铺满墙壁。暖色调搭配大面积木色,给人制造如主卧一样的自在感。
客卫也实现了干湿分区。干区设置在靠窗的地方,可以随时观赏窗外的风景。
一面全身镜可以完整照镜的同时,还有放大空间的效果。
湿区用玻璃将马桶和淋浴隔开,这样马桶区不会淤积潮气。同时用微水泥粉刷的墙地面和不锈钢门框,都在让全案保有统一性。
空间延续了此前空间中的米色艺术漆,但这里不同的是,整个空间被两面大大的窗景环绕,采光十分好。
一幅蓝色画作点缀在背景墙上,更加契合这里安静的氛围。
这间客卧没有独立衣帽间,所以选择了内嵌衣柜,既能储物,又能看起来利落整洁。
在靠南面窗户的地方,为妹妹设计了一个小小的化妆间。自然采光好,日常她可以在这里完成化妆。
卫生间的设计延续了主卫浴的形式。依旧是黑色岩板搭配黑色烤漆柜门,简单而纯粹。
因为男主人十分喜欢猫咪,所以在三层用了很大的空间做了猫舍。不锈钢色门框结合大面积玻璃,可以清晰地看到猫咪在室内的活动状态,木色顶面、地面和柜体也与其他空间的风格吻合。
猫舍外面的洗手池方便随时清理主子们的食物器具,上下两层柜体也可以收纳他们的粮食和猫砂。
为了让影音室获得更好的效果,选择了黑色墙漆营造隔绝喧嚣的氛围感。黑色也是空间的主体色,和木地板的搭配呼应全案。只在画作、走道上布置了局部的灯光点位,足够的氛围里,光线充满层次。在空间的中心,选择了一张黑色毛毛虫沙发,舒适惬意又能呼应空间整体的色调。
电视柜也选了黑色的柜子,不光是为了和整体的黑色调呼应,也是为了能让男主人在观影或是玩游戏时,拥有沉浸式体验,而不被过度的装饰所分散注意力。
沙发:Togo Ligne Roset
电视柜:USM
除了娱乐以外,男主人也喜欢在闲暇的时候弹钢琴。所以我们在角落里设计了一面像窗口一样的壁龛,里面嵌入灯带,为了营造更好的氛围。
[url=]收藏[/url]
所有的设计细节都遵循简洁和留白。最大程度上让人感受到光影和材质的细腻,强化对于幸福生活的感知度。
客服
消息
收藏
下载
最近











































































