查看完整案例

收藏

下载
逸想空间智慧
引领经典格调
延展出高视野、丰雅兴的生活美学
焕活新时代的简约气质
项目:绿地萃雅苑
面积:220平米
机构:远上建筑设计事务所
设计:范超
用材:乳胶漆、木饰面、岩板
品牌:远上色彩、唯宝、美光照明、HOME SPACE+
▼ 原始图
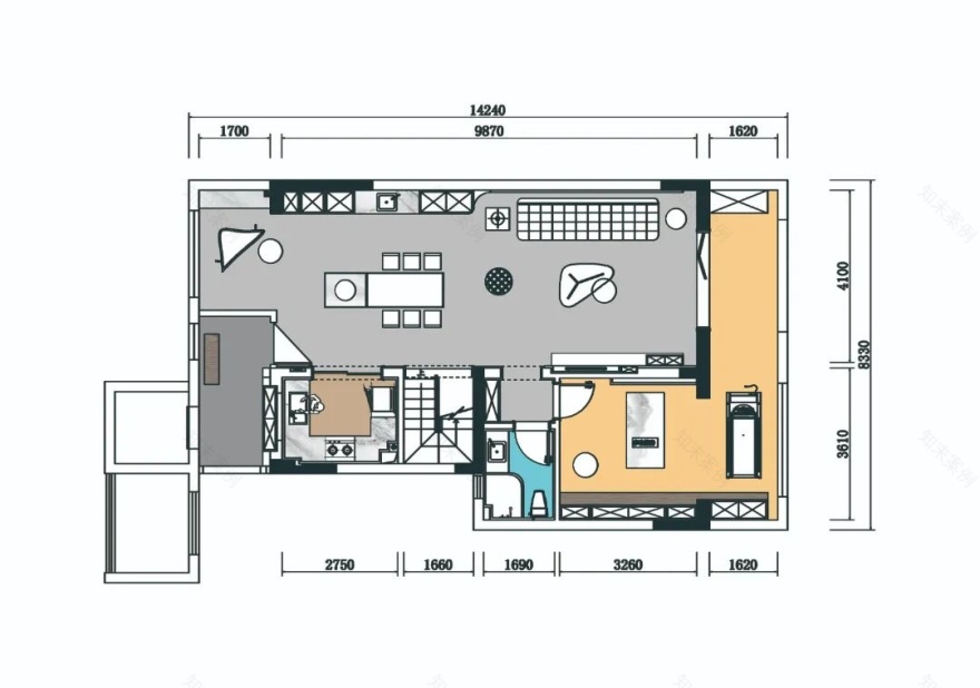
▼ 平面图
实景照片
以几何元素为基准,经过镂空、拼接、变形、穿插的处理,塑造出节奏得当,高低有序的视觉美。规整的架构携通透的采光,赋予空间鲜明的流动性与疏朗性。于亲身体验中,精准传达了材质与人之间的亲密关系,构建独属自我的悠然环境。
运用抒情的线条笔直勾勒出大廓形,于光影变幻之中奏响一支轻盈舞曲,从深浅色调之内明晰了功能的独立性与联结性,满足了居家静享或体面社交的多重需求。亮光与哑光交织着优雅情态,令纯粹的色彩窥得天然纹理的妙趣,泛起一阵阵温馨气氛。
分割线利落绘就立体造型,一边展现电视墙的高贵气质,一边萦绕木元素的自然气息,缓缓汇聚出层次细腻而张力蓬勃的空间美学。色调统一的沙发背景,静谧、内敛且柔和,衬托出一侧的暖融氛围,借由陈设的布置与划分,形成了动线科学的空间关系。
清灰的语言,或横向或纵向地演绎生活情趣,转角处的细节切割,倒影中的虚实韵律,皆是烘托暖光温度的形式。餐椅靠背的弧度调和了空间的冷硬感,触发了平衡艺术的辨识度与愉悦性,品酒享食,欢笑一堂。
墨色玻璃带着一层神秘面纱,既遮挡中厨,保持了公共区域的整体性美感,又提供了可开合的实用性,促使强烈的烟火气在高雅型格中寻找到恰当的归处。两旁点缀的挂画与绿植,悄然提升了审美品味,打造出清新又摩登的空间语境。
糅合自然肌理与拼装手法,达成了具体与抽象合二为一的观感趣致。有效运用大面积的色块碰撞出轻灵的气韵,在居住者练习瑜伽时,给予最高频的场域力量。在运动中净化灵魂,为无限未来赋能。
雅黑边框强化着不同形态的边界线,从内至外,将视野引向一抹碧绿,增添了空间的趣味性、层次性、呼吸感。异相区域之间,有了新生的互动。走进卧室,一切杂音逐渐消失,只存留淡雅诗意。于顶面进行凹凸塑形,尽情捕捉私密的想象力。
纯粹的色彩,透过体块的大与小,质感的柔与刚,比例的多与少,展开了简约精神的底层逻辑。运用竖纹若隐若现的魅力和眼前一亮的跳色,隔空回应客厅等区域的风采,让人从内敛的空间情绪之中,读取专属的温柔与浪漫。
不再需要违和张扬,不再需要标新立异,仅以低饱和颜色舒缓绷紧的大脑,安静地呵护我们的起居坐卧。看一本书,发一会呆,四季美景,纷繁交替,卧室内的种种成为倾听者,感知窗外的生机,记录生活的故事。
转折面将精致性与造型美沉淀于交汇处,释放温润的视觉效果与触摸感受,下深上浅的搭配巧思,跟随人体所需的舒适性,构建出修长且多功能的空间。卫生间延续着空间的流畅感,同时穿插朦胧隔断与推拉门,干湿分明。
客服
消息
收藏
下载
最近























