查看完整案例


收藏

下载
这是一个海景别墅的项目,具有天然的景观视野及大容积空间。在深入了解业主需求和期待后,以欧式风格为基调,结合与居住者契合的美学意识、艺术态度与人文精神,通过不同的色彩搭配、材质肌理、陈设排列,构筑出奢华、舒适的宜居“宫殿”。
草坪宽阔,林茂鸟栖,怡人的自然景致与恢宏的建筑立面一起拓宽了空间不同维度上的深度与温度。设计,邀请时间协同完成空间的艺术蜕变,在四季变换间,呈现出丰富的美景。
视线流转,还能惊喜地发现一处“小桥流水人家”,这是设计师的巧思,也是文化底蕴的种子。自然感,赋予了居住者舒适的五感体验,拉进了人与空间的距离。
客厅以美的“形”与“意”回应了空间概念,借空间典雅之美,展露居住者的内在追求。在这具有包容感和归属感的空间中,无数浪漫被定格。
纯白是包容的底色,立面的石材云纹千变万化,经过雕刻处理,谱写出一首磅礴乐章。地面的铺装融入深蓝菱格与波导线,在光晕顶面的映衬下,强化了空间架构。
雍容华贵的沙发、璀璨灵动的水晶吊灯、浪漫自然的灰蓝边柜,冷暖之间,更具张力。通过静谧、丰盈的视觉呈现,有序且温润地表达了场域精神,美好生活隐喻其中。
水晶灯自圆形吊顶垂落而下,借自身光感激发美食的诱人色泽,同时凭着优美曲线,与侧旁的植物花鸟壁画传递情愫,温馨又雅致,熠熠生辉。
不同材质之间,承载着不同的故事,它们相互对话,情感交织,洄游其中,产生共鸣,强调了设计的完整性与延续性。置身其中,可尽情感受自己的感受。
棕色系的地面纹样,通过几何形拼接手法,叙述出细水长流的韵味。顶面的波浪边菱纹造型与之有异曲同工之妙。
纯白雕花饰面、孔雀蓝绒面窗帘、古典通透的置物柜,不同的元素打破了餐厅的刻板印象,丰满、细腻、贴合地演绎着环环相扣的细腻感和复古美。
被半围合的用餐区域,依原架构转折特征而设,充分提高了空间利用率。甄选的餐椅自带刺绣饰面,以繁复生动之美与淡雅色调,恰到好处地衬托餐桌的华丽稳重感。
西厨动线自由,中心处的长条形岛台搭配明亮的玻璃窗、娇美的花束、精致的餐具,让在此烹饪与品鉴西餐的每个人,皆能体会到生活无限的快乐与喜悦。
“人生得意须尽欢,莫使金樽空对月”,休闲区和酒吧的结合,刚好为居住者提供了可以尽情放松欢乐的环境,让人感受到平凡生活的闪光瞬间。
深与浅、简与繁、凹与凸的对比,重塑了空间氛围,放大了对生活的细微感受,让人投入在浪漫与自由中。在此与亲友欢聚,品味酒香,亦是品味人生。
茶色玻璃以暖金门框为边,与上方雕刻的卷草纹及灰白系地面搭配,构成完美相框,加强了过道的纵深感。移步间,就像一层一层地打开潘多拉的盒子,满是意趣和典雅。
设计,让空间拥有了功能性、舒适性和精致的细节,也满足了居住者更多元的生活场景需求,随岁月流逝而愈发迷人。
设计中最持久的元素,不是金属,不是石材,而是艺术。艺术,模糊了具象化的界限,整体空间大气、优雅、舒适。
饱满的皮革沙发,运用咖色系的暖意,化解了大理石带来的冷峻感,配以中灰绒面单人沙发,让围合动势显现出强而有力的“凝聚”观感。
方圆之间,勾勒出了中餐厅的哲学主张,均匀排布的餐椅形态沉稳,线条流畅,质感精美。套环吊顶借如瀑布般的水晶吊灯丰富空间层次。
水墨印记,是不会解封的爱恋;晕染色调,是对人生的悠长感悟。让巍峨山峦为空间徐徐汇入格调,舒叙人间烟火,串联动人情感。
雅黑沙发在多彩靠垫的修饰下,营造出亲切又高级的视觉效果,云纹的细节,延续着高雅格调,会客时光在梦幻水晶灯的烘托下和谐有序地进行。
由上到下,由远及近,从大到小的各种物品都富有意蕴,从不同的角度联袂呈现整个空间的美学理念。艺术,看似无形,却创新地表达出了对美的感知。
装饰线条以自身的感知和表达,在墙面上预留出不同大小的“画框”。奶白色拥抱着浪漫粉,塑造了温馨优雅的睡眠环境。
艺术,在空间内预留了伏笔,创造了很多视觉记忆。宝蓝色绒帘拼接金色花边,表述了典雅的诗语,让空间有了艺术品的意味。
楼梯和电梯用截然不同的方式打开空间的对话,合理的结构和奢华的调性,让拾级、驻足与抵达都成为一种期待,使空间的通达性得到优化。
大理石舒展的纹理和自然的气息,在一体式镜面的帮助下迸发出更抽象的意蕴。静谧、洁净、优雅且私属的沐浴空间,能让人真正洗去疲惫。
泳池选用彩色玻璃作为特定语言,结合自然光与灯光,塑造出不断变动的流动性空间,如梦如幻。几何线条不断汇聚、穿插、延展,凸显空间的韵律。
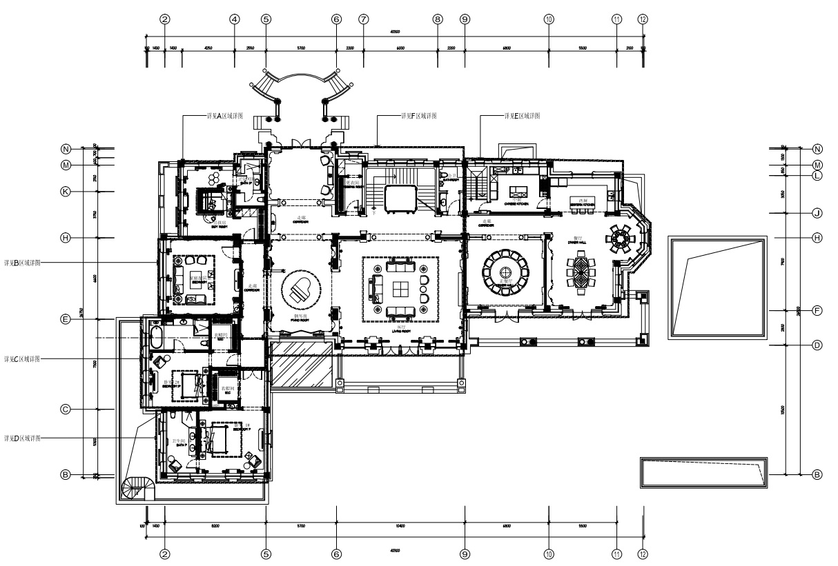
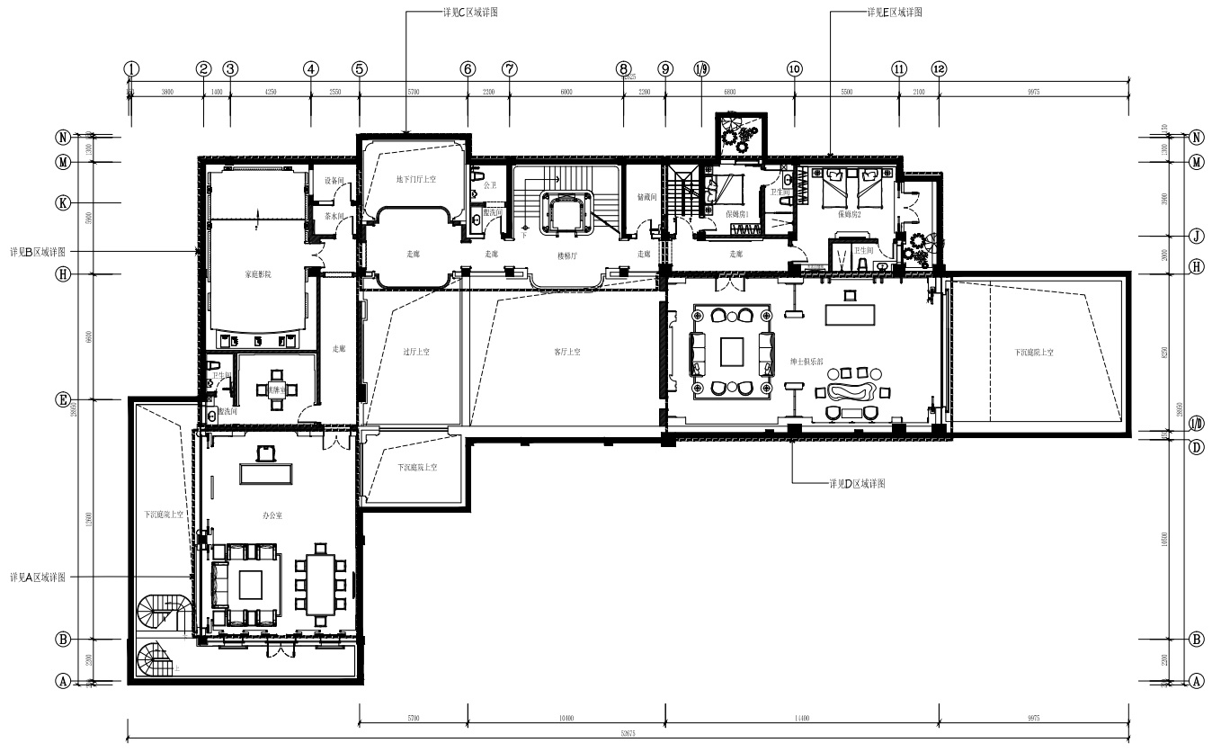
平面图
1F
2F
阁楼
-1F
-2F
项目名称:青岛君汇别墅
项目面积:4000m2
室内设计:苏州凹凸设计
软装设计:乾园空间美学
室内施工:苏州凹凸装饰
文案策划:修合文化
摄影机构:DC空间摄影
客服
消息
收藏
下载
最近





































































