知末
知末
创作上传
VIP
收藏下载
登录 | 注册有礼
知末案例   /   家装空间   /   平层

郝泽伟工作室自宅

2021/12/28 11:14:00
查看完整案例
微信扫一扫
收藏
下载
这是一个工作室的自宅,3年独立设计师后,成立了自己的工作室。
郝泽伟工作室自宅-1
郝泽伟工作室自宅-2
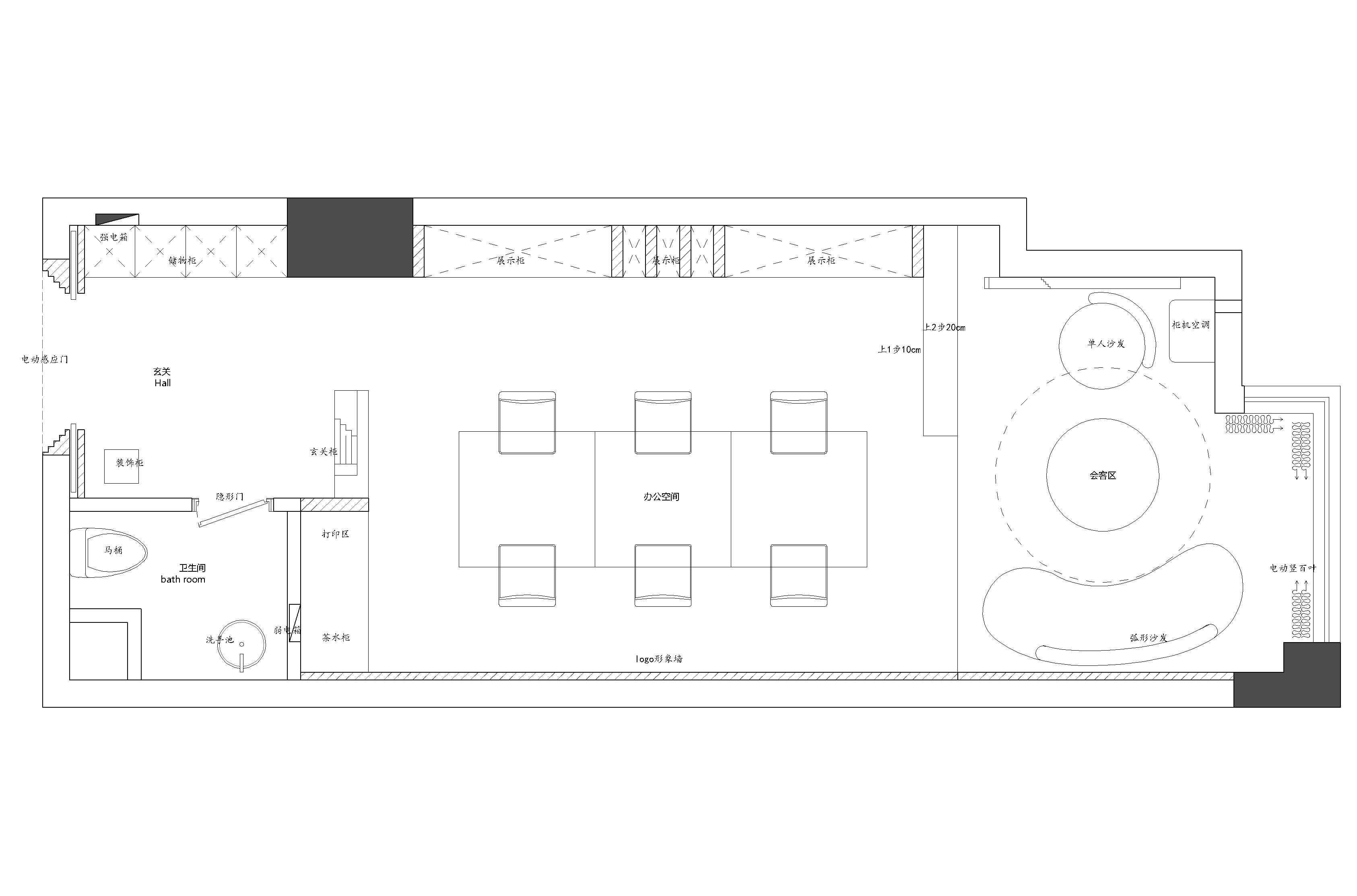
《平面图》
玄关
郝泽伟工作室自宅-5
郝泽伟工作室自宅-6
郝泽伟工作室自宅-7
办公区
郝泽伟工作室自宅-9
郝泽伟工作室自宅-10
郝泽伟工作室自宅-11
郝泽伟工作室自宅-12
郝泽伟工作室自宅-13
郝泽伟工作室自宅-14
会客洽谈区
郝泽伟工作室自宅-16
郝泽伟工作室自宅-17
郝泽伟工作室自宅-18
郝泽伟工作室自宅-19
洗手间
郝泽伟工作室自宅-21
步一1 发表于 2021-12-29 06:51
南京喵熊网络科技有限公司 苏ICP备18050492号-4知末 © 2018—2020 . All photos and trademark graphics are copyrighted by their owners.增值电信业务经营许可证(ICP)苏B2-20201444苏公网安备 32011302321234号
客服
消息
收藏
下载
最近