查看完整案例

收藏

下载

翻译
Building rehabilitation - San José, Costa Rica
IDEA
Generate habitable spaces that encourage coexistence and interaction among residents, promoting a communal and collaborative lifestyle, where there is always room and space to establish meaningful connections.
The intervention site was chosen for its significant strengths and opportunities. It experiences a high pedestrian flow and attracts a diverse range of users with varying social characteristics.
Its location boasts proximity to major national road networks, green spaces, urban squares, and a wide array of businesses of different types. Furthermore, it's just 100 meters away from the largest pedestrian pathway in the country.
This property holds untapped urban potential, starting with its placement in a heritage area where a combination of urban interventions and building revitalizations could trigger exponential activation. This environment could foster intergenerational and intercultural exchange.
3D Visualizations
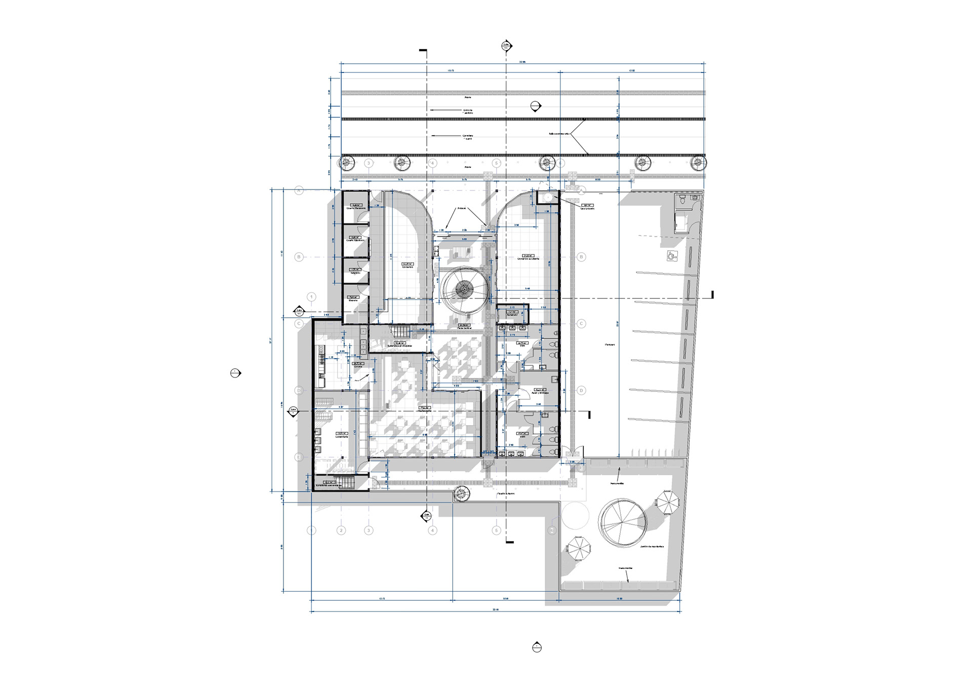
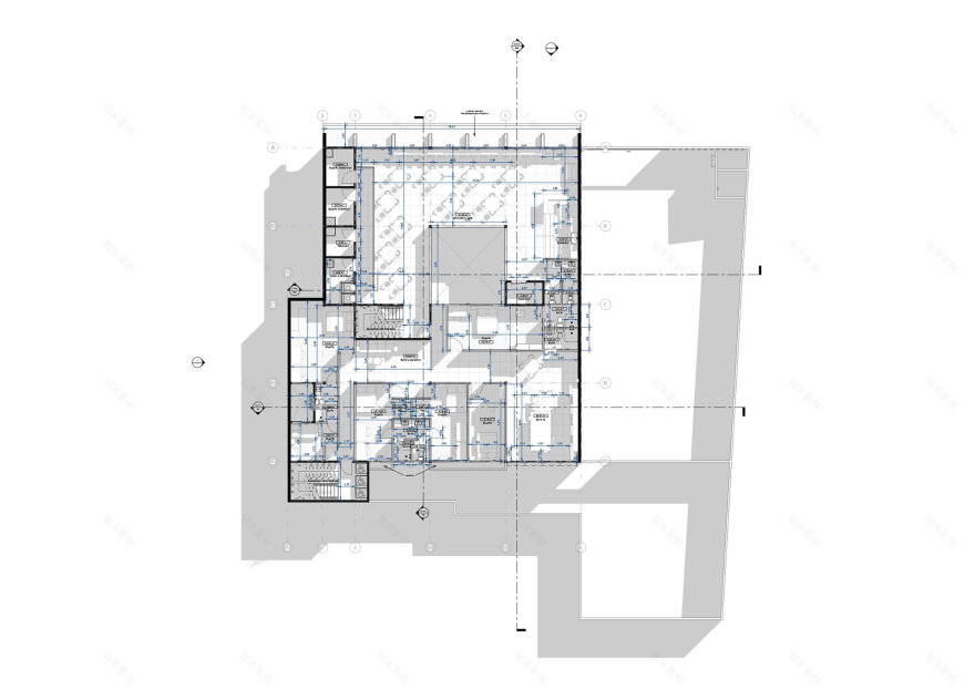
ARCHITECTURAL PLANS
Click for VIDEO
客服
消息
收藏
下载
最近

















