查看完整案例

收藏

下载
建筑师 Stephenson Design Collective
地址 Bellingham, 美国
类别 可持续发展
施工方 Indigo Enterprises NW
工程师 Malsam Tsang Structural Engineering
项目年份 2017
摄影师 Andrew Pogue
厂家 Kohler, Zola Windows, Victoria & Albert, Thermador
相比建筑,本项目更侧重对环境与体验的研究,住宅本身则是次要的。无论住宅安置在哪里,眺望基地的西边,都能将普吉特湾(PugetSound)、圣胡安群岛(San Juan Islands)和奥林匹克山脉(Olympic Mountain)一览无余。因此在大兴土木时,为了维护当地的生态环境,我们必须将对环境的干扰降到最小。一旦未能考虑周到,我们很可能会破坏基地的环境,这是难以回避的隐患。
永远不要错过一个好故事 - 订阅我们的每日时事通讯。
我们最初基地调研的内容只是在美酒、爱犬和音乐的陪伴中静静感受基地从日暮进入夜晚的过程。对这三种体验的思考贯穿了我们从设计、施工,直到居住的全过程。客户希望我在开始设计之前,先看看电影《Minka》,再听马克·科恩(Marc Cohen)的歌曲《Olanna》。他希望他的家也能和这些作品一样激发出相同的情感。此后我们继续一边推敲设计,一边讨论体验与互动。我们完全不考虑限定一个“理想的”的面积或者大小,只关注在这栋住宅里应该出现什么,以及如何发生。
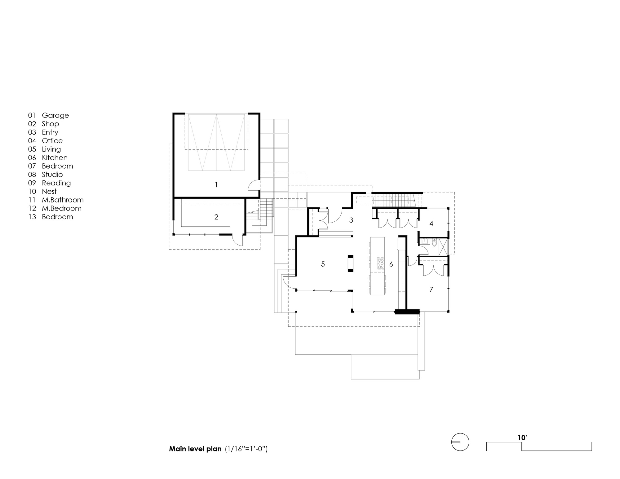
业主的音乐工作室独立于住宅,提供独立的音乐体验,而不会打扰到家庭起居。客人也可以享受自己的空间。业主还要求在车库的西侧建一个小型铁匠工坊,面向窗外的景色。作为一个受过专业训练的铁匠,这个工坊将成为他的避世之所,供他在没有功利需求的前提下尽情锻造。
住宅的入口立面没有暴露太多室内景观,而是选用钢铁和黑雪松木自然地周围景观融为一体,窗户也仅仅在为了满足采光和连接周边环境的前提下设置。工作室和主屋是分离的(虽然在通道的部分有所重叠),因此当人们踏入住宅,两者之间的空间就会营造一种取景框般的视觉体验。整栋住宅在密林如幽影般低调。
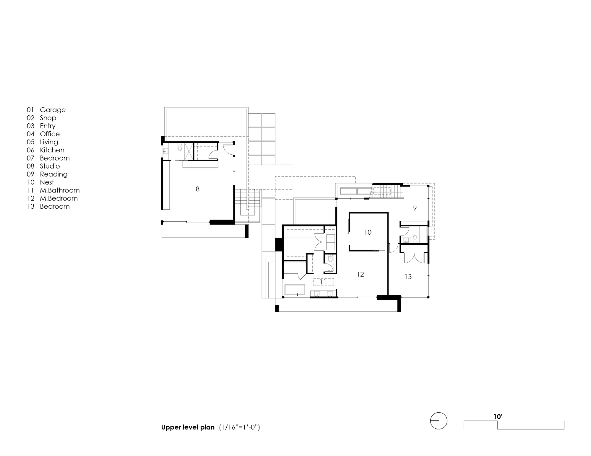
业主尤为看重可持续性,不仅在建设的操作层面,更在住宅的使用寿命层面。房子是由混凝土地板的热辐射供暖的,而在炎炎夏夜,这些地板也充当了导热体,用来收集空气中的丝丝凉气。出于性能的考量,我们选择了Zola窗户(美国欧式节能密闭窗品牌),并安装在利于自然光和交叉通风位置。我们知道房子会很暖和,于是我们在主卧室后面创造了一个“巢穴”,自身可以完全幽闭,在夏天是一个避暑的好去处。而为了保障冬季供暖,我们通过壁炉把暖气输送到整个家里,以便即时取暖。
客服
消息
收藏
下载
最近































