查看完整案例

收藏

下载
转:ArchDaily
设计公司:FORM/Kouichi Kimura Architects
位置:日本
类型:建筑
材料:木材 瓷砖 涂料 玻璃
标签:Interior design Shiga Small and Delicate Residence 室内设计 小而美的住宅 滋贺
分类:住宅 住宅建筑
项目场地位于一个划分明显的住宅区,距离繁忙的主路有一些距离。业主希望拥有一个能够开办私人瑜伽课的舒适住所,为了满足这一要求,建筑师对室内外空间进行了连接,使起居空间得以从视觉和感官上延伸至户外。
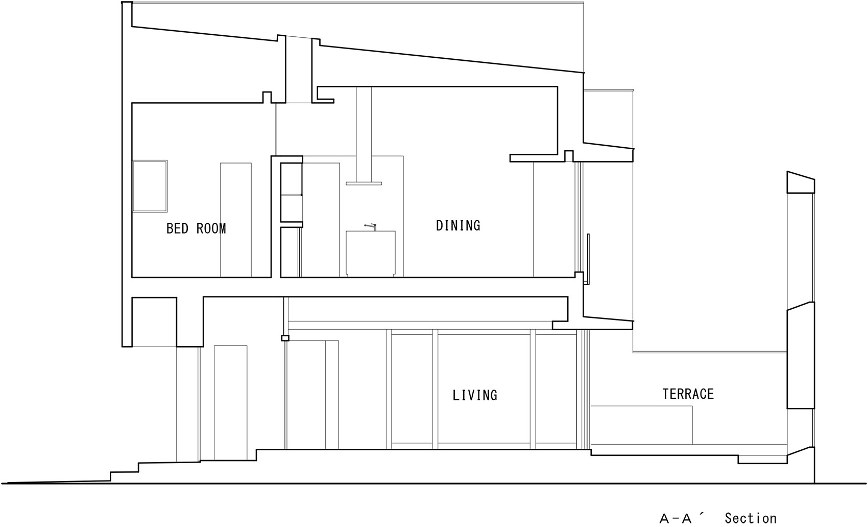
建筑拥有一个对称的体量,当入口大门开启时,起居室将与环绕在其周围的庭院形成一个整体。起居室同时也充当了瑜伽教室,拥有两面滑动玻璃门。在门完全敞开的时候,庭院的风景将被充分地引入室内。与起居室相连的露台也可以用作瑜伽空间,水池中反射的光线和清新的风将感官激活,为使用者带来全身心的放松。
露台的墙壁与一个塔形结构相连接,形成整个房子的标志性特征。雕塑般的形体中嵌入了磨砂玻璃,使进入房间的光线变得更加柔和。
庭院的围墙在阻挡外界视线的同时与建筑本身形成统一的关系,带来半户外的内部空间。以灰泥涂抹的台面和长椅拓展了外部的起居空间,并使其特征得到进一步突显。
在建筑的二层,各个房间围绕着中间的餐厅分布。不同的空间通过天花板高度的差异被划分出来。从有色天窗透入的自然光线带来令人愉悦的感受。餐厅设有宽阔的落地窗和长长的屋檐,从这里可以俯瞰到庭院中醒目的“高塔”——它将首层与上层空间的情景联系起来,为住宅赋予了视觉上的连贯性。
客服
消息
收藏
下载
最近






















