查看完整案例

收藏

下载
乘风破浪的人生旅途,总有风风雨雨,但家是我们唯一不变的依靠。屋主步入中年,进入人生稳重的阶段,期望在这个家,让家人、朋友可以自在欢聚。我们将屋主的人生故事融入空间,打造充满深度的特色家居。
突破旧有格局,延伸视觉与材质穿透,简约内敛的北欧精神融入其中。生活中该有的不多,即是与家人共享精致的时光。家的设计、为了让家人更贴近彼此,当信仰与生活完美结合,沉静而温暖的家应运而生....
餐桌的灯饰,依循简敛的线条,细节处将信仰融入,在空间中划出了鲜明的线条轮廓。将男主人的内敛虔诚,和俐落的个性彰显。另外搭配铜色金属光泽的镀钛灯罩,跳脱的色彩安排与橘色的皮质订制沙发相互衬托,一齐点亮了整个起居空间。
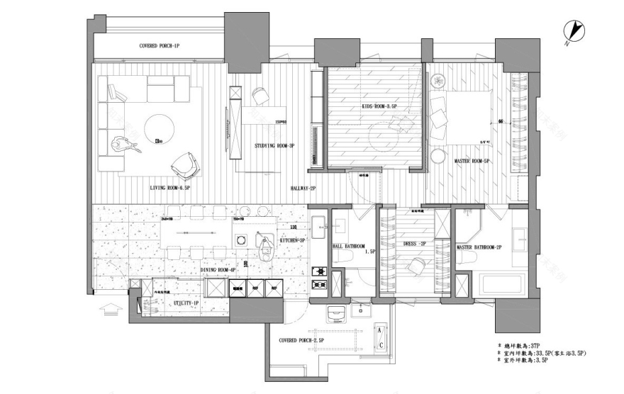
将原本的四房两厅格局大胆打破,先破除封闭的厨房设计,让厨房,中岛及餐厅区域连为一体,格局放大到与客厅一样的比例。让重新设计后的公区域变成了可以容纳十多人的聚会空间,也更贴近了屋主夫妻的日常需求。
客厅、餐厨区、书房;彼此连结但空间保有独立性,延伸视觉感受,放大空间;当女主人下厨时;男主人在书房工作时;或是孩子们在客厅游戏时;能无所局限的互动与对话。
能够让屋主内心安定的元素,维尼(Winne the Pooh) 是屋主最看重的收藏,听着屋主诉说着关于与pooh的点点滴滴,因而启发了我们书房的墙面设计,让书墙装载屋主满满的情感回忆。
以温暖木质包裹墙面,流泄而下的灯光流淌,又带点北欧夏季木屋的厚实温暖氛围,一踏入,工作疲惫的身心便逐渐放松,心灵回归平静。专属于睡前的沉思空间,与环境中的自然元素一同生息。
根据纽约住房和空置率的调查显示,三分之二的家庭让自己18岁以下的孩子共用一个房间。
因为孩子们年纪尚幼,在同一个空间里互相陪伴成长,更能激发他们的创意和构筑良好的情感基础。除外,我们特地建了让孩子能发挥创造力的黑板空间。采用创新工法,将藏于墙面的区隔门,化作一道涂鸦墙与端景墙面
长大前的同住时光,时常会在多年后时常回忆起,让孩子们儿时和手足在同一个房间里嬉闹的场景,堆叠成最美好的记忆。
HOME DATA
地点: 台北市中山区
屋况: 新成屋
坪数: 37坪
格局: 四房二厅
成员: 夫妻/两小
主要建材: 特殊漆、玻璃、大理石、镀钛、系统柜、铁件、超耐磨木地板
客服
消息
收藏
下载
最近













