查看完整案例


收藏

下载
▼庭院景色,Views of the courtyard ©Yousuke Harigane
On the axis of the lounge, a courtyard planted with cherry trees, moss phlox, maple trees, and white oak allows for the observation of seasonal changes through large glass panels. Minimalist concrete benches are installed as if floating.
▼极简的混凝土平台,Minimalist concrete benches ©Yousuke Harigane
▼混凝土平台夜景,Night view of the concrete beaches ©Yousuke Harigane
独特的水景使人联想起流入本名河的支流,并向该地区开放。夜间,室内光线外溢到阳台的水平条板上,将整个建筑转化为一个大型的“灯笼”。美丽的夜景为历史街区增添了一道风景线,让人们回家时获得安全感。
▼大尺度的“灯笼”,Giant “lantern” ©Yousuke Harigane
▼夜间庭院,Night view of the courtyard ©Yousuke Harigane
The approach features a waterscape reminiscent of a tributary flowing into the Honmyo River, opening up to the region. At night, the light leaking from the residences illuminates the white horizontal slabs of the balcony, transforming the entire building into a “giant lantern.” The beautiful nightscape contributes to the scenic view of the historic district and also enhances the sense of security when returning home.
▼总平面图,Master plan ©SAKO Architects
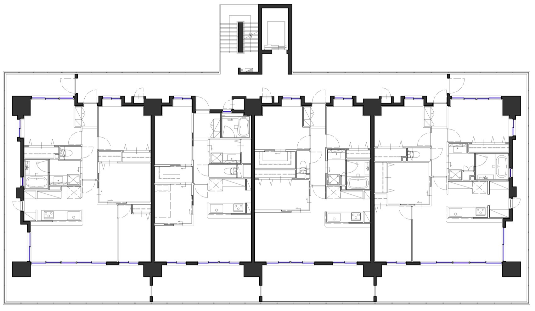
▼平面图,Plan ©SAKO Architects
该公寓面向本名(Honmyo)河而建,是一流的湖畔滨水空间。河对岸是伊佐谷(lsahaya)公园,这里拥有重要的文化遗产Megane桥。场地毗邻1605年建成的Keigan寺,彰显着该地区丰富的历史背景。高耸的公寓拥有全景视野,也意味着该建筑在河对岸的历史街区景观中十分重要。因此,外形设计是一个重要的挑战。
▼建筑概览,Overview of the building ©Yousuke Harigane
▼水平轮廓,Horizontal elements ©Yousuke Harigane
This condominium is set to be constructed facing the Honmyo River, a first-class river and waterside space. Across the river lies lsahaya Park, home to the Megane Bridge, an important cultural property. Nearby, the Keigan Temple, established in 1605, indicates the region’s rich historical context. The panoramic views from the high-rise condominium mean it also has a significant presence in the landscape from the historic district on the opposite bank. Thus, the exterior design was an important challenge.
▼建筑夜景,Night views ©Yousuke Harigane
该项目旨在“诠释历史背景同时促进新城高质量空间环境”。特别是建筑师从附近的Keigan寺庙中提取建筑元素,以现代手法重新诠释。最引人注目的就是“围栏”。在黑色木表皮之间,水平放置的白色围栏赋予建筑紧凑的外形。悬挑的锥形木板包围着建筑,形成阳台与走廊。除了木板和围栏以外,建筑其余均为黑色,以白色水平轮廓勾勒出独特的外形。建筑师增加了顶层的围栏角度,模拟“向上弯曲的屋檐”。
The goal was to “interpret the historical context and contribute to the formation of a high-quality context.” Specifically, elements of temple architecture were extracted with reference to the nearby Keigan Temple and reinterpreted using contemporary methods. Attention was first paid to the “railing.” Amidst the blackened wood surface, the horizontal members of the railing, painted white, had a tightening effect on the overall appearance. Cantilevered slabs with tapers were wrapped around the building, forming balconies and corridors. By making these slabs and handrails “white” and everything else”black,” a distinctive appearance was achieved with prominent white horizontal lines. On the top floor, the angle of the parapet was increased to mimic the “eaves curving upwards.”
▼夜景特写,Close-up of the night view ©Yousuke Harigane
入口大厅采用带有水平肋条的裸露混凝土墙,增添光影效果的同时营造出一种类似博物馆的宁静与质感氛围。休息室由21个鸟居式门框组成,内白外黑,增强纵深感的同时使人的目光集中在远处Megane桥的照片上。
▼大厅,The hall ©Yousuke Harigane
▼休息室,Lounge ©Yousuke Harigane
▼粗糙的墙面,Exposed concrete wall ©Yousuke Harigane
The entrance hall is made up of exposed concrete walls with horizontal ribs, adding shadows that create a museum-like, tranquil, and high-quality atmosphere. The lounge is composed of 21 torii-like gate frames, with the color transitioning gradually from white at the back to black at the front, enhancing depth and creating an effect as if being drawn into the photo of the Megane Bridge placed at the back.
▼休息室特写,Close-up of the lounge ©Yousuke Harigane
▼渐变色,Gradually changing colors ©Yousuke Harigane
庭院位于休息室的轴线上,其中种有樱桃树、刺蔷薇植物、枫树以及白橡木,通过大面玻璃窗能够欣赏到四季的变化。极简的混凝土平台仿佛悬浮于空中。
客服
消息
收藏
下载
最近




















