查看完整案例

收藏

下载
本帖最后由 力设计 于 2020-9-4 15:56 编辑
关于屋况:业主是一对年轻夫妻,两个小孩子,父母同住帮忙照看,相对这个户型和需求,设计师除了美学的角度更要考量家庭人员入住后的实际生活状态。
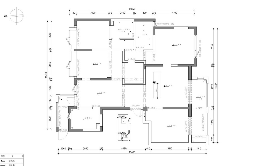
原始结构空间动线比较凌乱,浪费面积比较多,入户的玄关设置也会有点局促,不是满足三代人同住的理想空间。
设计师会拿出怎样的解决方案呢~
关于规划:设计师在一番拆改之后,客餐厅视觉空间扩大,并且变得整齐开敞,可以满足孩子们在室内奔走玩闹;休息区过道调整之后,去往各个房间的动线也清晰起来,互不干扰;共用衣帽间大大增加了家庭的储物功能,同时衣帽间位置的调整,使入户也变得通透爽朗。
全空间以灰白色调为主,电视墙隐形柜门的格栅线条,满足功能同时丰富了空间的层次感;沙发背后灰纹路的大理石装饰和金属板的运用,营造出一种有机的现代奢华感,用线条勾勒出一个干净简单的画面。
灰玻酒柜门和长虹玻璃的墙饰,把餐厅包裹在静谧的氛围中,彰显沉稳高雅;餐桌和吧台的并联,灵活自由,既补充了西厨的功能,又能在制作美食的同时与家人互动畅谈,享受生活给予的每一份美味。
房间以实用优化为主,定制的衣帽柜与电视柜写字台连接,提高灵活实用性,增加面积的利用率,伴着窗外的光线更凸显了生活的安静美好。
落地窗户把室外四季的景色引进卧室,自然的动态成为空间艺术装饰的一部分。
项目地址 / 杭州 · 私宅
Location / Hangzhou· House
毕业时间 / 2020 . 08
Design Time / August. 2020
设计团队 / 力设计
Design Team / Li Design
客服
消息
收藏
下载
最近





























