查看完整案例

收藏

下载
“若一建筑物比喻成盒子,开启它的门窗,更将绿意和天光带入地面之下的盒內,让它呼吸,是我们设计此空间的浪漫。”
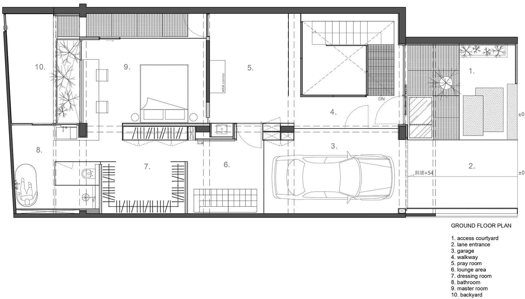
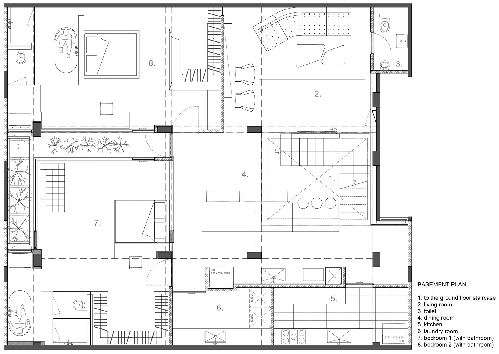
本案位于士东路近四十年的老屋,是左右邻房、前后都有采光的典型公寓。屋主有意将闲置的地下室,通过设计打造成一家四口的新居空间。但原先空间的机能存在若干问题。
原本,一楼地面与街道之间65公分高差是地下室的通风窗,但却因前院被用作停车,后院用作晾衣空间,地下室的通风窗被遮蔽,未能发挥作用。也因此,阴暗的地下室只能被当作储藏空间使用。若未来地下室被纳入日常生活中使用,首先必须克服基础的环境条件。因而设计师决定牺牲一楼靠近前院及后院处的楼板面积,打通成天井。这样一来,地下室採光面将扩大,同时增加了通风量,能大幅改善地下室的环境不问题。地下室的旧有概念将消失,整体空间上将转变为楼上与楼下的关系。
住宅一层与沿街面存在高差,形成地下室通风窗
在一层靠近前院处开设天井
经过改造后,项目近街道的前半区依次设为停车空间,通往楼下的阶梯与天井;地下层的前半区则成为家人主要的交流空间,延伸出客厅,餐厅及厨房。当业主与家人在此共度美好时光时,亦能享受到前院的枫树与阳光。
地下室前半区为活动空间
项目的后半区则被设置为私人空间,分别设有一楼的主卧及地下层的男孩与女孩房。除了前院以外,为了让私人空间中也能享受到沁人心脾的绿意,设计师将易保养的山苦楝种植于地下层的后侧。树梢透过一层后方的开口延伸至主卧书桌桌面的高度。同时,地下层种植的肾蕨,龟背竹,蔓绿绒也自L型的天井蔓延至中央,成为男、女孩房之间天然的屏障。白天,植物营造出清新的环境。夜晚,在光效的映衬下,层层叠叠的叶片投下的光影将成为空间的视觉主角。
天井中的植物成为两间卧室之间天然的屏障
室内的重新布局,也为空间引入了更多的阳光与空气。人、植物与房子成为了共生共荣的整体。随着植物的四季变化,业主也能体会到潜藏在生活中的乐趣。
平面图
客服
消息
收藏
下载
最近













































