查看完整案例

收藏

下载
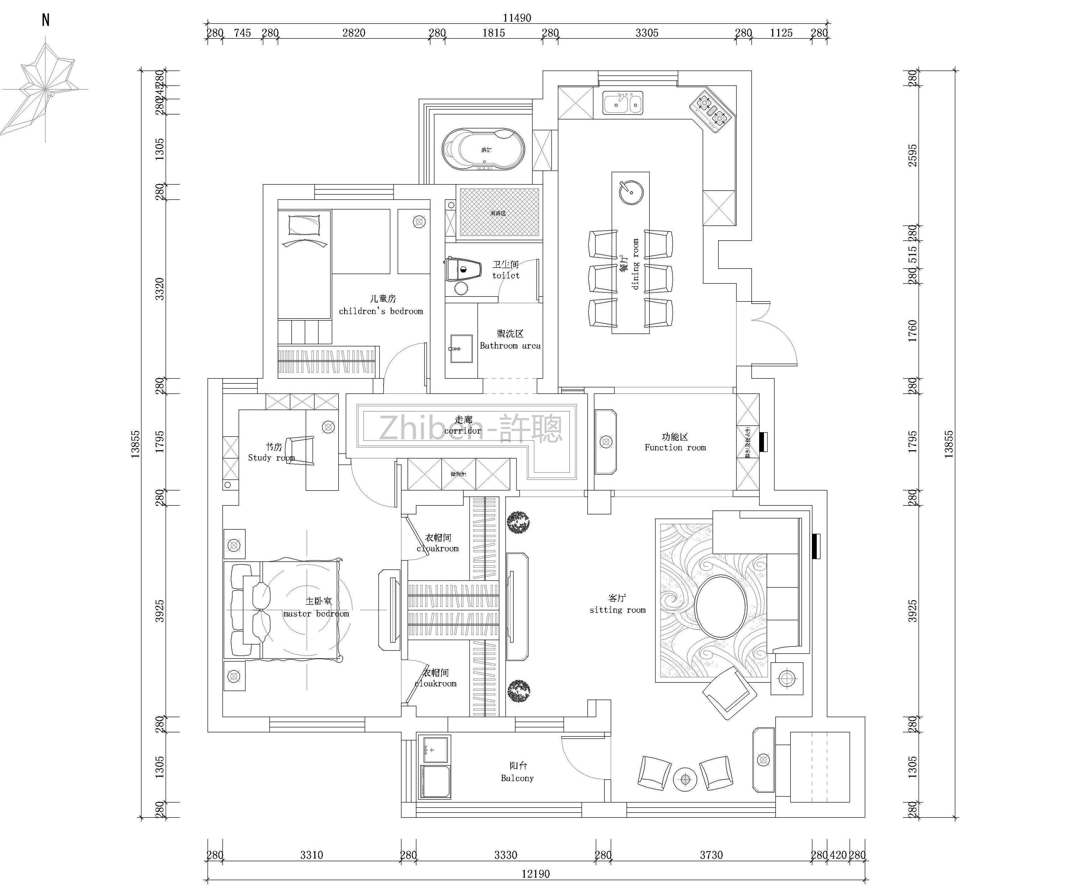
【项目名称】:湖东花苑
【项目地址】
:江苏-张家港市
【项目面积】:
136
平米
【设计师】:许聪
【软装机构】:SDC
本案属于本地典型的回迁房小区,房型结构和基本条件几乎家家一样,业主装修不愿雷同于小区内的其他家装修,思想挣扎N次,也接触过N家公司,都未能如愿,整个装修日程一拖再拖... 就想看看小区内其他家装修结束后的效果,一年多过去,诸多邻居装修结束还是千篇一律.... 就在小两口妥协之际,也准备跟大家一样随着回迁房不可更改的装修命运随波逐流了, 也就差那么一点,然后故事就发生了... (挺好玩,哈哈...)
客服
消息
收藏
下载
最近


















