知末
知末
创作上传
VIP
收藏下载
登录 | 注册有礼

嘉品新作-花样年花郡150平美式风

2017/12/08 15:05:00
查看完整案例
微信扫一扫
收藏
下载
太阳悄然沉入地平线之后,主人也会悠悠然返回此处,将它身上的自然、经典还有斑驳老旧的印记,似乎能让时光倒流,让生活慢下来。
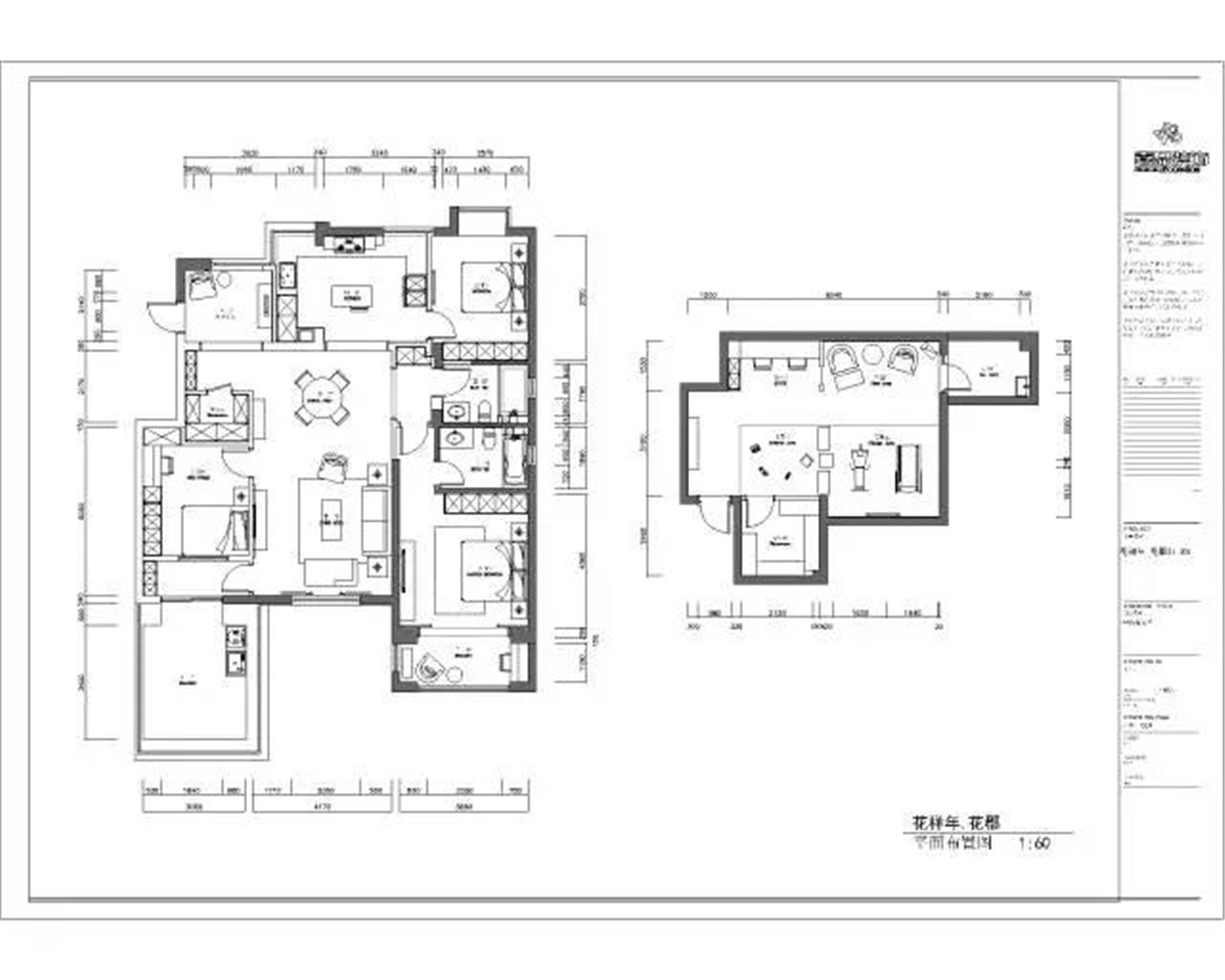
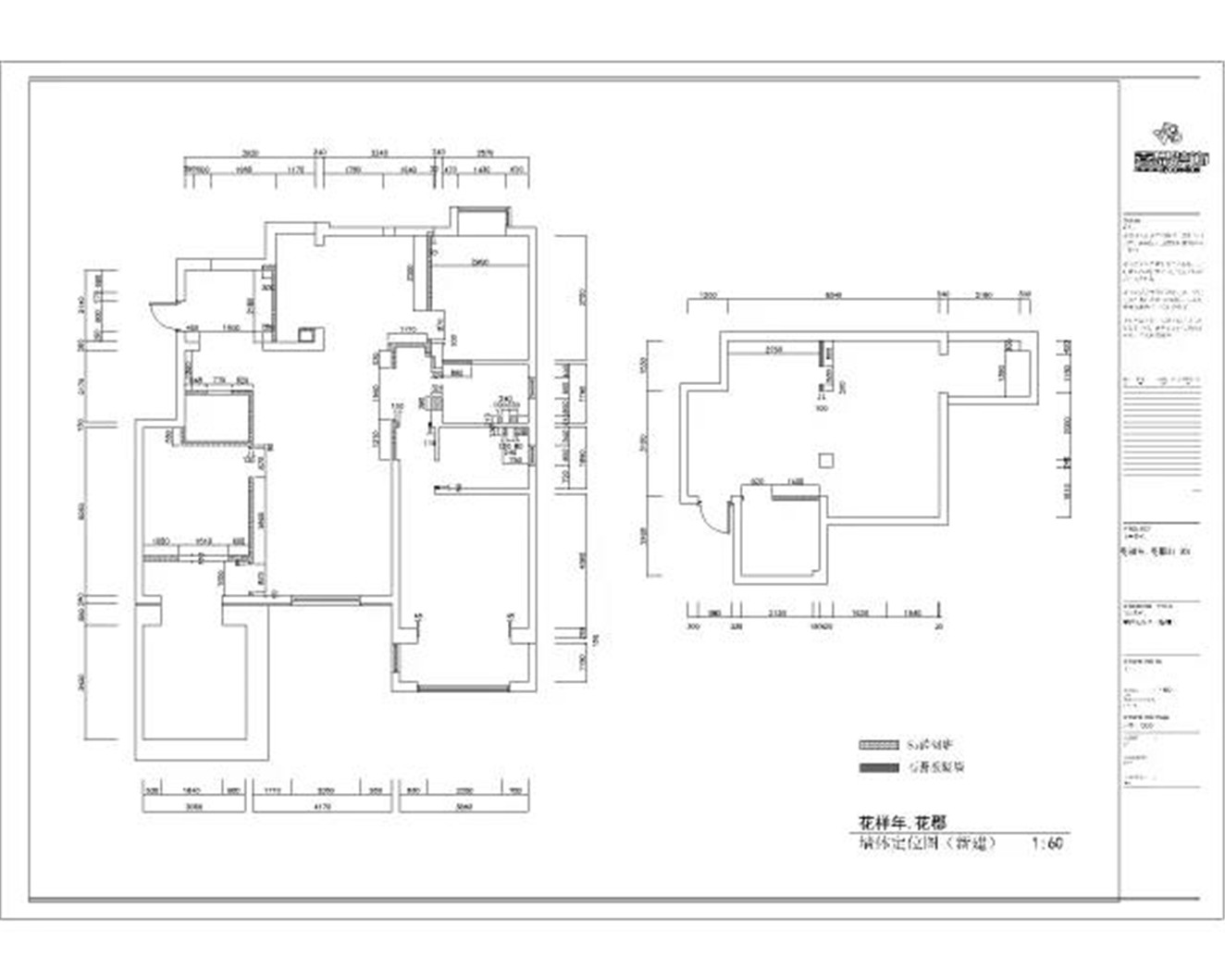
【装修风格】:美式
【项目地址】:花样年华郡
【项目面积】:150平
【设计师】:王伊明
嘉品新作-花样年花郡150平美式风-5
嘉品新作-花样年花郡150平美式风-6
嘉品新作-花样年花郡150平美式风-7
嘉品新作-花样年花郡150平美式风-8
嘉品新作-花样年花郡150平美式风-9
嘉品新作-花样年花郡150平美式风-10
嘉品新作-花样年花郡150平美式风-11
嘉品新作-花样年花郡150平美式风-12
嘉品新作-花样年花郡150平美式风-13
嘉品新作-花样年花郡150平美式风-14
嘉品新作-花样年花郡150平美式风-15
嘉品新作-花样年花郡150平美式风-16
嘉品新作-花样年花郡150平美式风-17
嘉品新作-花样年花郡150平美式风-18
嘉品新作-花样年花郡150平美式风-19
嘉品新作-花样年花郡150平美式风-20
嘉品新作-花样年花郡150平美式风-21
嘉品新作-花样年花郡150平美式风-22
嘉品新作-花样年花郡150平美式风-23
嘉品新作-花样年花郡150平美式风-24
嘉品新作-花样年花郡150平美式风-25
嘉品新作-花样年花郡150平美式风-26
嘉品新作-花样年花郡150平美式风-27
嘉品新作-花样年花郡150平美式风-28
Add:锡沪路家艺中心4号楼4楼
Tel:0510-82326766
VIP:15152214633
南京喵熊网络科技有限公司 苏ICP备18050492号-4知末 © 2018—2020 . All photos and trademark graphics are copyrighted by their owners.增值电信业务经营许可证(ICP)苏B2-20201444苏公网安备 32011302321234号
客服
消息
收藏
下载
最近