查看完整案例

收藏

下载
〔 项 目 简 介 〕
空间类型:平层
建筑投影面积:77平
坐落地区:武汉
空间成员:3人
空间形式:电梯大楼
空间格局:2室2厅1厨1卫1阳台
设计公司:有宅设计
施工:有宅设计
摄影:刘魁玖
〔 设 计 说 明 〕
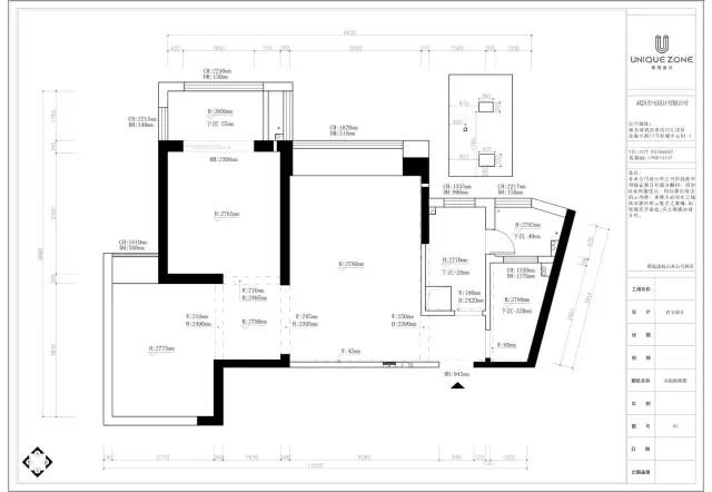
本案从原始框架来看,存在的问题有:卫生间狭小,厨房没有放置冰箱的地方,生活阳台尺寸尴尬不方便使用等。屋主需要有主卧和小孩房两间房,需要大量的储物空间,喜欢简单的线条及色彩。
首先我们将厨房和卫生间的格局进行了调整,原来的生活阳台被扩充到了厨房内,厨房门开启方向改到客厅。卫生间借用部分厨房空间,得到一个淋浴区面积。就餐区旁边增加一个小小的储物间,以放置生活大件或悬挂换季服装等。
客厅飘窗推掉,整体重心往窗边移,于是走道区纳入了收纳柜(餐边柜)和就餐区,让公共走道的面积也利用了起来。客厅使用大面积浅色搭配一面蓝色墙体,突出家具的色彩和质感,蓝色也让小小的空间显得宁静不焦躁。餐边柜做了适量空格,置放装饰摆件的同时也让空间有层次。厨房门使用黑板漆的滑门,让小朋友随意涂鸦带来活泼氛围。小孩房用了柔和的奶茶色做主体色,灰色和粉色搭配柔和又清新,床头的书桌延伸到飘窗上,增加书桌使用长度。
厨房门打开的效果
客服
消息
收藏
下载
最近

























