查看完整案例

收藏

下载
x项目名称:合肥中海央墅
项目类型:中海地产样板间
项目时间:2017年10月
项目面积:386平方米
设计:邬超伦 黄龙泽 裴桂婷
梭罗说过:“不但要有精美的思想,而且要按照智慧的指示,过着一种简单,独立,大度,信任的生活”。The space design 为业主设计的初衷是不仅为居住者提供一个栖身之所,也为居住者提供一种独特的精神氛围,他可以在这里找到属于自己的宁静。
中国山水画是中国人情思中最为厚重的沉淀,深沉的文化底蕴与当代主流思想碰撞,传承与创新显得尤为重要。以山为德、水为性的内在修为意识,远离喧嚣,归隐山水的精神情节油然而生,此案设计借鉴古代山水画的理念“大胆留白,小心收拾”为思想实质。在恬淡虚无的笔墨韵律中,展示自然与生活的内在节奏,即物与事之间的豁然开悟之境。留白,是一种情结,更是当代设计中纯粹精神的完美演绎。
|物语东方|
借物与物 物与空间 物与人
无声的对话来展现东方美学精神
△一层客厅,水墨、工笔画出现在各个空间里,与充满设计感的灯具、桌几、配饰浑然一体,诉说着大繁至简的共性。
.△一层餐厅,空间设计其实就是一种生活设计——生活中每个场景模式、行为方式,都是设计的重要依据,以“人”为出发点,创造出适合人居的空间。
|空间游走|
设计师以睿智精确的创造精神和冲破传统的力量,融入当代菁英阶层审美趣味、自身的个性和艺术选择之中,成功地实现了美的现代中式意境的实现。
△负一层休息区
△负一层茶室,一个好的设计,大到空间小到物件的细节,都是一种文化的积淀。通过有形之物来把握无形的精神,体现空间空灵与寂静,荡涤人心。 将高级灰贯穿整个空间,剔除杂琐碎的装饰。
|定制生活|
△二层家庭室。
△二层老人房
△二层小孩房
|私享空间|
所做的一切设计都是围绕“如何打造一个简单宁静的整体环境,让顾客在家中感受身心愉悦,放松、沉淀、寻找自我”而展开。它以更广义的东方美学·现代风格呈现在大家眼前,不受具体地域限制,给人感觉是多元、安静、充满包容性。
|静心之所|
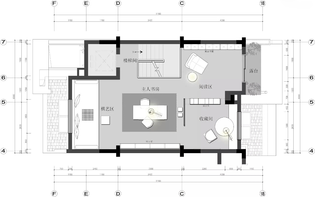
位于四层独立空间的书房属于主人专属领地,空间布置上采用通达的布局,整体色调风格保持和谐统一。巧妙得引入自然天光进行室内照明补充,使得空间显得更为高挑和空旷。
|平面布置|
△负1层布置图
johncn 发表于 2017-11-16 09:07
客服
消息
收藏
下载
最近































