查看完整案例

收藏

下载
“嵯峨馆”所呈现的,是建筑师捏造的幻境。我们并未脱离这座聒噪的城市,甚至没有超越这座四合院厢房的空间边界。但我们如我们的祖先一样,尝试在这方局促的空间中,寻找重新解释它的方法。—— 神奇建筑研究室
▼邻居看到这幕场景时,也许会怀疑他过往的旧城生活经验
不得不说,北京是座建筑类型匮乏的城市,从现在的行列式住宅到被认为代表传统特色的四合院,都在用有限的建筑类型描绘庞大的城市空间。因此,北京居民想出了许多拓展建筑空间体验的方法,比如在院子里营造庭园,在空地搭建罩棚,或用木装修细密地分隔房间。即使这些都没法实现,也要在墙上张贴表现室外场景的绘画,希冀摆脱既有环境的单调。
▼紫禁城皇帝居所养心殿复杂的室内空间,将一座620㎡工字殿的空间可能性推向极致
在普通建筑中,虚构一个非常规场景,是北京人爱玩的空间把戏。我们的基地是一座普通四合院的西厢房,这样的建筑在北京有几万座,因为产权的关系,它被一组矮墙包围起来,成了院中之院。
▼场地图
▼建筑原貌
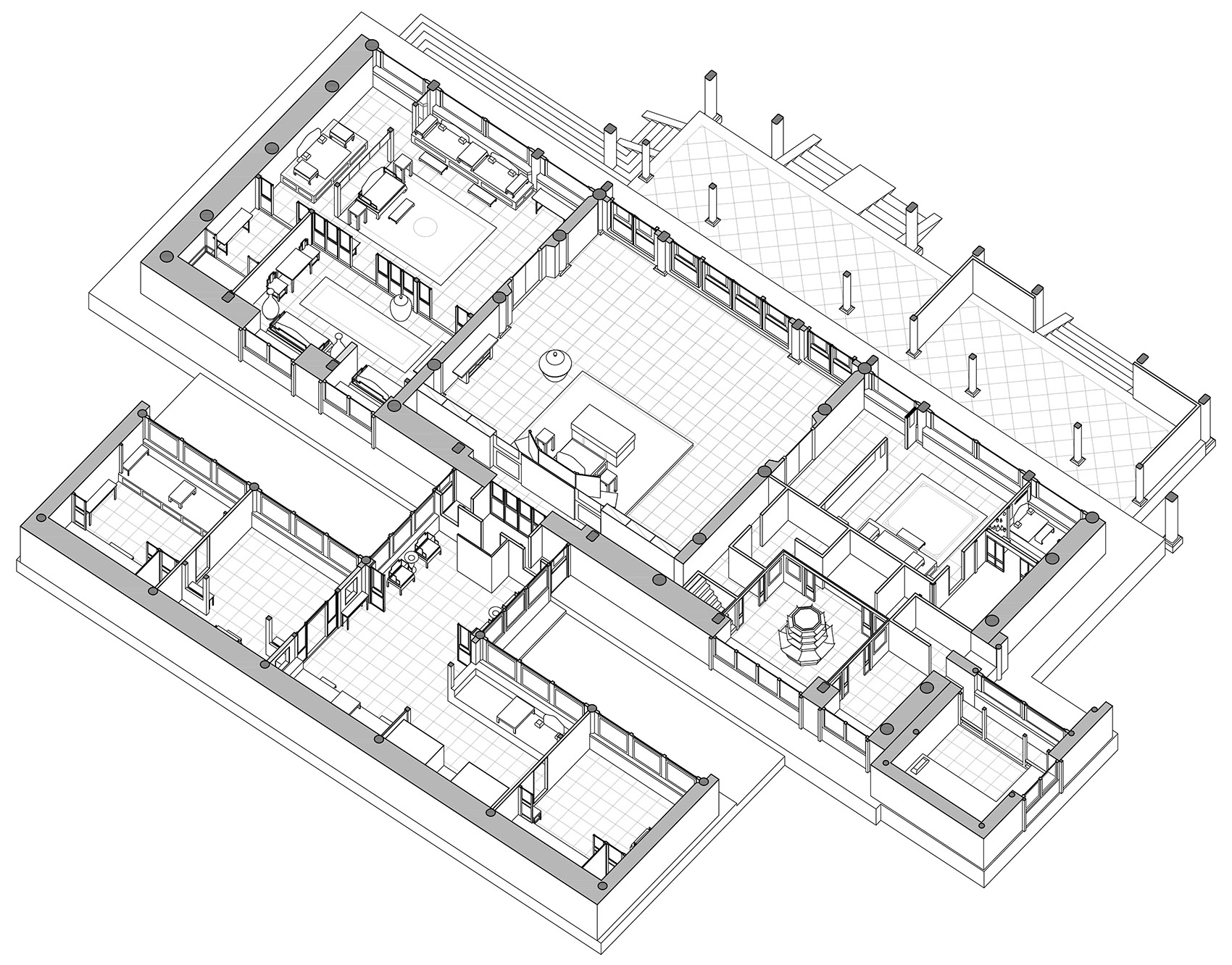
面对这座格局老派的旧房,我们把旧屋空间重新界定为不同单元,针对每个单元,重构它和它的外部空间,比如将院落用建筑填实;或将户内空间退还给院落;比如将较高的空间进行竖向划分;或扭转空间与景观的对位关系。我们尝试拓展空间变化的可能性边界。
▼被重构的西厢房
▼改造后的建筑剖面
当完成逐个空间的调整后,再把它们组合,编排为新的叙事关系。新体系与原建筑的空间语言差异明显。它使进入者忘记自己处在一座昏暗厢房中,陷入一段故弄玄虚的空间冒险。
▼嵯峨馆入口
▼山石与建筑结合,改变着人们对院落物理边界的认识
▼希望有限的山石带来对更大自然物的想象
▼建筑内院
在有限的尺度下,我们希望表现出使用空间对风景 “收集”倾向,刻意为日常场景营造非日常的画面北京。我们觉得这座建筑中,风景与空间应当是互相追逐的,你几乎躲避不开风景的尾随。
▼新的界面重新划分了旧有空间
▼空间与风景的“追逐”关系
▼空间对风景的“收集”
▼被重构的室内空间
▼旧有木质屋架恰好界定出相对私密的卧房区
在重构这间厢房的过程中,我们尝试保留这座建筑演变的痕迹。从早期粗率的重建,后期随意的修补,到某次反悔的空间修改,我们以每块石头和砖的维度,保留时间在这座建筑内的轨迹。新置入部分只留下白色背景,我们用它们标记自己对这座建筑的影响,也准备有人将这一切再次夺走。我们有意对抗室内外界线,比如用北京西郊出产的房山石,在建筑内外摆布出独立于建筑空间的山石群落,创造与自然物不期而遇的机会。那些嵌入墙体的山石,似乎暗示着这座建筑修造于一座幽静的谷底,山峦难以掩藏的局部直接探入人们的生活场景。
▼不同时期建造的痕迹被“陈列”在一起
▼侵入生活场景的山石
▼植入部分形成了新的室内流线和隐私梯度
▼重新组织的自然光改变了场所的属性和使用状态
▼空间对风景的“收集”
▼空间与风景的“追逐”关系
虽然掌握一些看似有力的技术,但当我们尝试把一块3吨重的山石运进四合院时,我们能想到的办法,并不比18世纪的建筑师高明多少。
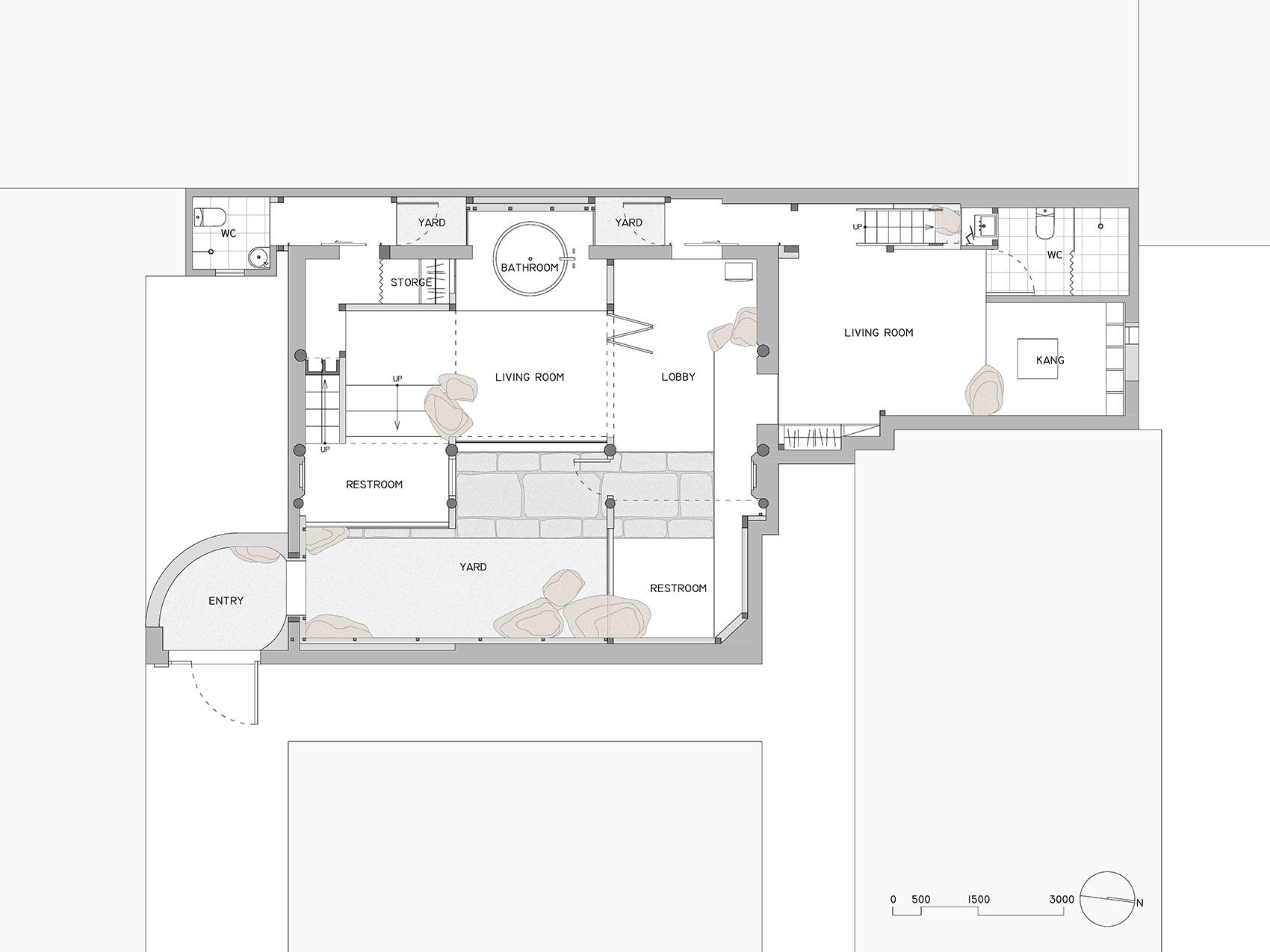
▼首层平面图
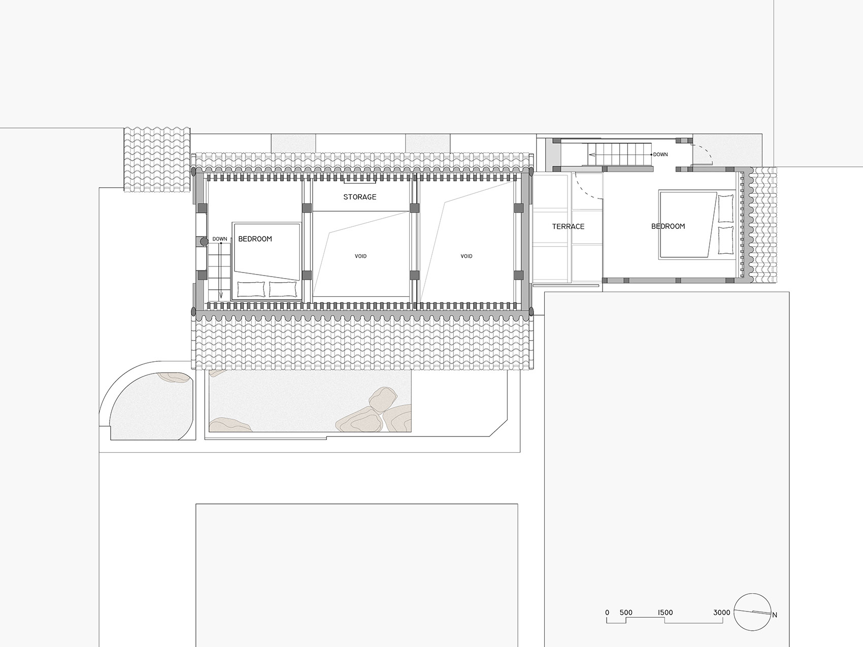
▼二层平面图
项目名称:嵯峨馆
设计公司:神奇建筑研究室
项目地点:北京
竣工时间:2017
建筑面积:100㎡
业主:叶先锋
建筑设计:朱起鹏、刘雁鹏、袁樱子
庭院景观设计:丁莉
照明设计:丁志强
摄影:孙海霆等
客服
消息
收藏
下载
最近




































