知末
知末
创作上传
VIP
收藏下载
登录 | 注册有礼

晓安设计|第六空间科默展厅

2017/10/07 00:00:00
查看完整案例
微信扫一扫
收藏
下载
周晓安所有作品:
项目地址|第六空间科默展厅
设计师|周晓安 刘云
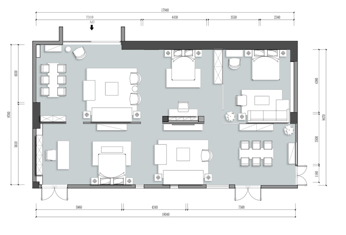
项目面积|160㎡
设计公司|晓安设计
摄影单位|杨森
晓安设计|第六空间科默展厅-6
现在你知道在黑暗里是怎样的感受
并且做一场你是生命闪烁的明星的梦
即使它看起来太遥远了
唯一的方法是相信自己
这是真的 这是我
我现在准确的在我应该在的地方
本案为展厅设计。空间与空间不再局限于用隔断、墙体进行硬性划分。设计师以展厅特有的流动性和灵活性进行设计,将每个空间融合在一整个空间中。
晓安设计|第六空间科默展厅-14
晓安设计|第六空间科默展厅-15
晓安设计|第六空间科默展厅-16
晓安设计|第六空间科默展厅-17
晓安设计|第六空间科默展厅-18
晓安设计|第六空间科默展厅-19
晓安设计|第六空间科默展厅-20
晓安设计|第六空间科默展厅-21
晓安设计|第六空间科默展厅-22
晓安设计|第六空间科默展厅-23
晓安设计|第六空间科默展厅-24
晓安设计|第六空间科默展厅-25
晓安设计|第六空间科默展厅-26
晓安设计|第六空间科默展厅-27
晓安设计|第六空间科默展厅-28
晓安设计|第六空间科默展厅-29
晓安设计|第六空间科默展厅-30
晓安设计|第六空间科默展厅-31
晓安设计|第六空间科默展厅-32
晓安设计|第六空间科默展厅-33
南京喵熊网络科技有限公司 苏ICP备18050492号-4知末 © 2018—2020 . All photos and trademark graphics are copyrighted by their owners.增值电信业务经营许可证(ICP)苏B2-20201444苏公网安备 32011302321234号
客服
消息
收藏
下载
最近