查看完整案例


收藏

下载

翻译
An area of triangular and irregular shape, a tree and an enormous desire to be more integrated, to be more responsible with the environment where we live, to build with more cleanliness. There was already another project for the same lot, with the same wishes, but another interpretation. The new project should be faithful to the smooth slope of the lot and enhance the view of the reforested area in front of the house and share with Red Angico the status of main attraction on the land.
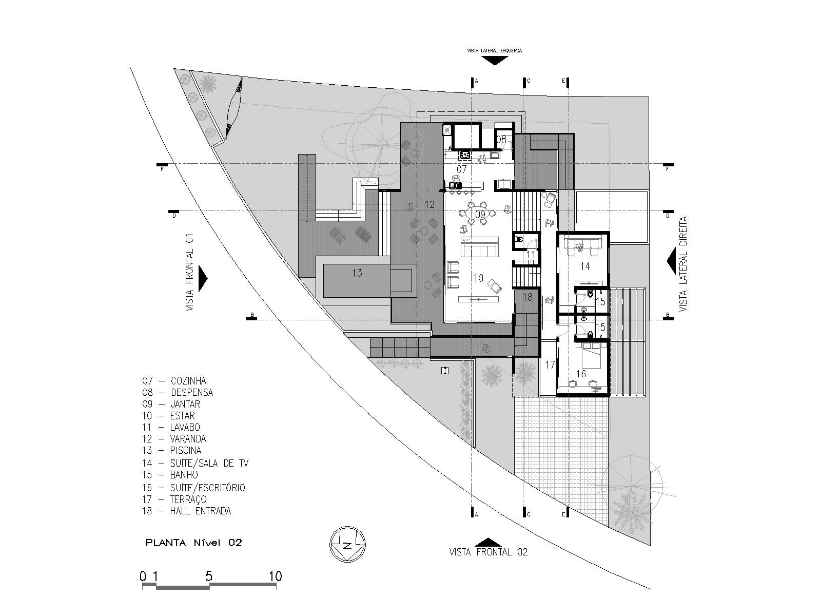
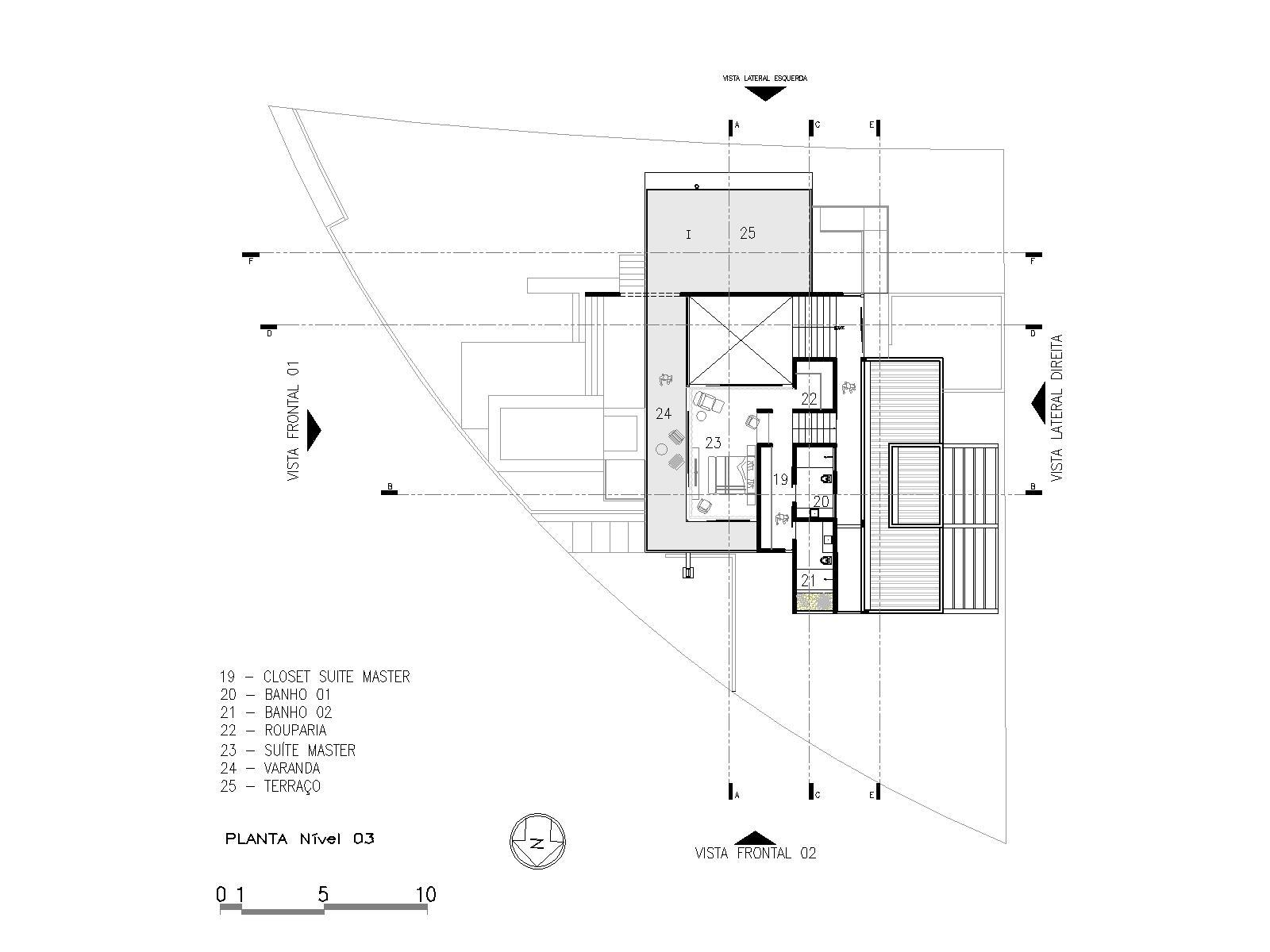
The program of the house accommodates on four intermediate levels, with a difference of half a ceiling between them, where the ground floor, which includes the common areas and leisure, is suspended from the floor, leaving the land practically intact with its unevenness. The garage and service area are located on the lowest level to the right of the lot. Right above and to the left are the social and leisure areas, where the intermediate floor is accessed with accommodation for views and an office. Further up, on the last level, is the master suite and the terrace at the height of Angico's canopy and from where it is possible to see the forest at the height of the trees.
The choice for a mixed construction system, between metallic system and glass, together with reinforced concrete and ceramic brick masonry, we managed to rationalize the construction site, equalize costs at the same time that we were able to make a lighter and glazed architecture with large free spans in social areas. The structure of metal beams and pillars was used in areas where the need for large spans was essential. However, where compartmentalization would be inevitable, as in the bedroom and bathroom area, the choice for the masonry system and conventional reinforced concrete structure was the most rational solution.
Free areas and trees can be seen from virtually every room in the house. Integration with the external area is always desirable in places where this is possible. And in this case, not only was it possible, it was practically an imposition of future residents. For this, in the social and intimate areas facing the forest, the glass closings are almost its totality.
The veranda with the brazilian ipe wood deck transitions with the outside and the pool, which has a spa-hydromassage on a higher level almost like access to the pool, and allows a privileged view of the forest ahead. Finally, a landscaped plaza and bench was installed in the shade of Angico, from where you can see the entire house, pool and leisure area.
客服
消息
收藏
下载
最近

































