查看完整案例

收藏

下载

翻译
Architect:Arquitetura Nacional
Location:Porto Alegre, RS, Brazil; | ;View Map
Project Year:2021
Category:Banks;Offices
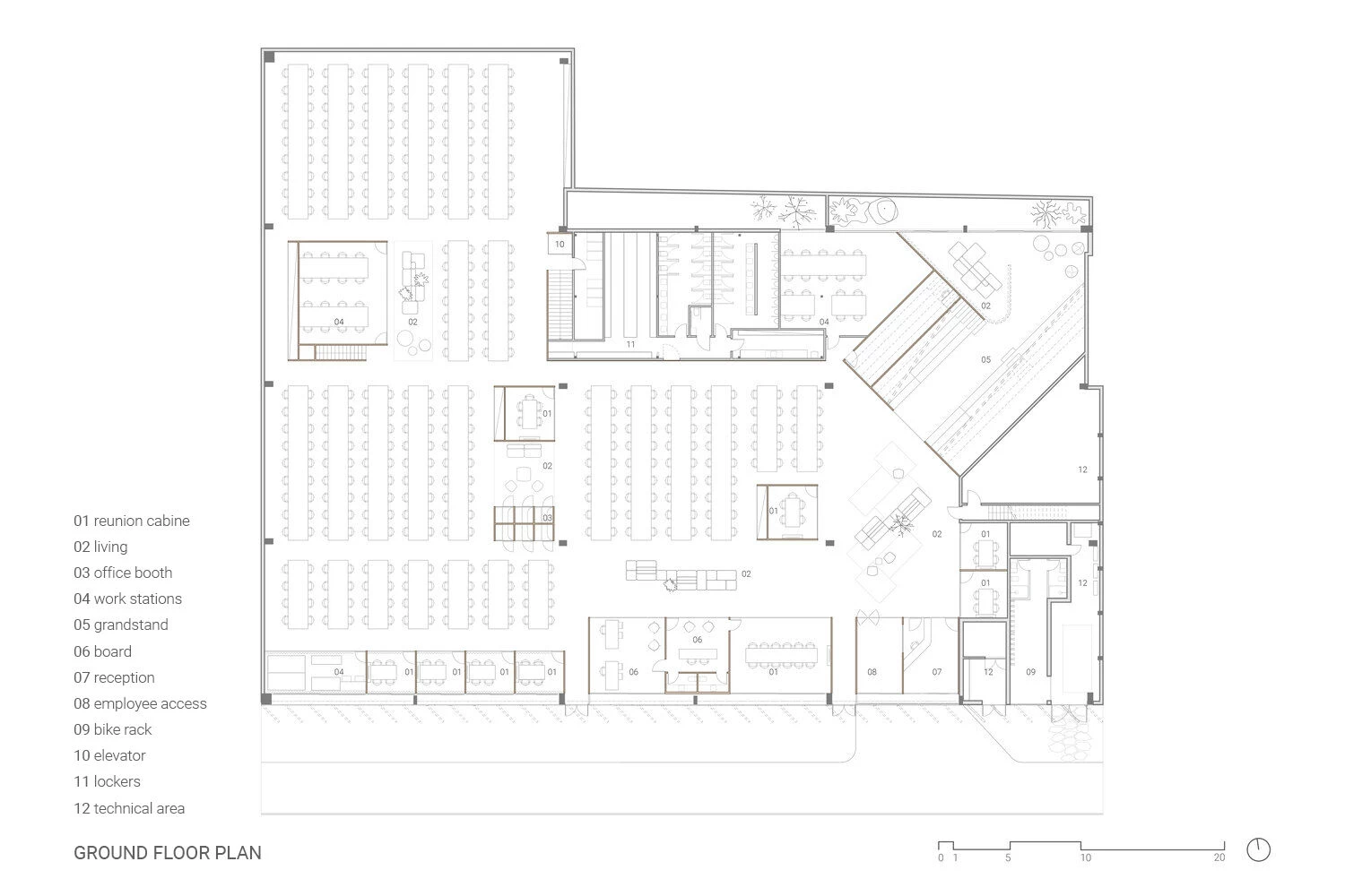
The retrofit project for Unicred's new headquarters, for 410 jobs, has as its starting point strengthening the brand's identity, using light colors and real materials. The location chosen to house the project, a 2.200m² warehouse, formerly a cigarette factory, was an important definer of the design strategies.
The large, integrated space, with high ceilings and interesting elements, was explored to its best potential. The pre-existence of the warehouse served as a blank canvas to highlight the new elements of the project. Volumes in CLT (cross-laminated timber) were created to house the reception, meeting rooms, boardroom, common space, cafeteria and fintech companies. These elements, placed throughout the workstations, create possible sectors between teams and new living and social area. They also bringing a more human and controlled scale to the entire space.
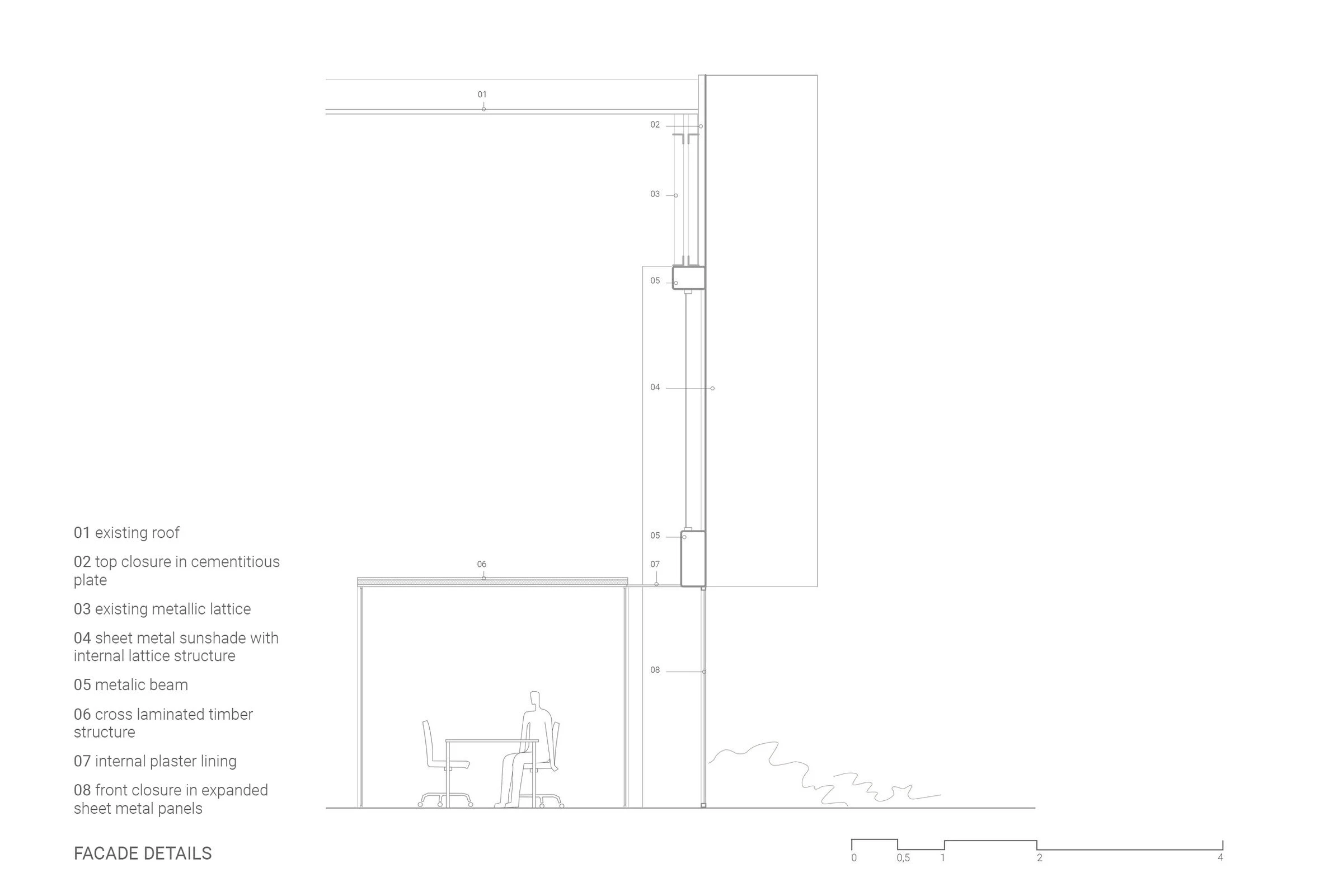
The retrofit of the building's facade was designed to bring more light to the interiors and at the same time privacy from the outside. The original facade, previously closed, was restored with a combination of glass frames and metallic sunshades.
One of the biggest challenges of the work was its logistics - the CLT prefabricated modules were transported from São Paulo (1.200km away). Therefore, the assembly of these items was of great importance. All monitoring by the office took place daily remotely via messages and video calls.
▼项目更多图片
客服
消息
收藏
下载
最近







































