查看完整案例

收藏

下载
本帖最后由 伶居设计 于 2020-9-9 09:43 编辑
艺术是一种普世的语言,而随着时代的进步,我们开始追求个性化的人生,将艺术的点滴渗入生活之中,逐渐成为了基本的诉求。以美学态度去解读生活品格,就如同在理性的篇幅之中漫写抒情,为内在的精神力量的外化找到了最合理的方式。
我愿深深的扎入生活,吮尽生活的骨髓,过得扎实、简单,把一切不属于生活的内容剔除得干净利落。
--梭罗《瓦尔登湖》
从古典到现代,从时尚到优雅,融合出一次现代轻奢的新风尚。启门步入首层餐厅空间,不同材质释放的灵魂在空间之中糅杂成景,穿透与稳重寻觅到微妙的平衡,透过材质本身传达温润、温暖的空间感受。老人们会说,餐宴之上最见心性。这里是美食和言语交汇出没的场所,也是家人们卸下盔甲传递关怀的舒展空间。
待客之厅,不再像从前那样繁重做秀,而是将生活停留在一个有质感与高度的地方,欢聚的乐趣更多的在于家人与亲朋的陪伴,空间给予人们的心理感受是更为重要的追求。空间中每一件物品的择材到摆放,虽在一方大景之中,却将艺术的线条铺设于每个角落之中,从简单的氛围里提炼出源源不断的新鲜感。
进入夹层空间,设计师最先考虑的是每个空间与居住者之间的对话,城市中的人们总是忙忙碌碌,从一个地点到另一个地点,从一个任务到下一个任务,渐渐的,我们好像忘却了生活该有样子。从人们日常生活的事物和环境中找寻新的关联,揣摩人们对于生活不同追求所呈现的状态,那将不仅是不仅是物质生活的加持、个性品味与艺术审美的表达,更是有家感温度,有创造力的精神生活。
将整体空间打散再重组,进行模块化的设计,通过不同身份的日常生活来进行分区,以软装的布局实现家居空间的多元化体现。女主人的工作区是关于创造梦想的场所,作为工作和学习的地方,从微小细节体现场景化的营造,同时创造出独特的记忆点,为来往的客人构筑不一样的生活工作情景体验。
温故知新,再熟悉不过的成语,放诸四海,旧时的经典沿用至今,依然不失为一条准则。男主人的阳光书房,则跟多了几分阳刚之气与艺术美感,从晨光到落霞,看着光线在家中流转,心里会有一种难以言语的踏实。文书藏宝,体现的是生活沉淀与精致,而阅书批文疲倦之时,起身释放娱乐一下,也是生活的轻松体验。
如果说客厅是一个家庭外在气质的体现,那么家庭厅则是家庭内在涵养的最佳平台,空间的视线与动线应是一眼贯穿毫无隔阂,追求除了设计的平衡性以外,更应是舒适与艺术感同在。取之自然的色调和造型,将城市的冰冷感和喧嚣隔离在建筑之外,只留下与家人相处的亲密时光。
不同的小角落搭建起了只属于孩子的城堡,孩子的成长历练,从小便已开始,而当美好的人、美好的事物在美好的空间中相遇,便生长出一种安放身体、培养情商、互相鼓励成长的社群关系。家长与孩子的互动也尤为重要,桌椅的放置,让大人也可与孩子共同体验不一样的生活乐趣。
进入卧室空间之中,渐渐安抚了一天的浮躁,终于能静下神来,感受其中的静谧和光明。从灯具到画作,床品的搭配与家具的选择,均是设计师的精挑细选,所有的组合在尽可能简化之中又有着可以细细考究的细节,白天阳光透过窗铺洒在墙上,夜晚来临光束又各自登场,留下光谱的魔法,通过光的变化来传达岁月流转中人生的更迭,在精神最得以放松的场所,传达出生活最完整的姿态。
软装设计:伶居设计
布艺设计:伶居丽布
室内设计:李益中空间设计
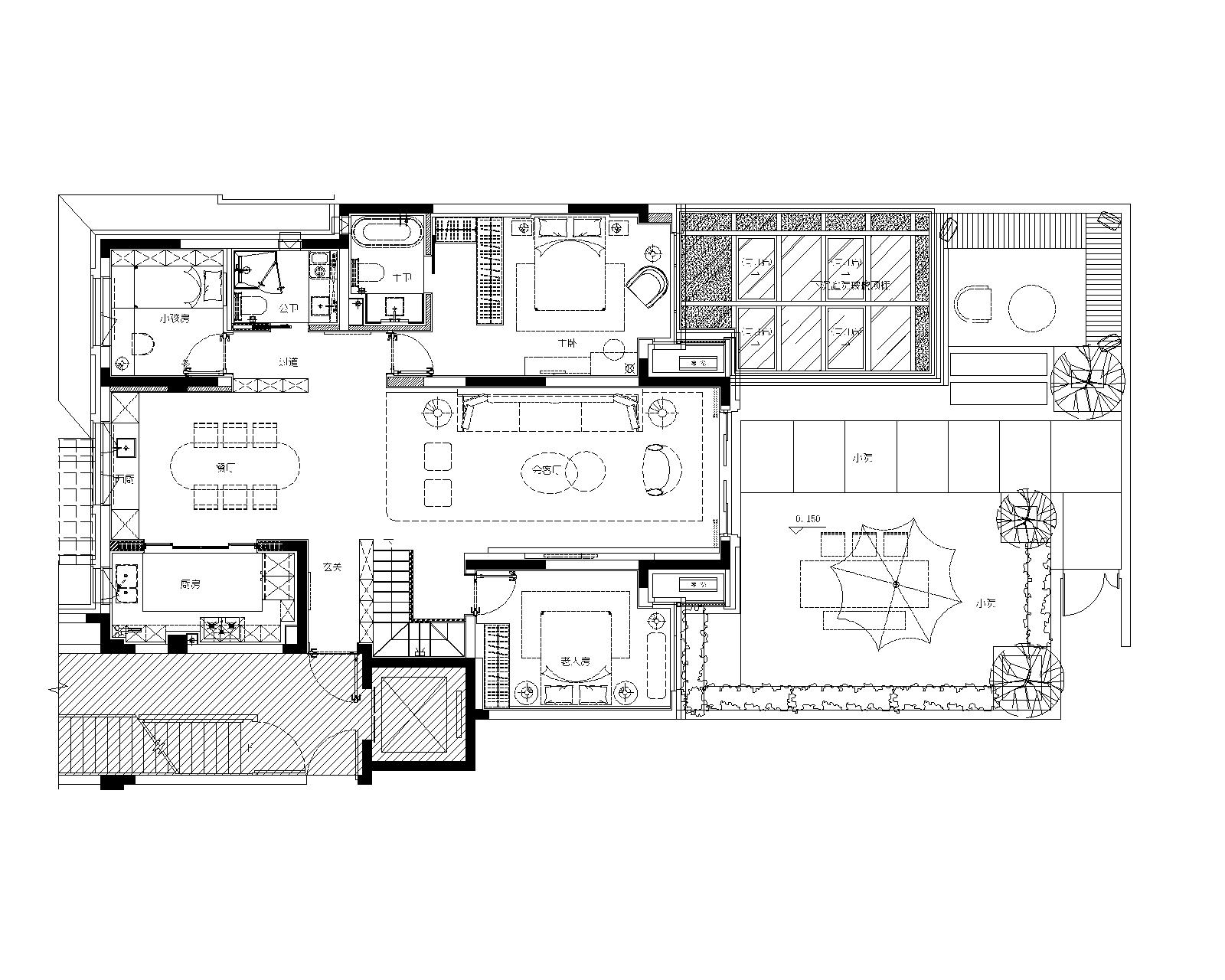
专案名称:中粮·沈阳隆悦祥云·洋房底跃138户型(嘉·颂)
业主单位:大悦城控股东北区域公司
项目地址:辽宁·沈阳
项目面积:396.2501349㎡
设计风格:现代简欧
项目时间:2020年07月
客服
消息
收藏
下载
最近

































