查看完整案例

收藏

下载

翻译
Firm: SpActrum
Type: Hospitality + Sport › Sports Center Landscape + Planning › Public Park
STATUS: Concept
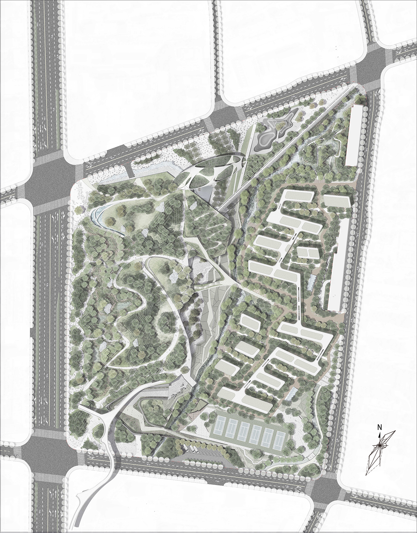
The Sports Park is located in the city center of Lishui. It’s on empty land since the local theme park closed many years ago. The architects are determined to re-fabricate a city quarter to inspire the neighborhood and to provide a vivid landscape for public life. Not just to facilitate sports and games, but to build a social hub for everyone.
The Park accommodates over 17,000-sqm of stadiums underground. Architects used 3D-planning for land use. Its entrance is on the north side facing the city. There’s a small creek crossing the site. The park is split into two parts by the river and the valley, with bridges connecting two banks. The valley connects the city with its long gentle slopes, which widens up to the street. Each bridge is designed to offer a different experience and a place with its own identity.
The dynamic valley is planned to take people down to underground stadiums seamlessly from the street level along the creek. It is an underground plaza with easy pedestrian access to the road. It inspires and encourages all kinds of activities and mingle them together above and below the ground, indoor and outdoor. The stadiums together with the thick concrete cliff comprise important parts of the sport-scape, and the bridges crossing the valley are important visual features.
The valley and its shadows sit perpendicularly towards the direction of summer winds from the east. The gaps in the valley cliff invite wind into the stadiums to take out moisture and heat. There are grasslands and bushes on top of these underground spaces. Together with the thick concrete walls, they are thermal buffers for the space within to improve sustainability performance. Rainwater will be collected and reused. The original small creek has been turned into a marshland area as a micro-ecosystem.
客服
消息
收藏
下载
最近














