查看完整案例

收藏

下载

翻译
Architect:ACIA Arquitetos
Location:Campinas, SP, Brazil; | ;View Map
Project Year:2022
Category:Offices;Shopping Centres
Stories By:ACIA Arquitetos;ULMA Architectural Solutions
Set within the area of a shopping center in Campinas, a brazilian municipality in São Paulo, the Sky Galleria is a commercial office and services building that connects integrally with the shopping center's uses through an open first floor and a small forest for moments of decompression. Designed by ACIA Arquitetos - a Brazilian office that has in its portfolio projects that seek to transform the way users interact with the city -it is part of the Galleria Shopping Complex renovation plan, which aims to establish a new urban centrality in the region.
Sky Galleria was divided into two main areas: one behind the shopping center, and another in its front area, where the main tower with 14 floors is located. The building was designed to be a landmark within the place where it is located, serving as an opening point for this new mixed-use center in Campinas.
Regarding its structure, we sought to minimize the use of materials through creative solutions. This way, the project is established as a metallic box with large solar protection glasses and aluminum in corten brown, allowing permeability between areas. Additionally, metal sheets were utilized for various purposes, ranging from brises to connecting elements of the surrounding buildings, bringing a harmonious visual unity to the entire complex.
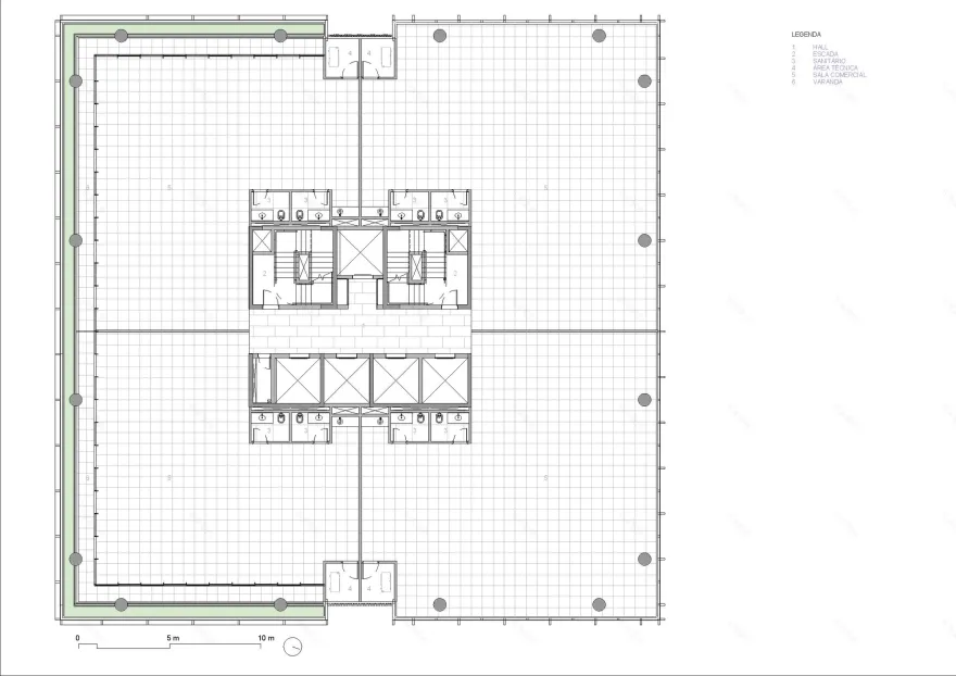
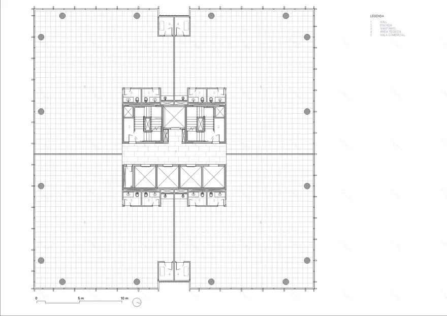
The Sky Galleria program has, on its first floor, the reception area, a business center with meeting rooms and a multipurpose room that can be used as a theater, space for events and parties and other uses. In the interiors, the same materials used in the facade are appliedtogenerate not only visual but also structural integration. The building also has an underground floor that houses the parking lot and the bike rack with locker room, and an open rooftop with space for VIP use and a Helipad.
Inspired by the "15-minute city" concept, the biggest challenge was to integrate the project with the circulation and use areas near the Shopping, creating an urban neighborhood with a strong sense of connectivity and human scale. To achieve this, the idea of establishing a small tree square on the first floor of the building aims to create a new walkable space, serving as an extremely pleasant living area for interaction and socializing, as well as being a division between the circulation area of the commercial center and the offices, using the trees of the forest to camouflage the view of the rooms in the first floor.
Regarding the landscaping, one of the floors features a horizontal section on one of its sides designed for the installation of perimeter flower beds, which allow usersinside a room on this floor to have a view of the surroundings through the greenery.
Planned to be a landmark, the lighting project established the building as a large lantern, taking advantage of the permeability of the glass prisms divided into two parts that make up the structure of the tower. From the internal luminaires of each commercial room to the system that lights the entire building in an integrated way, everything was thought to create a unique lighting experience. Additionally, the use of technological solutions, such as facade automation, allowed the low-consumption LED lighting to be managed efficiently, contributing to Sky Galleria's LEED Gold certification and to the reduction of light pollution. In this way, the lighting of this building not only highlights the architecture, but also contributes to a sustainable and conscious experience.
Architect: ACIA Architects
Team: Fabio Aurichio, Felipe Lopes, Luciana Maki, Rafael Costa, Breno Burrego, Mariana Soares, Priscila Rodrigues, Marcelo Nagai
Developer: Building Empreendimentos Ltda
Landscaping: Cenário Paisagismo
Engineering: WA Engenharia
Waterproofing: Proiso Projetos e Consultoria de Impermeabilizacao
Lighting: Castilha Iluminação
Foundations: Consultrix
Automation: MarbieSystems
Air Conditioning: Willem Scheepmaker & Associados Ltda
Hydraulics and fire design: Kit Projetos
Photography: Daniel Ducci
1. Ventilated facade system: Ulma Architectural Solutions
2. Perforated metal panels, solar control system and metal lining: Hunter Douglas
3. Frames design: ERG's
4. Glass: Glassec Viracon
5. Internal wall cladding: Marges
For the multipurpose building attached to the Sky Galleria tower, they wanted to build quickly and without sacrificing a durable and aesthetically elegant material.
The external side of the dry façade cladding is completed with Stoneo ventilated façade panels.
This is an innovative material, derived from stone and whose composition is 90% stone material bound with resins.
And what about aesthetics?
In the case of the Sky Galleria we have used Stoneo Pure texture.
This range stands out for its stony appearance, and in it we find three finishes: polished, slate and striated. In the Sky Galleria we have used the slate texture, in my opinion, it is the one that most resembles natural stone.
▼项目更多图片
客服
消息
收藏
下载
最近



















































