查看完整案例

收藏

下载

翻译
Architect:Fokkema & Partners Architecten;Superuse Studios
Location:Schenkkade 65, Den Haag, Netherlands; | ;View Map
Project Year:2022
Category:Offices
Stories By:Fokkema & Partners Architecten;Silo
The entrance to the Event Space is an interactive transition zone that puts guests in a creative mood. Scintillating orange lines on the ceiling move with the visitors as a translation of the energy they bring into the space.
In a friendly and bright environment, visitors are welcomed at a large mirrored bar: the central place to meet up and connect. Biophilic design principles and circular materials give a natural sense of comfort and communicate NN's sustainability values. The receding walls invite you to wander further into the Event Space, while the perforated steel ceiling is reminiscent of a canopy. The organically shaped auditorium is clad in flax-based scales, resembling a pine cone or feathers of a bird.
The heart of the Event Space is the dark, engaging auditorium with state-of-the-art AV facilities. Mobile seating elements and clever curtain rails make the space easily adaptable.
After the session, guests gather at the bar where the sustainability philosophy has been implemented even on a gastronomic level.
The integrated approach ensures that all Event Space users experience the organisation's core values at every opportunity.
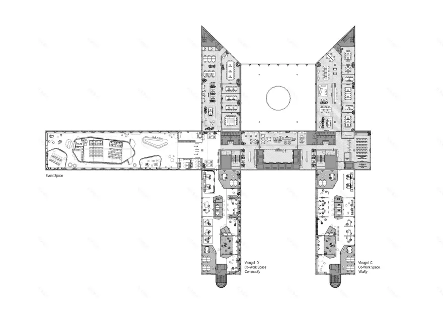
The Co-working Spaces are cross-departmental and spread over four spacious wings in The Hague and Rotterdam. Colleagues from other cities can use the touchdown desks, and teams can reserve a project space to collaborate for a more extended period. Each of these wings focuses on a theme important to NN: creativity, community, sustainability and vitality. Walking along the strategically placed volumes, which include brainstorming rooms and quiet workplaces, the topic of the wing unfolds step by step.
In the vitality space - where everything revolves around an active lifestyle - one finds tennis table desks, orange monkey bars, illustrations encouraging movement, and mosaics made of residual materials. NN's brand essence, 'You matter', is represented in a marble run that adds dynamism and lightness to the workplace.
The Event Space and Co-working Spaces are part of the complete renovation of all office floors at the two NN locations. The comprehensive harvest plan for this renovation has resulted in the largest circular 'harvest hall' in the Netherlands. An inspiring reservoir of ideas and a new aesthetic are created by connecting all material flows and enabling manufacturers to contribute their expertise on efficient processing.
For the Event Space and Co-working Spaces, in addition to harvested materials, new innovative materials and products were used that are circular, cleverly designed and have a 'rock 'n roll' factor. Moreover, the materials have been mounted so that everything can be disassembled and reused. In total, the project saved 2,722 tonnes of waste. A circularity of 89% was reached with a 70% reduction in environmental impact (ECI). The targeted WELL Platinum certification was also achieved.
If – like
– your goal is to provide future security, you cannot ignore circularity. That’s why the company ambitiously aimed for a complete circular renewal of its
. An environment that connects users to the organisation’s goals and values and optimally stimulates collaboration.
As an industry leader in financial services, Nationale-Nederlanden takes responsibility. With a
and aiming for the lowest possible Environmental Cost Indicator, the company does not want to burden anyone with refurbishing its Rotterdam and The Hague offices.
Moreover, the post-covid world requires a different working environment. In addition to floors for activity-based working, the iconic bridge over the A12 highway provides a unique location for an event space. An in-house venue to bring together the team and guests at important moments while emanating the core brand values.
Silo and Fokkema & Partners developed a
that engages employees and visitors with the brand’s sustainability ambitions. The information and inspiration motivate them to contribute to achieving NN’s sustainable goals.
In each of the four ‘co-working spaces’, you will experience themes important to NN in this context: creativity, community, sustainability and vitality. The high ambitions in terms of circularity culminated in various interventions, including residual material mosaics.
For the event space, the design team developed an understated experience that immerses visitors in NN’s world and thus conveys its central values. The space was designed based on biophilic design principles, translating elements from the natural environment to strengthen the relationship between people and nature within a building.
Walking through the transition zone between the working environment and the event space frees you from the everyday. The
installation visualises the energy you bring into the room.
Inside, you discover an organic volume clad with hundreds of scales made of innovative sustainable sheet material. The wall covering resembles a pine cone, the feathers of a bird or the petals of a flower. The layering and application of materials create poetic views as the meandering overhead orange thread takes you along.
▼项目更多图片
客服
消息
收藏
下载
最近






















