查看完整案例

收藏

下载

翻译
Architect:Lacol arquitectura cooperativa
Location:Barcelona, Spain; | ;View Map
Project Year:2023
Category:Offices;Cultural Centres
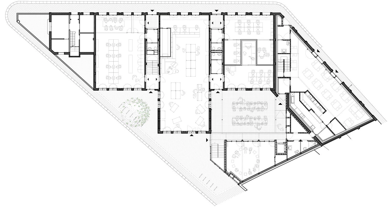
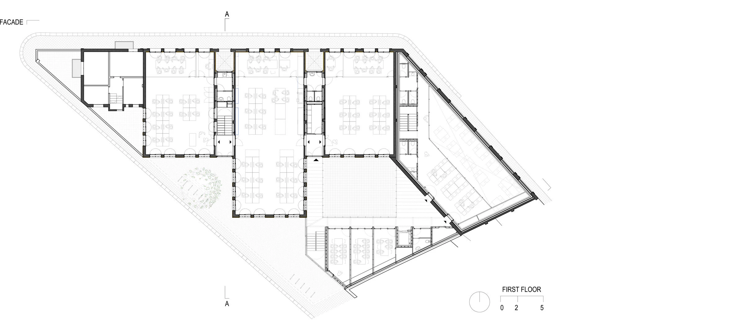
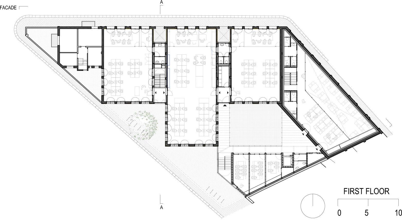
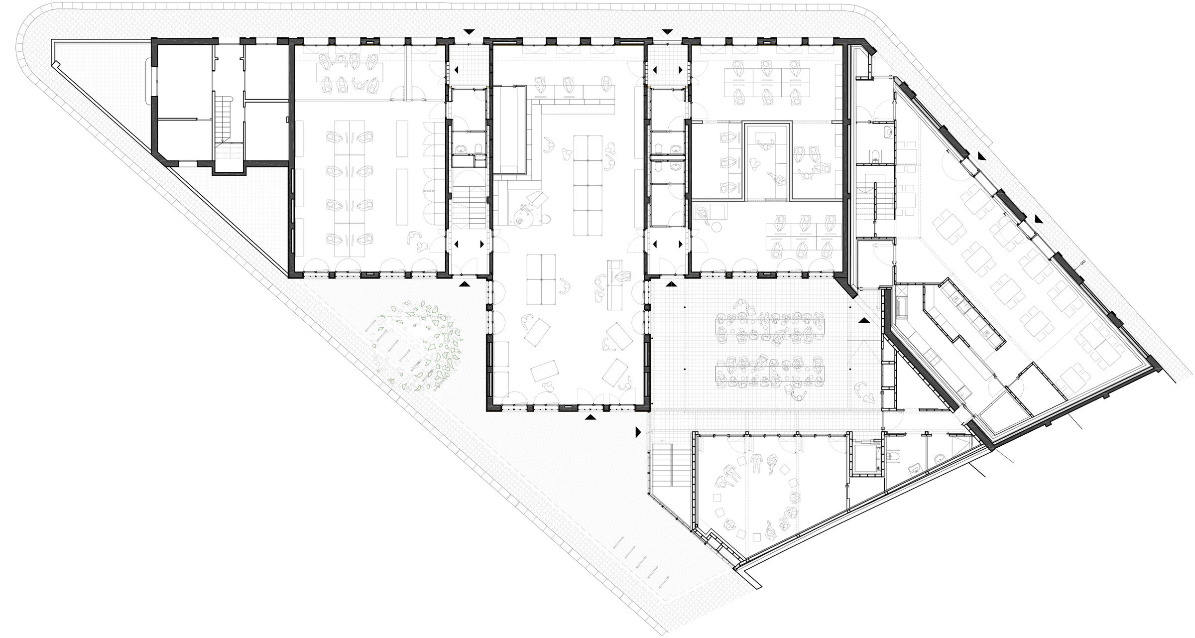
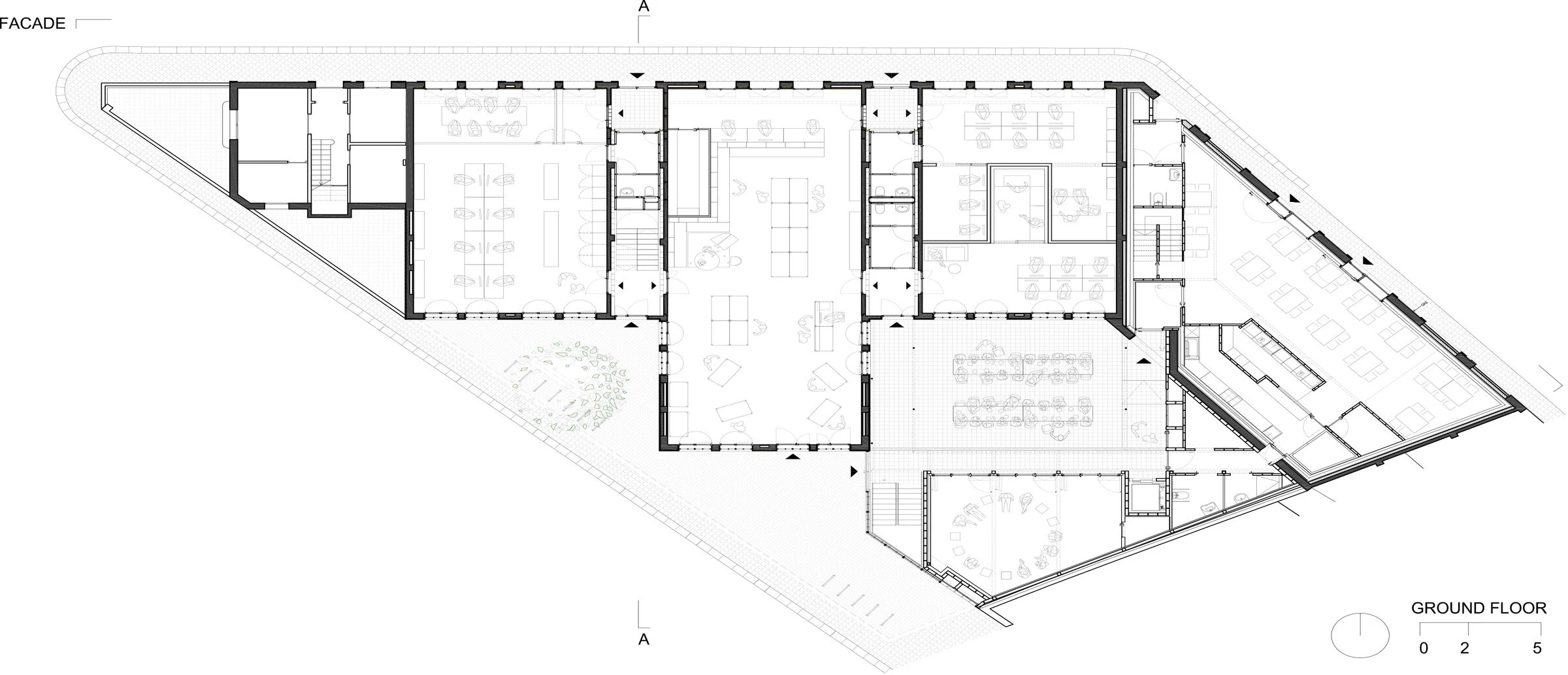
La Communal occupies half of a block in the Sants district of Barcelona. It is a protected industrial building, built in 1926 for the manufacture of naval sails. It is currently the workspace of eight organizations, including Lacol.
In the intervention, the initial geometry has been recovered, rehabilitating the original constructions and adding a small new building to the dividing wall of the neighboring houses. The central courtyard, in addition to allowing ventilation and lighting of all the spaces that surround it, is an element of centrality to meet with others.
The buildings, except the restaurant and concert hall, received a minimum treatment. On the roofs, after removing the pieces of fiber cement with asbestos, we placed corrugated galvanized steel sheet and thus differentiate those materials added in the project from the existing ones.
We have divided the climate strategy into three axes. Starting with the air, greenhouses have been incorporated to capture Sun heat, and the air-conditioned square meters have been reduced. As for the water, a 5,000 liter tank allows the use of the water from the roofs for irrigation and cleaning.
Architects: Lacol arquitectura cooperativa
Photographer: Alvaro Valdecantos
▼项目更多图片
客服
消息
收藏
下载
最近








































