查看完整案例

收藏

下载

翻译
Architect:TAKESHI ISHIODORI ARCHITECTURE
Location:Miyazaki, Japan; | ;View Map
Project Year:2020
Category:Offices
The new office building of Tokyo Marine & Nichido's insurance agency offers a stunning view of a row of Washingtonia palm trees, the symbol of Miyazaki City (known as the "Hinata of Japan" meaning it warms peoples characters when they visit), along with a majestic pine forest stretching along the coastline.
Our client sought to create an office building that truly captures the tropical essence of Miyazaki while challenging the typical image of an insurance agency, aiming to attract and retain top talent in a competitive job market and appeal to younger generations.
To achieve this, the building's exterior, which serves as the face of the company, features white with light beige large-format tiles and cedar-plank concrete forms. We also carefully selected subtropical plants to adorn the surroundings, creating a tranquil resort-like atmosphere that exudes the relaxing vibe of tropical Miyazaki.
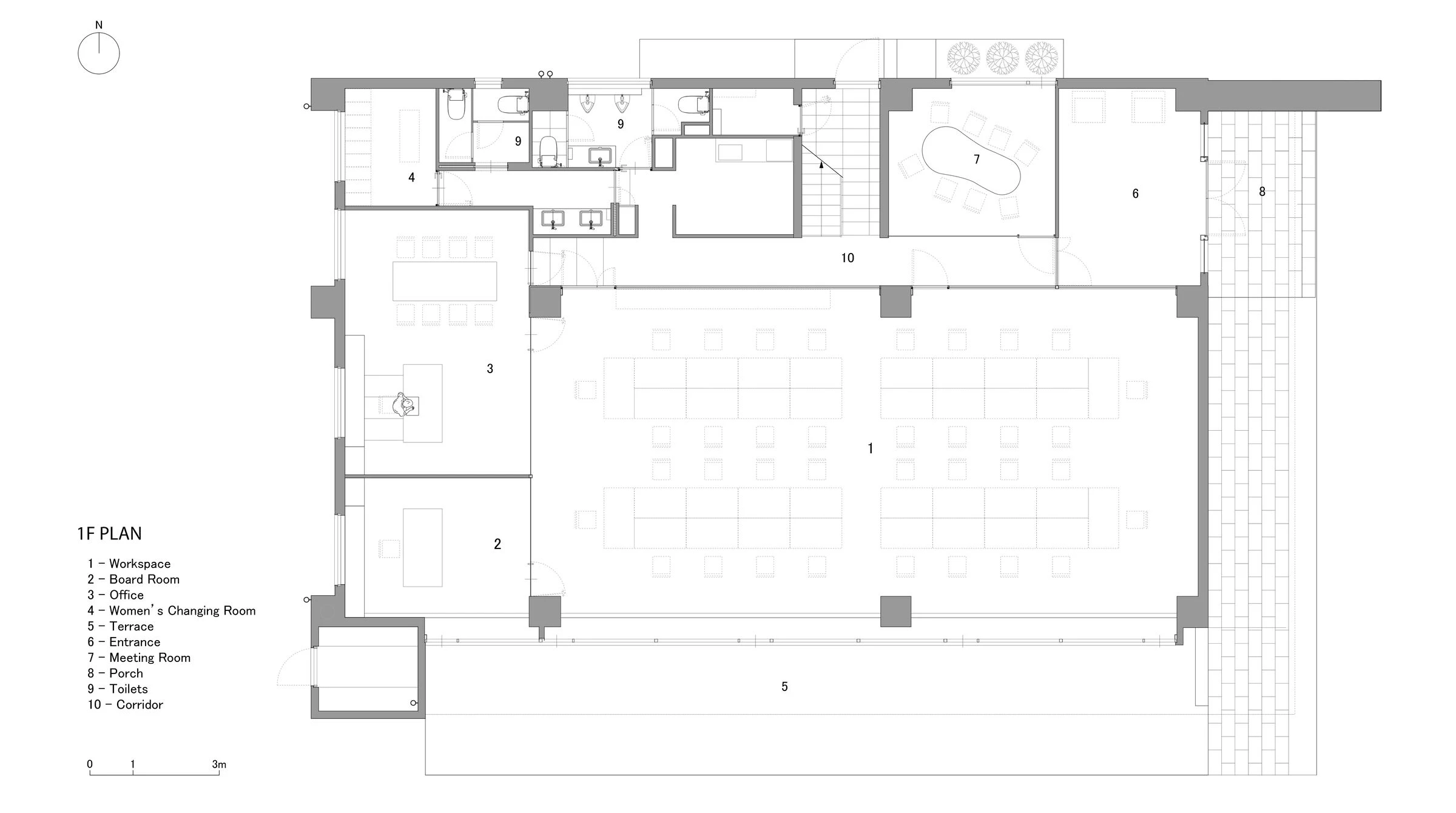
The first floor, where visitors are welcomed into the offices, client meeting rooms, and boardrooms, is fully glazed to offer an unobstructed view of the entire floor, symbolizing the company's core values of transparency and trust.
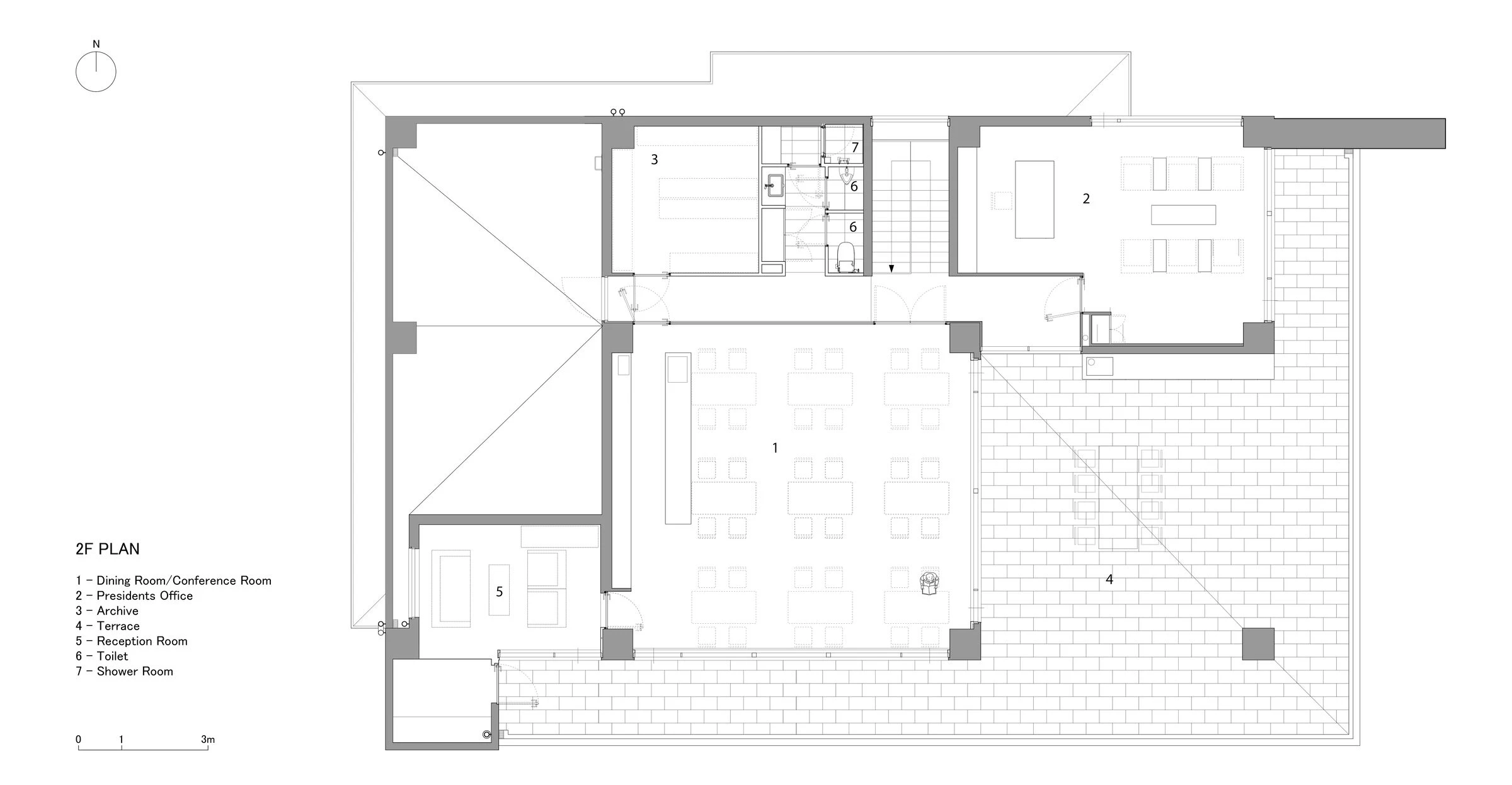
The second floor houses a conference room, café, and semi-outdoor terrace, all connected by full-length glass walls that provide a serene space for employees and guests to unwind and enjoy the lush green pine forest, Washingtonia Palms, and the crystal-clear blue sky of Miyazaki.
The president's office boasts a beautiful view of the rows of trees and pine forests, elegantly decorated with the same beige materials and furniture as the exterior of the building. This exclusive space offers a refined ambiance that is far from the conventional "stately president's office," where clients and guests can enjoy warm hospitality and experience the unique culture of Miyazaki.
At the heart of the design philosophy lies the sensitivity of the insurance business, where hope, anxiety, and security exist simultaneously. Therefore, our goal was to create a building full of natural light that promotes calmness and rejuvenation for both employees and customers.
We are proud to say that one of the long-time employees was moved to tears the moment he set foot in the new office.
▼项目更多图片
客服
消息
收藏
下载
最近





































