查看完整案例

收藏

下载

翻译
Firm: Alencar Arquitetura
Type: Residential › Apartment
STATUS: Under Construction
YEAR: 2024
SIZE: 25,000 sqft - 100,000 sqft
BUDGET: $10M - 50M
Photos: Alencar Arquitetura (14)
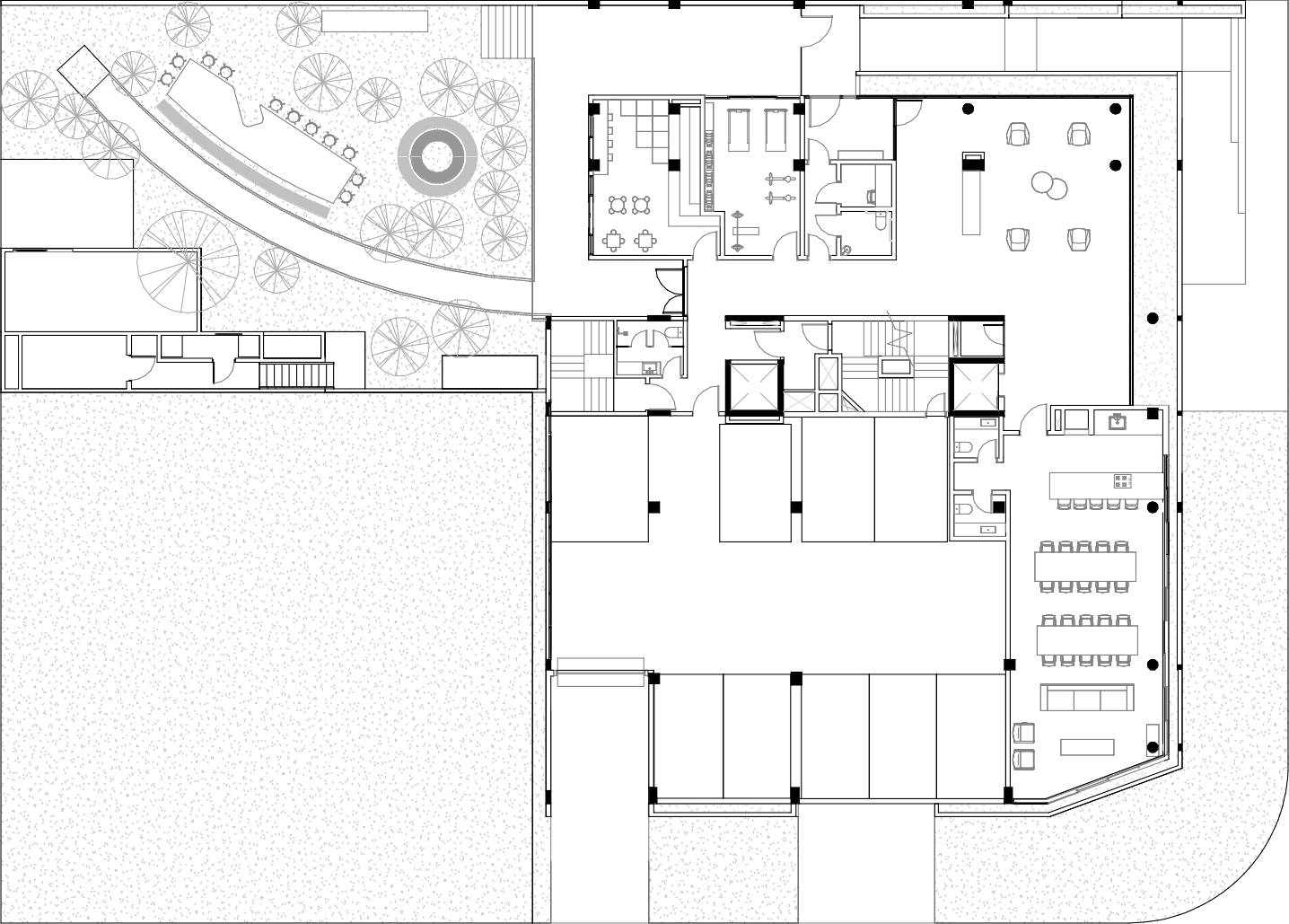
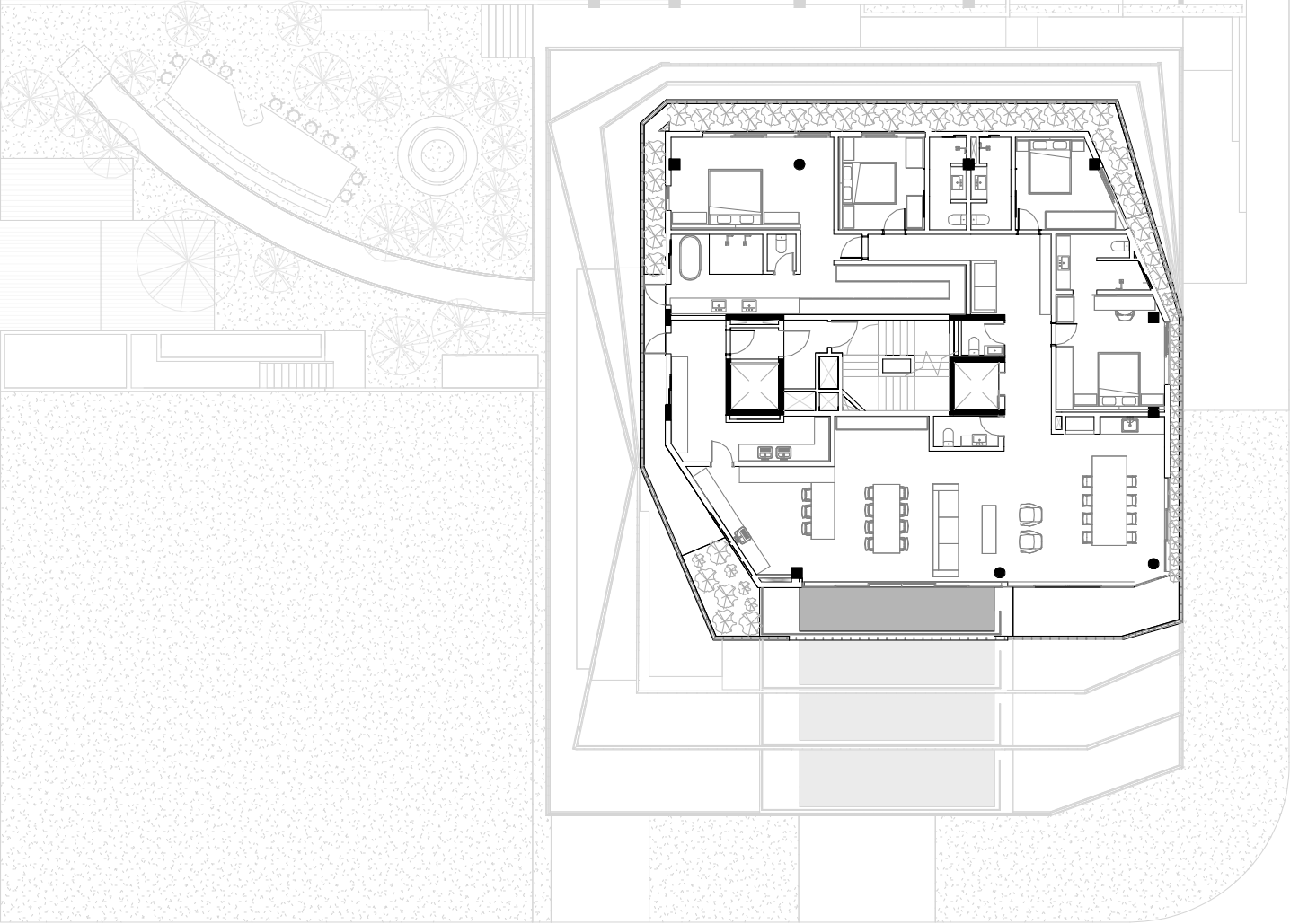
We were invited to design a new residential building on one of the most historical avenues in the city of Blumenau, Alameda Rio Branco – former “street” Kaiserstraẞ. The street was known for its beautiful houses and gardens in front of the houses. We thought it would be a great opportunity to try to rescue certain characteristics of typical houses in Blumenau, and also propose a building with a contemporary form and expression.
Our efforts are aimed at reinterpreting the work codes in a creative and inventive way to make the experience of living in an apartment closer to that of a house, seeking flexibility in typologies.
The result is a building that compresses and contorts at the same time, offering spacious terraces and balconies on all sides for its residents, as well as unique apartments for each of them.
An upbeat and happy vertical community, Kaiserstraẞe relies on detailed planning of structure, architecture, and landscaping, to obtain the best results for the best use of natural lighting, cross ventilation, and use of renewable energy for heating the pools and intelligent irrigation.
客服
消息
收藏
下载
最近
















