查看完整案例

收藏

下载

翻译
Architect:Woodo Studio
Location:Shanghai, China; | ;View Map
Project Year:2022
Category:Offices
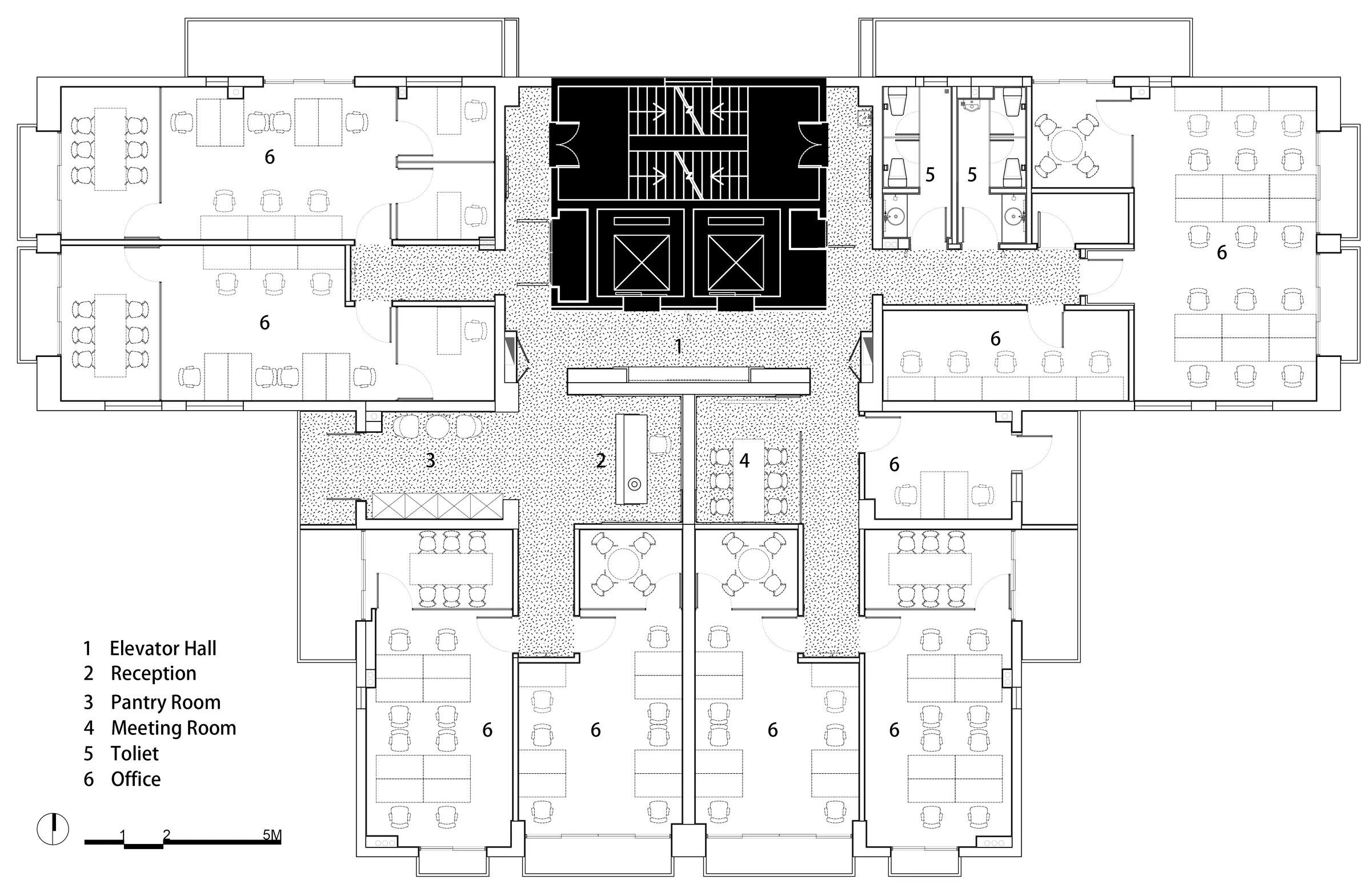
Woodo studio extracted the internal spiritual characteristics of the brand and carried out the design concept of Mailbox on the street. In the layout, on the basis of meeting the basic office and social needs, they described the retro postal space scene with flexible and interesting dynamic planning. It presents an innovative and flexible office space, thus replacing the traditional static office.Break the old form of office space, Woodo studio use a new design concept to interpret the vitality and artistic atmosphere.
Construction budget.
Retro wood veneer brings gentle and calm power to the office space.
Elsie, Jiahong Chen, Jialin Li
1. Facade cladding: Wood
2. Doors: Wood, glass
▼项目更多图片
客服
消息
收藏
下载
最近






























