查看完整案例

收藏

下载

翻译
Architect:DII Architecture
Location:Evanston, IL, USA; | ;View Map
Project Year:2019
Category:Offices;Private Houses
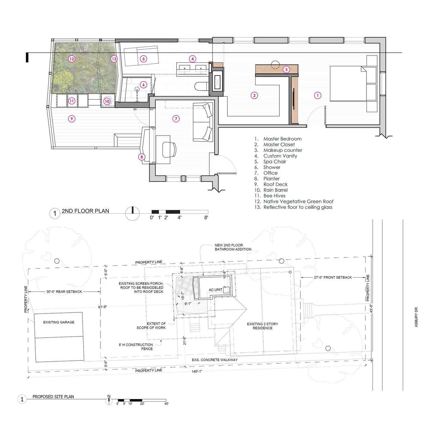
Challenge: A small 1940 home needing a 2
floor master suite addition, office, & green roof deck. The owners love the original house, but needed additional luxury & leisure spaces for retirement.
Outcome: A long slotted renovation & addition was created stretching from the existing master bedroom. Light floods the new master suite w/ floor-to-ceiling glass & other complimentary new windows. A clean white minimalism was applied to assimilate w/ the sunroom & become a quiet, but sleek addition; while allowing the home’s original architectural vernacular to remain in tact.
Sustainability:
This project has quite a few sustainable elements. James Hardie, fiber cement panels & trim were utilized in this project, which have a very long life span w/ little to no maintenance. Low VOC paints were used throughout the home as well as LED bulbs. Two new eco-flush toilets were also installed for the project. Trex planks for the roof deck were implemented as well. Lastly, double pane, low-E windows w/ argon were used for the whole project.
A couple empty nesters sought out DII to do a final addition & remodel for their home. They requested a new master bathroom(specifically with foot spa chair:), walk-in-closet, master bedroom/office, & new deck walk-out to feature bee-keeping! The owners also wanted extra natural light to the middle spaces of the 2nd floor.
Initially we sought to stitch the existing powder room addition & sunroom together w/ the new master addition & deck to ultimately have a clean, balance composition. A green roof was proposed as a backdrop for the spa master & beehive towers area. Other fun features include retaining the exterior brick on the inside of the new master, as well as rain/chain scuppers that aesthetically channel water into planters & a rain basin. The clients were very pleased with the final product!
GC: Irpino Construction
Design/Drafting/3D support: Haas DesignWorks, LLC
Owners: Ed & Marissa Colgate
▼项目更多图片
客服
消息
收藏
下载
最近





















