查看完整案例

收藏

下载

翻译
Firm: Standard Studio - Amsterdam
Type: Residential › Apartment
STATUS: Built
YEAR: 2019
SIZE: 3000 sqft - 5000 sqft
BUDGET: $100K - 500K
The Amsterdam antiques quarter 'het Spiegelkwartier', is a historic neighborhood between the Herengracht canal and the Rijksmuseum. The Rijksmuseum opened its doors in 1885 and attracted a lot of people interested in art and antiques.
Kerkstraat school was founded by the Church and is located behind the backyard.
The school was connected through the backyard. The architect that designed the school, J.W. Meijer, was directly related to the church.
Kerkstraat 111 is now in use as an apartment building. The ground floor, however, is not just an apartment... it’s a combination of a photo studio and an apartment.
At the beginning of 2019, Standard Studio got the assignment to turn the Kerkstraat 111 in a contemporary, lofty environment with an open floorplan whilst making sure that the end-user has a lot of privacy in all areas.
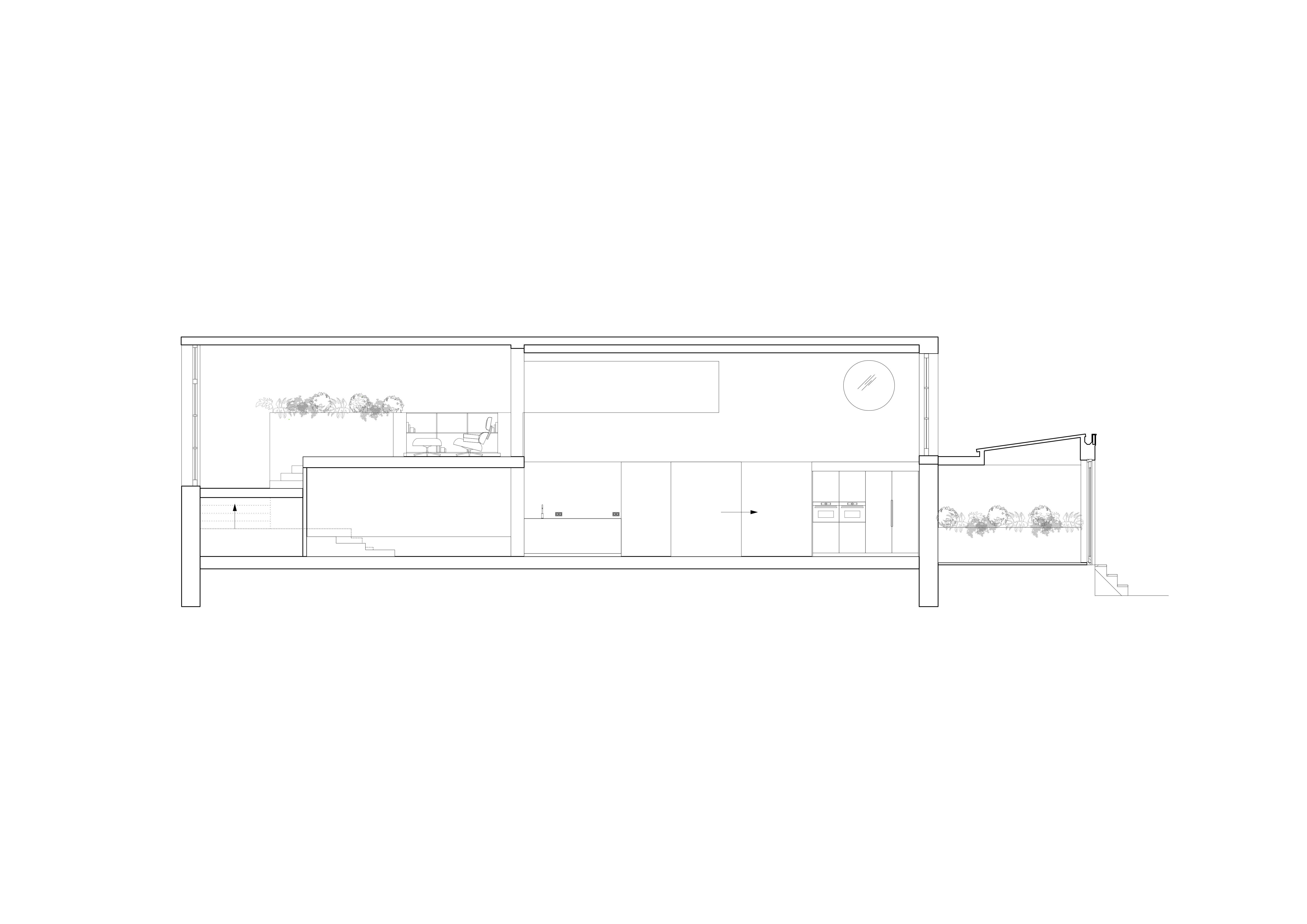
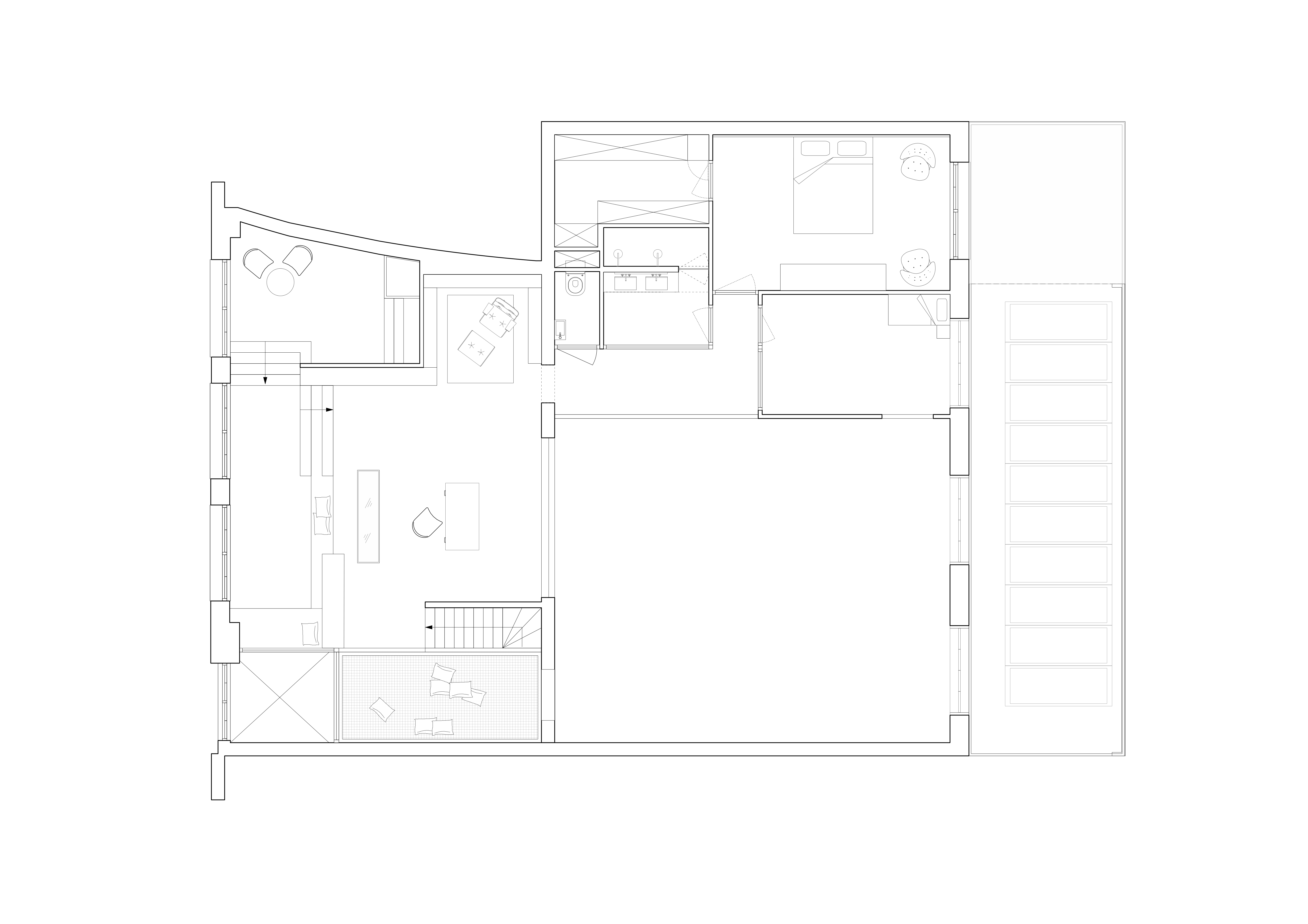
The ceiling height of +/- 5 meters allowed us to play with height differences throughout the apartment. The central open space is connected to several smaller spaces that have their own function. Everything is connected via the main open space from a luxury bathroom to a garden room. The main open space has an eye-catching kitchen that immediately attracts your attention.
The kitchen is actually an old vintage dresser cabinet fused together with a contemporary blue kitchen finished with Arpa Fenix finish that makes it almost as if it is made of fabric. The top is made with himacs white and floats on top of the fabric-like volume. It almost feels like a piece of soap. It is soft, gentle, solid, strong, hygienic, clean, fresh, and easy to maintain.
When standing behind the kitchen island you can see all the spaces that are connected. The circular see-throughs playfully make the visitor aware of small hideouts for the kids. There are several places in the apartment that are meant to encourage the user to pull back and enjoy what they are doing.
The main open space sits along a split-level floor. The lower part has a dimmed yellow-toned landscape of cabinets and beds with places to sit, lay down, and play. The space can be closed off by A pivoting media cabinet. The pivoting system is from Frits Jurgen and can handle the weight of the cabinet that on one side has a TV and on the other side shelves with magazines.
Next to the yellow hideout, you find the walk-through that leads to the upper part of the split level. The walkthrough is equipped with a coffee station on one side and on the other side it is used as a workspace with a dedicated planter filled with big green plants.
In this villa, you find a place to do whatever you want and for every occasion. Even though there are hardly any doors in the apartment. Whether you want to sit outside in the morning sun, have breakfast in the kitchen, or get some work stuff done at the big desk, it is all there.
客服
消息
收藏
下载
最近




























